The Wright Estate Agency says ..
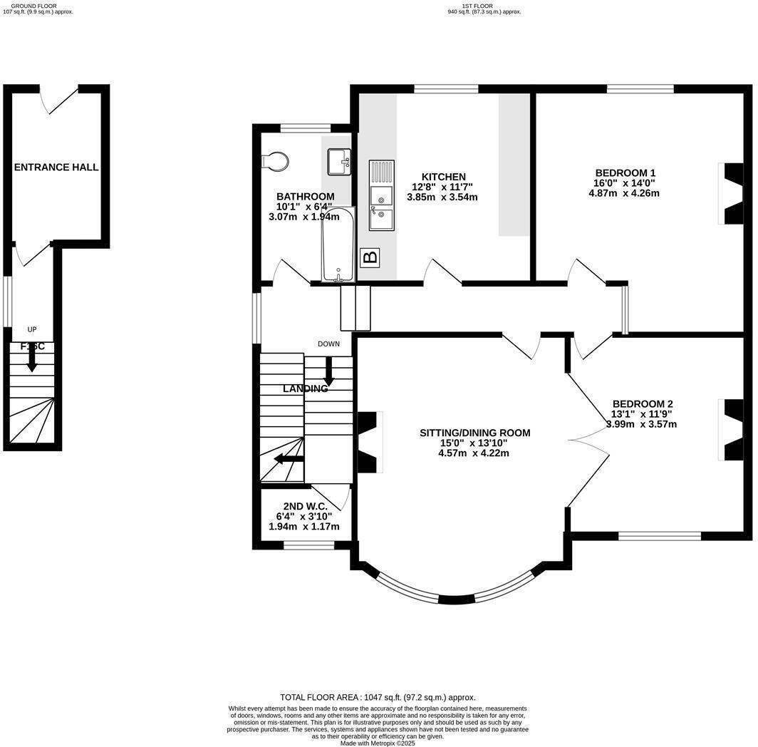
Situated in the charming coastal town of Ryde, this stunning second-floor flat offers a unique opportunity to embrace seaside living in a beautifully presented Victorian building. Spanning an impressive 1,047 square feet, this property boasts two spacious bedrooms and is just a stone's throw from...
Property Oracle says ..
This two-bedroom flat on The Strand in Ryde presents a promising opportunity. Its coastal location offers appealing views and convenient access to local amenities and transportation. The property is in generally good condition, with a modern kitchen and bathroom, though some areas could benefit from updates. The inclusion of a garden adds to its charm. Priced at £259,950, it represents good value compared to the average price per square foot in the area. The proximity to schools and transportation further enhances its desirability, making it suitable for a range of potential buyers.
Therefore, we give this property 7 / 10. *Disclaimer: This is our option and does constitute a recommendation or financial advice. Do your own research. *
- Price
- 7
- Condition
- 7
- Location
- 8
- Land
- 6
- Bedrooms
- 2
- Bathrooms
- 0
- Sqft (est)
- 932.50
The heatmap indicates the level of crime in the area. The color of the heatmap indicates the crime severity and recency.
Metrics Year-on-Year
- Average area value
- 431,250.00 £Increased by 5.19 %
- Est sale value
- 403,772.50 £Increased by 65.90 %
- Average area rental value
- 1,300.00 £/moDecreased by 23.48 %
- Est letting value
- 932.50 £/moUnchanged by 0.00 %
- Est rental Yield
- 3.62 %Decreased by 27.16 %
- Crime Rate
- 10.00 %Unchanged by 0.00 %
Agent Activity
The Wright Estate Agency created the listing.
Nearby Schools
| Name | Type | Ofsted | Distance |
|---|---|---|---|
| Dover Park Primary School | Community School | Good | 0.65 KM |
| St Mary'S Catholic Primary School | Voluntary Aided School | Requires improvement | 0.66 KM |
| Oakfield Church Of England Aided Primary School, Ryde | Voluntary Aided School | Requires improvement | 0.96 KM |
| Ryde Children'S Centre | Children's Centre | 0.99 KM | |
| Ryde School With Upper Chine | Other Independent School | 1.69 KM |
Images
Nearby Streets
| Name | Average Price | Average Sqft | Distance |
|---|---|---|---|
| East Hill Road | £ 235,000 | 0 | 0.00 KM |
| Park Road | £ 95,000 | 0 | 0.00 KM |
| Wood Street | £ 316,667 | 0 | 0.00 KM |
| Saint John's Wood Road | £ 0 | 0 | 0.00 KM |
| St Johns Place | £ 189,950 | 0 | 0.00 KM |
Nearby Transport
| Name | NLC | TLC | Distance |
|---|---|---|---|
| Ryde St Johns Road | 5543 | RYR | 0.81 KM |
| Ryde Esplanade | 5542 | RYD | 0.82 KM |
| Ryde Pier Head | 5541 | RYP | 1.28 KM |
| Smallbrook Junction | 5494 | SAB | 2.16 KM |
| Brading | 5530 | BDN | 6.00 KM |
Nearby Listings
| Address | Price | Type | Score | Distance |
|---|---|---|---|---|
| The Strand, Ryde | £ 290,000 | BUY | 7 / 10 | 0.00 KM |
| COASTAL RYDE | £ 259,950 | BUY | 7 / 10 | 0.00 KM |
| Marymead Close, Ryde, Isle of Wight | £ 210,000 | BUY | 6 / 10 | 0.07 KM |
| Simeon Street, Ryde, Isle of Wight | £ 230,000 | BUY | 6 / 10 | 0.09 KM |
| Simeon Street, Ryde, Isle Of Wight, PO33 | £ 165,000 | BUY | 6 / 10 | 0.09 KM |
Nearby Properties
| Address | Price | Distance |
|---|---|---|
| 47 The Strand | £ 170,000 | 0.04 KM |
| 40 The Strand | £ 145,000 | 0.04 KM |
| 18 The Strand | £ 235,000 | 0.06 KM |
| 41 The Strand | £ 275,000 | 0.06 KM |
| 42 The Strand | £ 350,000 | 0.06 KM |