Hill End Grove, Horton Bank Top, Bradford, BD7
By Robert Watts
£ 210,000
Reviews
3 out of 5 stars
Robert Watts says ..
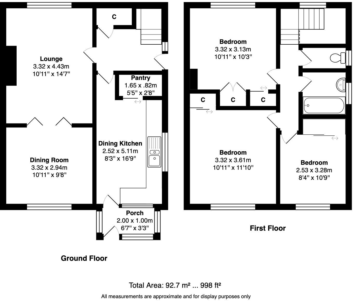
** OFFERED WITH NO CHAIN ** NO BOX ROOMS HERE ** SPACIOUS ON THE INSIDE WITH LARGE FAMILY GARDENS AND A VAST AMOUNT OF SCOPE ** Situated within a cul de sac location and offering an abundance of space is this delightful family home. Briefly comprising: entrance hallway, lounge, dining room, dinin...
Property Oracle says ..
The property is located in Hill End Grove, Horton Bank Top, Bradford, BD7 4RP. It is a semi-detached house with 3 bedrooms and 1 bathroom. The property has a plot size of 998 sqft and is listed at £210,000. The average price for properties in the area is £617,618, with an average price per sqft of £592. The property is significantly smaller than the average property in the area (720 sqft vs 1042 sqft). Nearby properties on Hill End Grove range in price from £105,000 to £155,000. Given the size and condition of the property, and the prices of comparable properties, the list price of £210,000 appears high. However, the lack of sqft data for nearby listings makes a precise comparison difficult. Based on the images provided, the property appears to be in good condition. There is no visible evidence of significant repairs or renovations needed. The property benefits from a garden, which adds to its value. The garden appears well-maintained and of a reasonable size for a semi-detached property. The property’s location is within reasonable distance of several primary schools, with the closest being Hollingwood Primary School (0.21 KM). There are also several train stations within a reasonable commuting distance. The area appears to be residential with a mix of housing types.
Therefore, we give this property 6 / 10. *Disclaimer: This is our option and does constitute a recommendation or financial advice. Do your own research. *
- Price
- 4
- Condition
- 8
- Location
- 6
- Land
- 7
- Bedrooms
- 3
- Bathrooms
- 1
- Sqft (est)
- 720.00
- Lot (est)
- 998.00
The heatmap indicates the level of crime in the area. The color of the heatmap indicates the crime severity and recency.
Metrics Year-on-Year
- Average area value
- 856,250.00 £Increased by 15.74 %
- Est sale value
- 511,200.00 £Increased by 21.37 %
- Average area rental value
- 2,000.00 £/moDecreased by 15.25 %
- Est letting value
- 720.00 £/moUnchanged by 0.00 %
- Est rental Yield
- 2.80 %Decreased by 26.89 %
- Crime Rate
- 9.00 %Unchanged by 0.00 %
Agent Activity
Robert Watts created the listing.
Nearby Schools
| Name | Type | Ofsted | Distance |
|---|---|---|---|
| Hollingwood Primary School | Academy Converter | 0.21 KM | |
| St John The Evangelist Catholic Primary School | Academy Converter | Good | 0.65 KM |
| Reevy Hill Children'S Centre | Children's Centre | 1.12 KM | |
| St Anthony'S Catholic Primary School, A Voluntary Academy | Academy Converter | 1.15 KM | |
| Reevy Hill Primary School | Academy Sponsor Led | Good | 1.18 KM |
Images
Nearby Streets
| Name | Average Price | Average Sqft | Distance |
|---|---|---|---|
| Mickledore Close | £ 189,950 | 0 | 0.00 KM |
| Highlands Close | £ 0 | 0 | 0.00 KM |
| Busking Close | £ 175,000 | 0 | 0.00 KM |
| Chelsea Road | £ 130,000 | 0 | 0.00 KM |
| May Tree Place | £ 56,250 | 0 | 0.00 KM |
Nearby Transport
| Name | NLC | TLC | Distance |
|---|---|---|---|
| Bradford Forster Square | 8346 | BDQ | 5.86 KM |
| Bradford Interchange | 8345 | BDI | 5.99 KM |
| Low Moor | 8416 | LMR | 6.08 KM |
| Frizinghall | 8556 | FZH | 6.09 KM |
| Saltaire | 8561 | SAE | 7.04 KM |
Nearby Listings
| Address | Price | Type | Score | Distance |
|---|---|---|---|---|
| Hill End Grove, Horton Bank Top, Bradford, BD7 | £ 210,000 | BUY | 6 / 10 | 0.00 KM |
| Windermere Road, Bradford | £ 160,000 | BUY | Unknown | 0.14 KM |
| Old Road, Bradford, BD7 4ND | £ 110,000 | BUY | 7 / 10 | 0.20 KM |
| Grey Friar Walk, Bradford, BD7 | £ 170,000 | BUY | 6 / 10 | 0.20 KM |
| Beacon Street, Bank Top, Bradford, BD7 | £ 80,000 | BUY | 5 / 10 | 0.22 KM |
Nearby Properties
| Address | Price | Distance |
|---|---|---|
| 4 Hill End Grove | £ 134,500 | 0.03 KM |
| 19 Hill End Grove | £ 133,000 | 0.03 KM |
| 17 Hill End Grove | £ 155,000 | 0.03 KM |
| 7 Hill End Grove | £ 140,000 | 0.03 KM |
| 11 Hill End Grove | £ 105,000 | 0.03 KM |