Church Road, Wimbledon Village, SW19
By Robert Holmes & Co
£ 2,650,000
Reviews
3 out of 5 stars
Robert Holmes & Co says ..
Extremely rare opportunity in the heart of Wimbledon Village. This detached house has scope to further extend and/or redevelop subject to the necessary consents to add extensive value
Property Oracle says ..
This three-bedroom, two-bathroom property located on Church Road in Wimbledon Village, SW19, presents a compelling opportunity within a highly sought-after area. The property’s location in Wimbledon Village is a major asset, offering proximity to excellent schools, Wimbledon Common, and convenient transportation links. The property features a garden, although it appears relatively compact. While the images suggest a well-maintained exterior and habitable interior, a full inspection would provide a definitive assessment of the property’s condition. The list price of £2,650,000 requires further analysis against comparable properties and internal details for a thorough valuation. The provided data regarding nearby properties is limited, and lacks crucial details such as plot size and internal space, rendering a complete comparison difficult. In summary, the property offers considerable value due to its coveted location but needs a detailed internal evaluation to ascertain its true market value and condition.
Therefore, we give this property 6 / 10. *Disclaimer: This is our option and does constitute a recommendation or financial advice. Do your own research. *
- Price
- 7
- Condition
- 7
- Location
- 9
- Land
- 4
- Bedrooms
- 3
- Bathrooms
- 2
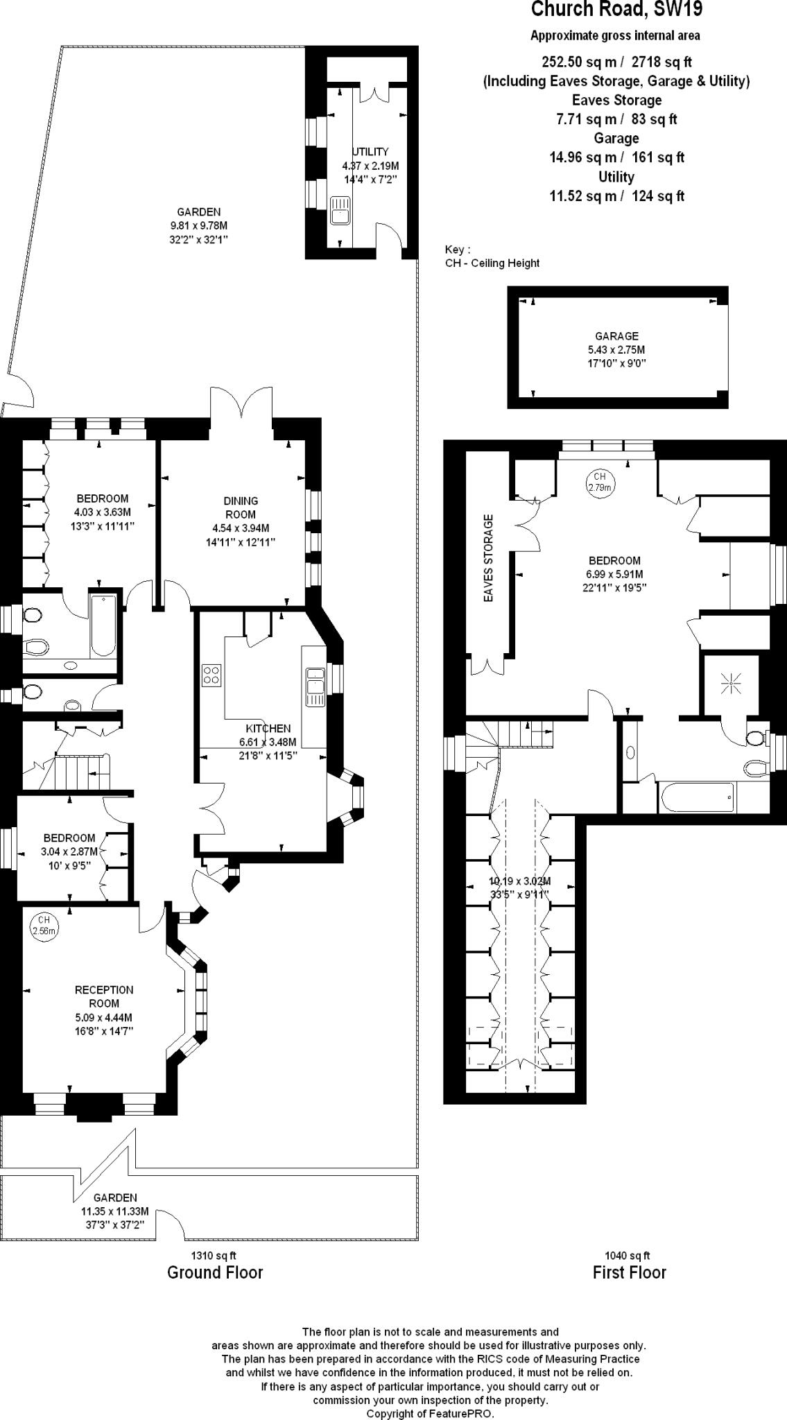
- Sqft (est)
- 2,718.00
The heatmap indicates the level of crime in the area. The color of the heatmap indicates the crime severity and recency.
Metrics Year-on-Year
- Average area value
- 516,545.00 £Decreased by 47.34 %
- Est sale value
- 1,571,004.00 £Decreased by 13.99 %
- Average area rental value
- 3,946.00 £/moDecreased by 6.85 %
- Est letting value
- 10,872.00 £/moIncreased by 100.00 %
- Est rental Yield
- 9.17 %Increased by 77.03 %
- Crime Rate
- 4.00 %Unchanged by 0.00 %
Agent Activity
Robert Holmes & Co created the listing.
Nearby Schools
| Name | Type | Ofsted | Distance |
|---|---|---|---|
| Wimbledon High School Gdst | Other Independent School | 0.76 KM | |
| Wimbledon College | Voluntary Aided School | Good | 0.99 KM |
| Bishop Gilpin Cofe Primary School | Voluntary Aided School | Outstanding | 1.05 KM |
| Wimbledon Common Preparatory School | Other Independent School | 1.06 KM | |
| Donhead Preparatory School | Other Independent School | 1.17 KM |
Images
Nearby Streets
| Name | Average Price | Average Sqft | Distance |
|---|---|---|---|
| Lancaster Avenue | £ 0 | 0 | 0.00 KM |
| Homefield Road | £ 1,640,000 | 0 | 0.00 KM |
| Belvedere Avenue | £ 6,850,000 | 0 | 0.00 KM |
| Cambisgate | £ 0 | 0 | 0.00 KM |
| Oldfield Road | £ 860,000 | 0 | 0.00 KM |
Nearby Transport
| Name | NLC | TLC | Distance |
|---|---|---|---|
| Wimbledon | 5578 | WIM | 1.25 KM |
| Wimbledon Chase | 5612 | WBO | 1.91 KM |
| Raynes Park | 5569 | RAY | 2.46 KM |
| South Merton | 5292 | SMO | 2.90 KM |
| Haydons Road | 5289 | HYR | 3.05 KM |
Nearby Listings
| Address | Price | Type | Score | Distance |
|---|---|---|---|---|
| Church Road, Wimbledon Village, SW19 | £ 2,650,000 | BUY | 6 / 10 | 0.00 KM |
| Church Road, Wimbledon Village, SW19 | £ 1,385,000 | BUY | 6 / 10 | 0.03 KM |
| Church Road, Wimbledon, SW19 | £ 1,600,000 | BUY | 7 / 10 | 0.06 KM |
| Belvedere Square, Wimbledon, SW19 | £ 1,890,000 | BUY | Unknown | 0.06 KM |
| Belvedere Square, Wimbledon Village, SW19 | £ 725,000 | BUY | 6 / 10 | 0.07 KM |
Nearby Properties
| Address | Price | Distance |
|---|---|---|
| 38 Church Road | £ 1,750,000 | 0.04 KM |
| 36 Church Road | £ 1,000,000 | 0.04 KM |
| 22 Church Road | £ 450,000 | 0.04 KM |
| 30 Church Road | £ 581,000 | 0.04 KM |
| 26 Church Road | £ 1,100,000 | 0.04 KM |