Moncur Street, Townhill, Dunfermline, KY12
By Maloco & Associates
£ 145,000
Reviews
3 out of 5 stars
Maloco & Associates says ..
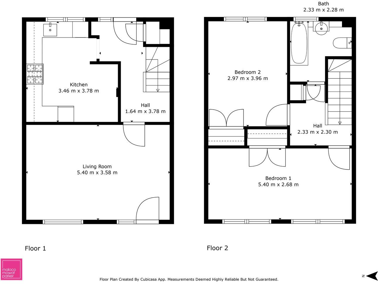
An immaculately presented, two bedroom, terraced villa with gardens, situated within the popular village of Townhill, circa 2 miles from Dunfermline’s City Centre. A perfect first-time home, offered to the market in move in condition with easy maintenance gardens to the rear.
Property Oracle says ..
This property is a 2 bedroom, 1 bathroom house located in Townhill, Dunfermline. Based on the images provided the property appears to be well maintained and recently renovated, with a modern kitchen and bathroom. The property benefits from a small, enclosed rear garden, ideal for low maintenance living. Townhill is a village located approximately 2 miles from Dunfermline City Centre, offering convenient access to local amenities, including primary schooling. Dunfermline itself has a wider range of amenities and transport links, including train stations. The list price of £145,000 seems reasonable considering the property’s condition and location, although it is slightly lower than the average price per square foot in the area. However, comparable properties in the area have sold for similar or slightly lower prices, suggesting the listing price is in line with market value.
Therefore, we give this property 6 / 10. *Disclaimer: This is our option and does constitute a recommendation or financial advice. Do your own research. *
- Price
- 7
- Condition
- 8
- Location
- 7
- Land
- 3
- Bedrooms
- 2
- Bathrooms
- 1
- Sqft (est)
- 812.35
The heatmap indicates the level of crime in the area. The color of the heatmap indicates the crime severity and recency.
Metrics Year-on-Year
- Average area value
- 546,663.00 £Increased by 20.32 %
- Est sale value
- 482,535.90 £Increased by 55.50 %
- Average area rental value
- 2,315.00 £/moIncreased by 58.13 %
- Est letting value
- 1,624.70 £/moIncreased by 100.00 %
- Est rental Yield
- 5.08 %Increased by 31.27 %
- Crime Rate
- 0.00 %
Agent Activity
Maloco & Associates marked this listing as sold.
Maloco & Associates created the listing.
Images
Nearby Streets
| Name | Average Price | Average Sqft | Distance |
|---|---|---|---|
| Euphemia Street | £ 0 | 0 | 0.00 KM |
| Kent Street | £ 360,120 | 0 | 0.00 KM |
| Wilson Street | £ 0 | 0 | 0.00 KM |
| Hawthorn Park | £ 0 | 0 | 0.00 KM |
| Garden Place | £ 0 | 0 | 0.00 KM |
Nearby Transport
| Name | NLC | TLC | Distance |
|---|---|---|---|
| Dunfermline Queen Margaret | 9186 | DFL | 2.42 KM |
| Dunfermline Town | 9187 | DFE | 2.47 KM |
| Rosyth | 9190 | ROS | 4.97 KM |
| Inverkeithing | 9136 | INK | 7.79 KM |
| Dalgety Bay | 9135 | DAG | 9.66 KM |
Nearby Listings
| Address | Price | Type | Score | Distance |
|---|---|---|---|---|
| Moncur Street, Townhill, Dunfermline, KY12 | £ 145,000 | BUY | 6 / 10 | 0.00 KM |
| 34 Dundas Street, Townhill, KY12 0EJ | £ 150,000 | BUY | 7 / 10 | 0.06 KM |
| Dundas Street, Townhill, Dunfermline, KY12 | £ 105,000 | BUY | Unknown | 0.08 KM |
| Plot 1, Lilliehill, Main Street, Townhill, KY12 0HA | £ 125,000 | BUY | 5 / 10 | 0.20 KM |
| 268 Townhill Road, Dunfermline, KY12 | £ 372,995 | BUY | 7 / 10 | 0.21 KM |