Happisburgh
FI

Happisburgh

By Fine & Country

£ 525,000

Reviews

3 out of 5 stars

Fine & Country says ..

One of the Norfolk coast´s most well-known sights is Happisburgh lighthouse - and when you call this home, the lighthouse forms part of your beautiful view. Set well back from the beach, looking across farmland and to the lighthouse, this property sits in a truly idyllic position. The little...

Property Oracle says ..

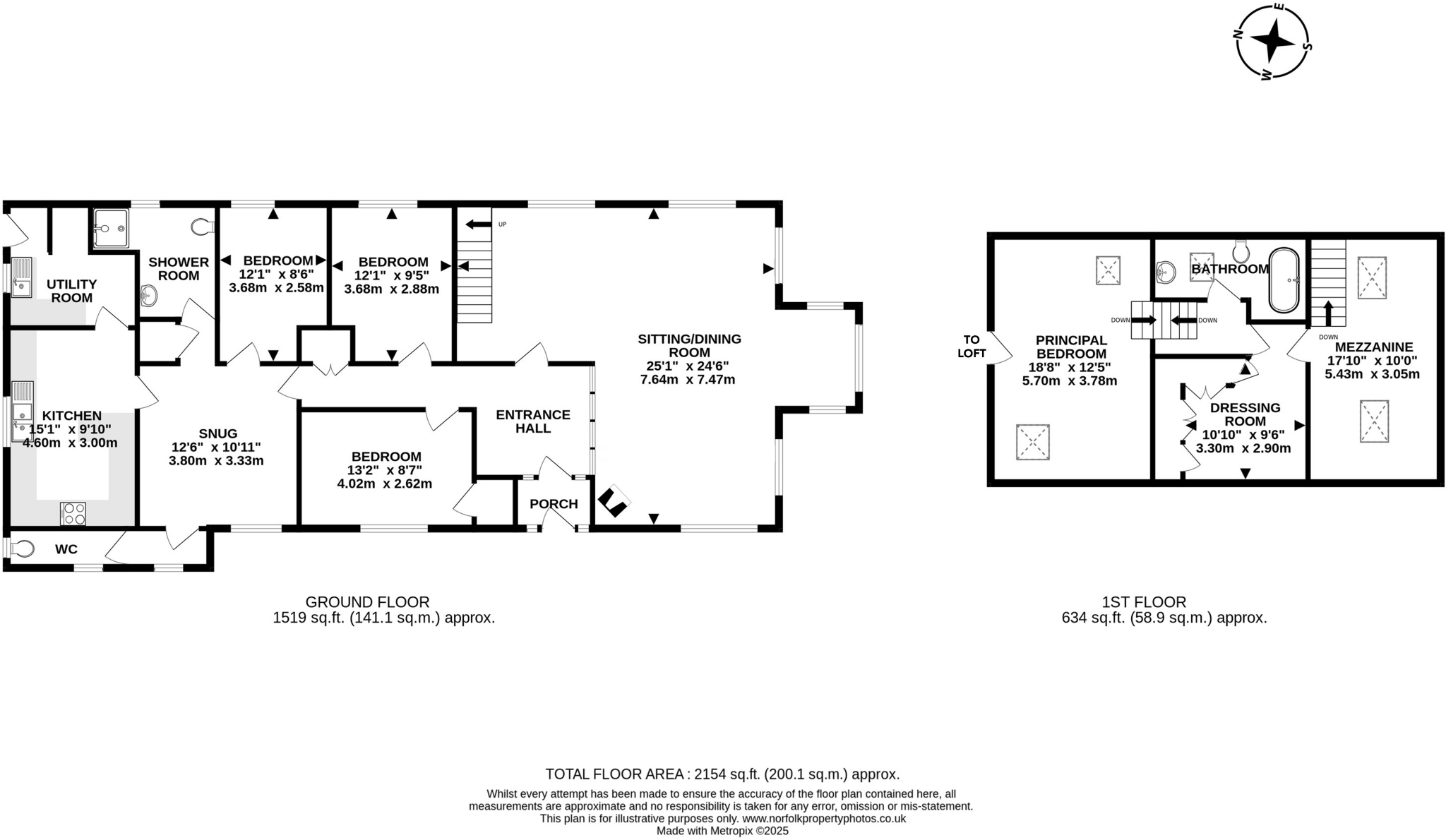
Happisburgh is a small village located on the North Norfolk coast. While it offers a peaceful coastal lifestyle, its proximity to amenities might be limited compared to larger towns. The nearest primary school requires improvement according to Ofsted, and other schools are a considerable distance away. This could be a significant factor for families. The property appears to be in good condition. The images show a recently renovated or modernised interior with updated kitchen and bathrooms. There is no visible evidence of significant repairs needed.The property includes a garden of a reasonable size, offering outdoor space. The presence of sheds and a greenhouse suggests ample storage and gardening potential.The list price of £525,000 is significantly higher than the average price of £340,500 for the area. However, the property is considerably larger than average (2,153.86 sqft vs 1,276 sqft). Considering the apparent good condition and the inclusion of a garden, the price may be justifiable, though a detailed comparison with similarly sized, recently renovated properties in Happisburgh would be needed to confirm its value. The lack of sqft data for nearby properties makes a precise comparison difficult.

Therefore, we give this property 7 / 10. *Disclaimer: This is our option and does constitute a recommendation or financial advice. Do your own research. *

Price
7
Condition
9
Location
6
Land
7
Bedrooms
4
Bathrooms
2
Sqft (est)
2,153.86

The heatmap indicates the level of crime in the area. The color of the heatmap indicates the crime severity and recency.

Metrics Year-on-Year

Average area value
407,037.00 £
Decreased by 9.10 %
from 447,778.00 £
Est sale value
796,928.20 £
Increased by 184.62 %
from 280,001.80 £
Average area rental value
1,336.00 £/mo
Increased by 61.94 %
from 825.00 £/mo
Est letting value
2,153.86 £/mo
from 0.00 £/mo
Est rental Yield
3.94 %
Increased by 78.28 %
from 2.21 %
Crime Rate
31.00 %
Unchanged by 0.00 %
from 31.00 %

Agent Activity

  • Fine & Country created the listing.

Nearby Schools

NameTypeOfstedDistance
Happisburgh Primary And Early Years SchoolVoluntary Aided SchoolRequires improvement0.40 KM
All Saints SchoolOther Independent SchoolInadequate2.85 KM
The Stables Independent SchoolOther Independent Special SchoolRequires improvement4.97 KM
Stalham Infant School And NurseryAcademy Converter5.66 KM
Stalham High SchoolAcademy Sponsor LedGood5.66 KM

Images

DJI_0595 IQ_00010 IQ_00092-HDR IQ_00037-HDR IQ_00096 IQ_00084-HDR IQ_00063-HDR IQ_00075-HDR IQ_00196-HDR IQ_00261-HDR IQ_00268-HDR IQ_00277-HDR IQ_00289-HDR IQ_00171-HDR IQ_00151-HDR IQ_00158-HDR IQ_00164-HDR IQ_00202-HDR IQ_00244-HDR IQ_00208-HDR IQ_00237-HDR IQ_00121 IQ_00102 IQ_00139 IQ_00117 IQ_00021 IQ_00032

Nearby Streets

NameAverage PriceAverage SqftDistance
Lantern Lane £ 000.00 KM

Nearby Listings

AddressPriceTypeScoreDistance
Happisburgh £ 525,000BUY7 / 100.00 KM
Lighthouse Lane, Norwich, NR12 £ 360,000BUY6 / 100.02 KM
The Paddock, Happisburgh, NR12 £ 210,000BUY6 / 100.08 KM
The Paddock, Happisburgh, NR12 £ 425,000BUY7 / 100.10 KM
The Paddock, Happisburgh £ 550,000BUYUnknown0.13 KM

Nearby Properties

AddressPriceDistance
Atherstone House £ 375,0000.00 KM
New Bungalow £ 270,0000.00 KM
3 Lighthouse Lane £ 297,5000.00 KM
2 Lighthouse Lane £ 180,0000.01 KM
Franklin £ 187,5000.01 KM