Masons says ..
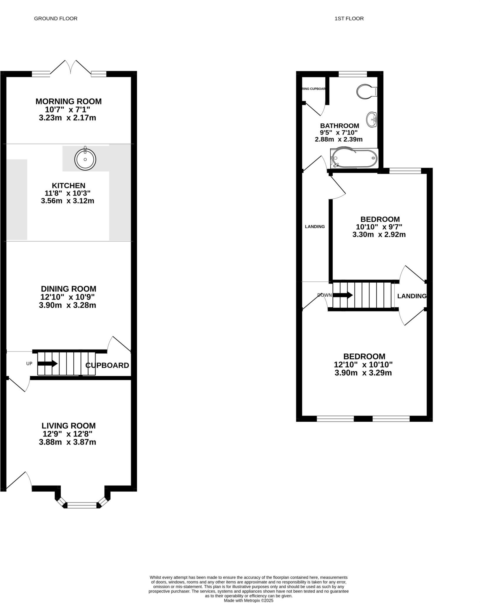
Masons are proud to offer to the market this extended & very well presented, two bedroom Victorian terrace house situated in central Caversham and a short walk to Caversham & Reading centres, along with Reading mainline station. The property has undergone improvements by its current owners
Property Oracle says ..
This is a two-bedroom terraced house in Caversham, Reading. The property appears to be in generally good condition, with a modern kitchen and bathroom. It benefits from a garden, although it is mainly paved. The location is convenient for schools and transport links. The price is in line with the average for the area. The attic space appears unfinished and could be improved. Overall, it’s a decent property in a popular location.
Therefore, we give this property 6 / 10. *Disclaimer: This is our option and does constitute a recommendation or financial advice. Do your own research. *
- Price
- 6
- Condition
- 7
- Location
- 7
- Land
- 5
- Bedrooms
- 2
- Bathrooms
- 1
The heatmap indicates the level of crime in the area. The color of the heatmap indicates the crime severity and recency.
Metrics Year-on-Year
- Average area value
- 436,875.00 £Increased by 21.02 %
- Average area rental value
- 1,527.00 £/moDecreased by 4.62 %
- Est rental Yield
- 4.19 %Decreased by 21.24 %
- Crime Rate
- 2.00 %Unchanged by 0.00 %
Agent Activity
Masons created the listing.
Nearby Schools
| Name | Type | Ofsted | Distance |
|---|---|---|---|
| Thameside Primary School | Community School | Good | 0.30 KM |
| Queen Anne'S School | Other Independent School | 0.34 KM | |
| Hemdean House School | Other Independent School | 0.48 KM | |
| St Anne'S Catholic Primary School | Voluntary Aided School | Good | 0.53 KM |
| Chiltern Nursery Nurse Training School | Miscellaneous | 0.57 KM |
Images
Nearby Streets
| Name | Average Price | Average Sqft | Distance |
|---|---|---|---|
| Short Street | £ 0 | 0 | 0.00 KM |
| Harley Road | £ 0 | 0 | 0.00 KM |
| Knighton Close | £ 0 | 0 | 0.00 KM |
| Caversham House | £ 0 | 0 | 0.00 KM |
| St John's Road | £ 0 | 0 | 0.00 KM |
Nearby Transport
| Name | NLC | TLC | Distance |
|---|---|---|---|
| Reading | 3149 | RDG | 1.09 KM |
| Reading West | 3160 | RDW | 2.59 KM |
| Tilehurst | 3154 | TLH | 6.55 KM |
| Earley | 5694 | EAR | 6.58 KM |
| Winnersh Triangle | 5698 | WTI | 9.46 KM |
Nearby Listings
| Address | Price | Type | Score | Distance |
|---|---|---|---|---|
| Short Street, Caversham | £ 435,000 | BUY | 6 / 10 | 0.00 KM |
| Oxford Street, Caversham, Reading | £ 399,950 | BUY | Unknown | 0.06 KM |
| Westfield Road, Caversham | £ 425,000 | BUY | 7 / 10 | 0.06 KM |
| Westfield Road, Caversham, Reading | £ 435,000 | BUY | 7 / 10 | 0.06 KM |
| Westfield Road | £ 399,950 | BUY | 7 / 10 | 0.07 KM |
Nearby Properties
| Address | Price | Distance |
|---|---|---|
| 8 Short Street | £ 282,000 | 0.01 KM |
| 9 Short Street | £ 330,000 | 0.01 KM |
| 5 Short Street | £ 369,950 | 0.01 KM |
| 6 Short Street | £ 292,000 | 0.01 KM |
| 3 Short Street | £ 224,000 | 0.01 KM |