Coombe Lane, Wimbledon
FU

Coombe Lane, Wimbledon

By Fuller Gilbert & Co

£ 2,000,000

Reviews

3 out of 5 stars

Fuller Gilbert & Co says ..

A truly stunning development of six contemporary five bedroom houses by boutique London developer Formål Property Group is hidden at the end of a long drive, surrounded by mature trees.

Property Oracle says ..

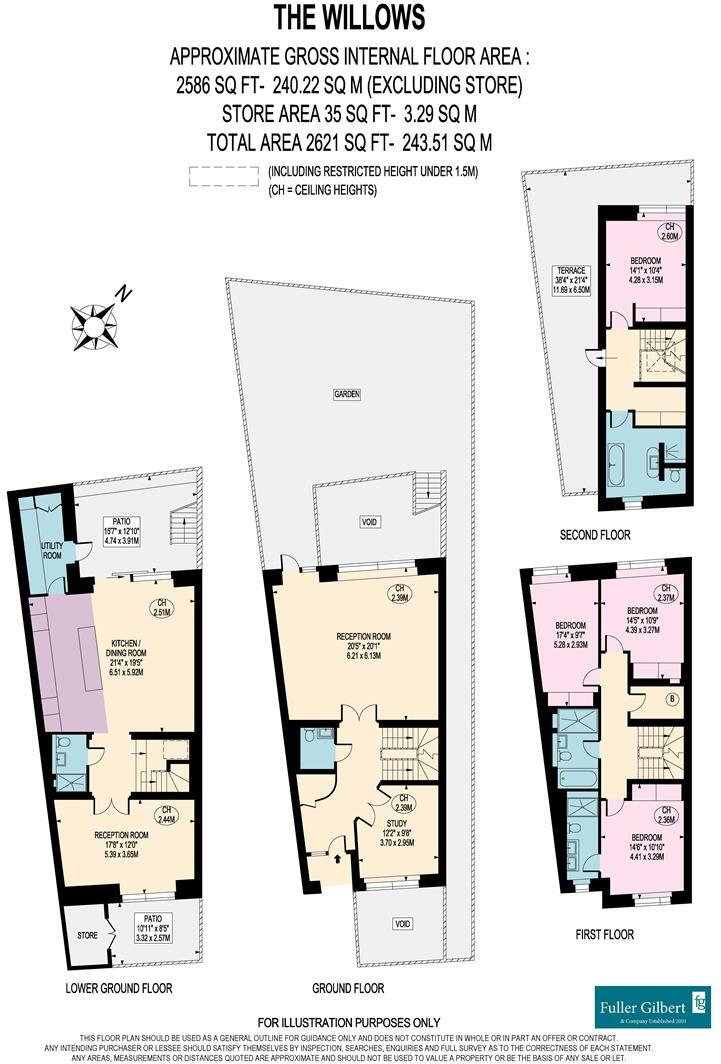
This is a modern semi-detached property located on Coombe Lane, Raynes Park. The property boasts four bedrooms and four bathrooms. The images suggest the property is in excellent condition, with a contemporary design and high-quality fixtures. It also benefits from a garden and a roof terrace, adding to its appeal. The property is located within a good proximity of local schools and transportation links. The asking price of £2,000,000 is high for the area, but may be justified by the property’s condition and features.

Therefore, we give this property 6 / 10. *Disclaimer: This is our option and does constitute a recommendation or financial advice. Do your own research. *

Price
5
Condition
9
Location
7
Land
6
Bedrooms
4
Bathrooms
4

The heatmap indicates the level of crime in the area. The color of the heatmap indicates the crime severity and recency.

Metrics Year-on-Year

Average area value
1,023,750.00 £
Increased by 3.10 %
from 992,967.00 £
Average area rental value
2,492.00 £/mo
Decreased by 7.15 %
from 2,684.00 £/mo
Est rental Yield
2.92 %
Decreased by 9.88 %
from 3.24 %
Crime Rate
0.00 %
from 0.00 %

Agent Activity

  • Fuller Gilbert & Co created the listing.

Nearby Schools

NameTypeOfstedDistance
St Matthew'S Cofe Primary SchoolVoluntary Aided SchoolGood0.33 KM
The Rowans SchoolOther Independent School0.80 KM
West Wimbledon Primary SchoolCommunity SchoolRequires improvement1.00 KM
Raynes Park High SchoolCommunity SchoolGood1.07 KM
Hollymount SchoolCommunity SchoolGood1.32 KM

Images

4 The Willows,4.jpg 4 The Willows,25.jpg 4 The Willows,39.jpg Coombe Lane_Warm_254.jpg Coombe Road_Drone_187.jpg 4 The Willows,1.jpg 4 The Willows,49.jpg 4 The Willows,58.jpg 4 The Willows,13.jpg 4 The Willows,14.jpg 4 The Willows,17.jpg 4 The Willows,12.jpg 4 The Willows,18.jpg 4 The Willows,24.jpg 4 The Willows,54.jpg 4 The Willows,23.jpg 4 The Willows,6.jpg 4 The Willows,9.jpg 4 The Willows,2.jpg 4 The Willows,3.jpg 4 The Willows,5.jpg 4 The Willows,15.jpg 4 The Willows,19.jpg 4 The Willows,20.jpg 4 The Willows,21.jpg 4 The Willows,22.jpg Coombe Lane_Warm_235.jpg 4 The Willows,26.jpg 4 The Willows,27.jpg 4 The Willows,28.jpg 4 The Willows,29.jpg 4 The Willows,30.jpg 4 The Willows,31.jpg 4 The Willows,42.jpg 4 The Willows,46.jpg 4 The Willows,7.jpg 4 The Willows,10.jpg 4 The Willows,8.jpg 4 The Willows,52.jpg 4 The Willows,53.jpg 4 The Willows,56.jpg 4 The Willows,55.jpg 4 The Willows,57.jpg Coombe Lane_EXT_020-Edit.jpg CoombeLane15.jpg CoombeLane10.jpg Coombe Lane_Warm_272.jpg Coombe Lane_Warm_108.jpg CoombeLane08.jpg

Nearby Streets

NameAverage PriceAverage SqftDistance
Oakwood Road £ 1,166,66700.00 KM
Laurel Road £ 1,134,99200.00 KM
Melville Avenue £ 3,000,00000.00 KM
Somerset Avenue £ 1,200,00000.00 KM
Woodland Walk £ 000.00 KM

Nearby Transport

NameNLCTLCDistance
Raynes Park5569RAY1.40 KM
New Malden5567NEM1.76 KM
Motspur Park5645MOT1.94 KM
Wimbledon Chase5612WBO3.15 KM
Worcester Park5579WCP3.48 KM

Nearby Listings

AddressPriceTypeScoreDistance
Coombe Lane, Wimbledon £ 2,000,000BUY6 / 100.00 KM
Coombe Lane, Wimbledon £ 2,000,000BUY6 / 100.04 KM
Coombe Lane, Raynes Park £ 745,000BUY6 / 100.04 KM
Coombe Lane, West Wimbledon, SW20 0RW £ 1,600,000BUYUnknown0.08 KM
Coombe Lane, London, SW20 £ 1,475,000BUY6 / 100.10 KM

Nearby Properties

AddressPriceDistance
161 Coombe Lane £ 1,100,0000.09 KM
155 Coombe Lane £ 1,147,5000.09 KM
145 Coombe Lane £ 862,0000.09 KM
171 Coombe Lane £ 1,120,0000.09 KM
169 Coombe Lane £ 1,015,0000.09 KM