Walshe's Property says ..
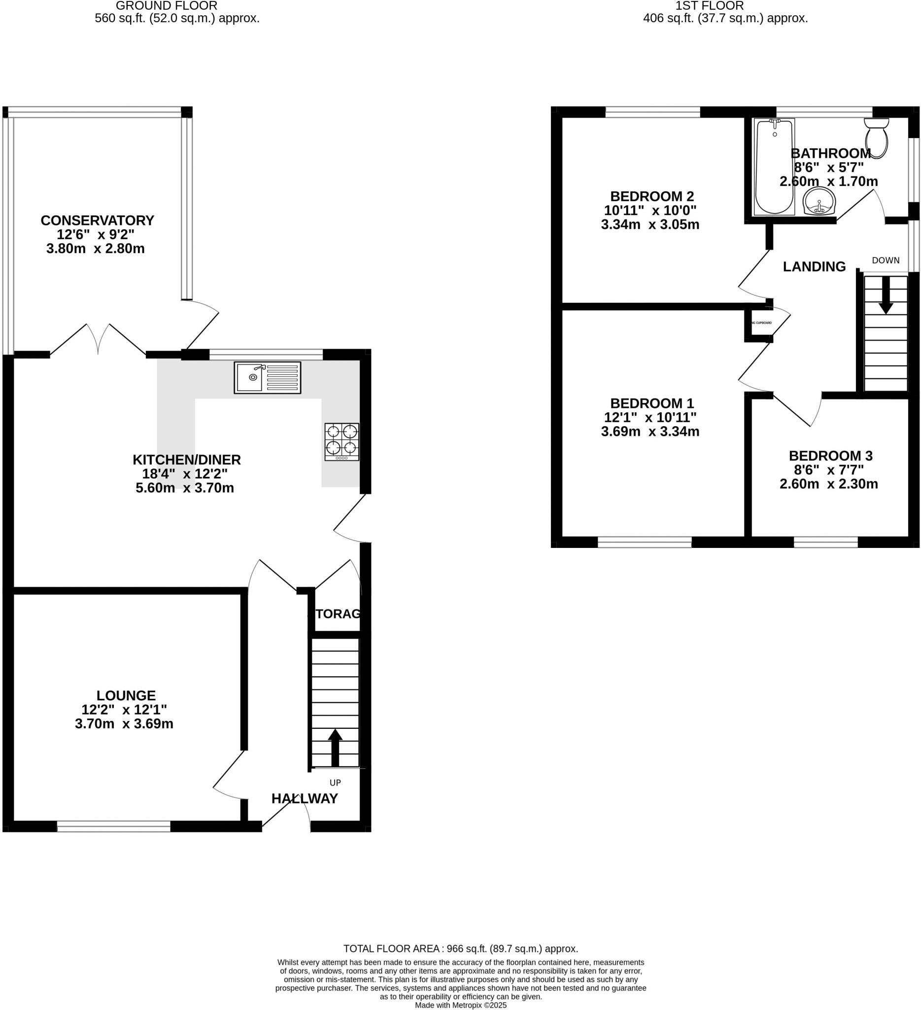
**OFFERED WITH NO ONWARD CHAIN** Walshe's Property is delighted to present this three bed semi detached property located on Mason Drive. Situated within Bottesford, this property would be ideal for a first time buyer, ready to put their stamp on a place. Internally, on the ground floor...
Property Oracle says ..
Therefore, we give this property 7 / 10. *Disclaimer: This is our option and does constitute a recommendation or financial advice. Do your own research. *
- Price
- 7
- Condition
- 8
- Location
- 7
- Land
- 6
- Bedrooms
- 3
- Bathrooms
- 1
- Sqft (est)
- 840.03
The heatmap indicates the level of crime in the area. The color of the heatmap indicates the crime severity and recency.
Metrics Year-on-Year
- Average area value
- 298,333.00 £Increased by 5.82 %
- Est sale value
- 208,327.44 £Increased by 5.53 %
- Average area rental value
- 1,100.00 £/moIncreased by 7.74 %
- Est letting value
- 0.00 £/mo
- Est rental Yield
- 4.42 %Increased by 1.61 %
- Crime Rate
- 4.00 %Unchanged by 0.00 %
from 281,934.00 £
from 197,407.05 £
from 1,021.00 £/mo
from 0.00 £/mo
from 4.35 %
from 4.00 %
Agent Activity
Walshe's Property created the listing.
Nearby Schools
| Name | Type | Ofsted | Distance |
|---|---|---|---|
| South Park Enterprise College (11-19) | Other Independent School | Good | 0.37 KM |
| Enderby Road Infant School | Community School | Good | 0.42 KM |
| Westcliff & Riddings Children'S Centre | Children's Centre | 0.61 KM | |
| Leys Farm Junior School | Community School | Good | 0.84 KM |
| Willoughby Road Primary Academy | Academy Sponsor Led | Good | 1.01 KM |
Images
Nearby Streets
| Name | Average Price | Average Sqft | Distance |
|---|---|---|---|
| Park Avenue | £ 0 | 0 | 0.00 KM |
| High Garth | £ 0 | 0 | 0.00 KM |
| Irby Road | £ 0 | 0 | 0.00 KM |
| Minerva Close | £ 0 | 0 | 0.00 KM |
| Mallard Road | £ 0 | 0 | 0.00 KM |
Nearby Transport
| Name | NLC | TLC | Distance |
|---|---|---|---|
| Scunthorpe | 6456 | SCU | 4.12 KM |
| Althorpe | 6532 | ALP | 7.67 KM |
Nearby Listings
| Address | Price | Type | Score | Distance |
|---|---|---|---|---|
| Mason Drive, Scunthorpe | £ 165,000 | BUY | 7 / 10 | 0.00 KM |
| Waddington Drive, Scunthorpe | £ 165,000 | BUY | 7 / 10 | 0.06 KM |
| St. Davids Crescent, Scunthorpe | £ 175,000 | BUY | 7 / 10 | 0.15 KM |
| Quebec Road , DN17 | £ 165,000 | BUY | 6 / 10 | 0.16 KM |
| Ontario Road, Scunthorpe | £ 295,000 | BUY | 6 / 10 | 0.16 KM |
Nearby Properties
| Address | Price | Distance |
|---|---|---|
| 9 Mason Drive | £ 105,000 | 0.01 KM |
| 18 Mason Drive | £ 116,750 | 0.01 KM |
| 17 Mason Drive | £ 132,000 | 0.01 KM |
| 12 Mason Drive | £ 141,500 | 0.01 KM |
| 16 Mason Drive | £ 110,000 | 0.01 KM |