Worlds End Hill, Bracknell, Berkshire, RG12
By Prospect Estate Agency
£ 375,000
Reviews
3 out of 5 stars
Prospect Estate Agency says ..
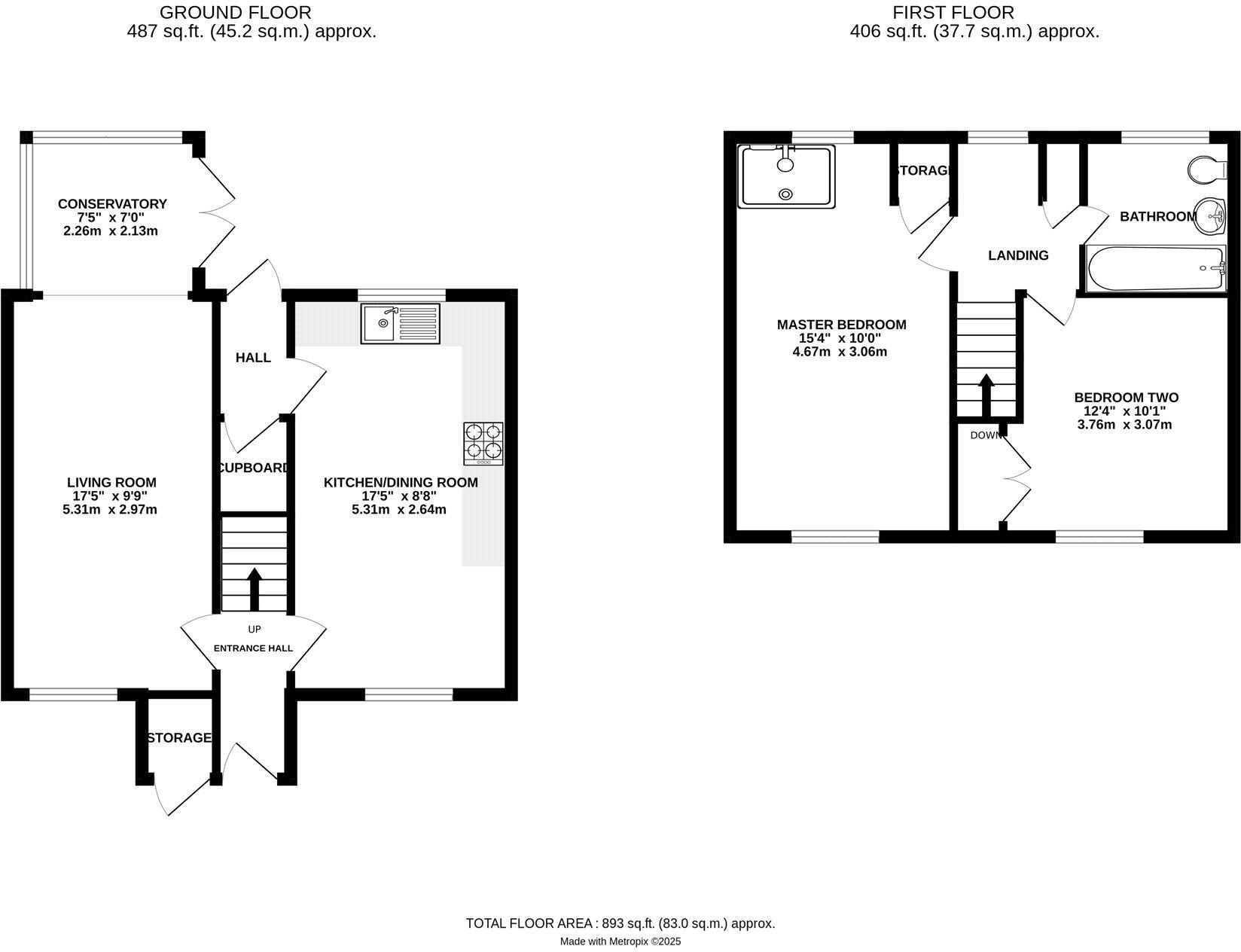
Situated in the sought after area of Forest Park is this spacious two bedroom terrace home. The ground floor comprises a front to back, double aspect kitchen/ dining room to one side and to the other side a living room with conservatory. There is access to the garden through both the ...
Property Oracle says ..
This property is a 2 bedroom, 1 bathroom terraced house located in Crown Wood, Bracknell. It benefits from a modern kitchen and bathroom, and a conservatory. The property also has a good sized garden with a shed. The location is convenient for local amenities and transport links. While the property is in good condition, the plot size is small, which may affect its overall value. The list price is slightly above the average price per square foot for the area, but comparable to similar properties on the same street.
Therefore, we give this property 7 / 10. *Disclaimer: This is our option and does constitute a recommendation or financial advice. Do your own research. *
- Price
- 7
- Condition
- 8
- Location
- 7
- Land
- 6
- Bedrooms
- 2
- Bathrooms
- 1
- Sqft (est)
- 767.04
The heatmap indicates the level of crime in the area. The color of the heatmap indicates the crime severity and recency.
Metrics Year-on-Year
- Average area value
- 217,143.00 £Decreased by 10.70 %
- Est sale value
- 188,691.84 £Decreased by 12.14 %
- Average area rental value
- 1,267.00 £/moIncreased by 25.57 %
- Est letting value
- 767.04 £/moUnchanged by 0.00 %
- Est rental Yield
- 7.00 %Increased by 40.56 %
- Crime Rate
- 14.00 %Unchanged by 0.00 %
Agent Activity
Prospect Estate Agency created the listing.
Nearby Schools
| Name | Type | Ofsted | Distance |
|---|---|---|---|
| Crown Wood Primary School | Academy Converter | 0.83 KM | |
| Harmans Water Primary School | Community School | Good | 1.01 KM |
| The Sycamores Children'S Centre | Children's Centre Linked Site | 1.15 KM | |
| Holly Spring Primary School | Community School | Good | 2.21 KM |
| St Joseph'S Catholic Primary School, Bracknell | Voluntary Aided School | Outstanding | 2.40 KM |
Images
Nearby Streets
| Name | Average Price | Average Sqft | Distance |
|---|---|---|---|
| Parson's Ride | £ 0 | 0 | 0.00 KM |
| Green Ride | £ 0 | 0 | 0.00 KM |
| Windsor Ride | £ 0 | 0 | 0.00 KM |
| Savernake Park | £ 0 | 0 | 0.00 KM |
| Abingdon Close | £ 0 | 0 | 0.00 KM |
Nearby Transport
| Name | NLC | TLC | Distance |
|---|---|---|---|
| Martins Heron | 5692 | MAO | 1.28 KM |
| Bracknell | 5693 | BCE | 3.17 KM |
| Bagshot | 5681 | BAG | 5.67 KM |
| Ascot (Berks) | 5666 | ACT | 5.91 KM |
| Camberley | 5682 | CAM | 6.93 KM |
Nearby Listings
| Address | Price | Type | Score | Distance |
|---|---|---|---|---|
| Worlds End Hill, Bracknell, Berkshire, RG12 | £ 375,000 | BUY | 7 / 10 | 0.00 KM |
| Bere Road, Bracknell, Berkshire, RG12 | £ 425,000 | BUY | Unknown | 0.12 KM |
| Horndean Road, Bracknell, Berkshire | £ 280,000 | BUY | 6 / 10 | 0.17 KM |
| Southwick Court, Bracknell, Berkshire | £ 400,000 | BUY | 6 / 10 | 0.17 KM |
| Southwick Court, Forest Park, Bracknell, RG12 | £ 375,000 | BUY | 6 / 10 | 0.19 KM |
Nearby Properties
| Address | Price | Distance |
|---|---|---|
| 56 Worlds End Hill | £ 330,000 | 0.01 KM |
| 79 Worlds End Hill | £ 432,000 | 0.01 KM |
| 61 Worlds End Hill | £ 310,000 | 0.01 KM |
| 85 Worlds End Hill | £ 250,000 | 0.01 KM |
| 74 Worlds End Hill | £ 225,000 | 0.01 KM |