Keith Ashton says ..
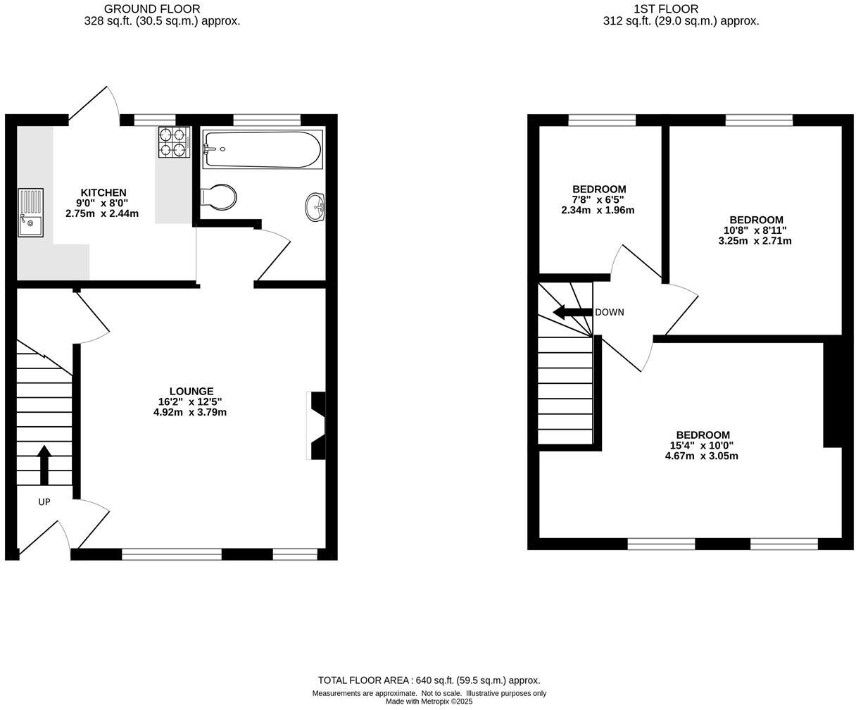
Located just under half a mile from Hilldene Primary School and having great road links onto the A12, A127 and M25 is this three-bedroom, mid terrace family home, which comes to the market with NO ONWARD CHAIN and great potential for improvement and extension into the loft space to create a furth...
Property Oracle says ..
This property is located in Heaton, Havering, Greater London. It is a 3 bedroom, 1 bathroom house with a total area of 640 sqft and a plot size of 0 sqft. The property is listed at £375,000. The average price for properties in the area is £276,725, with an average price per sqft of £331. The property appears to be in reasonable condition, although some minor cosmetic work may be needed. It benefits from having a small garden. Considering the condition, location, and land size, the asking price seems slightly above average for the area, but not unreasonable given comparable properties in the vicinity.
Therefore, we give this property 5 / 10. *Disclaimer: This is our option and does constitute a recommendation or financial advice. Do your own research. *
- Price
- 6
- Condition
- 6
- Location
- 7
- Land
- 4
- Bedrooms
- 3
- Bathrooms
- 1
- Sqft (est)
- 640.00
The heatmap indicates the level of crime in the area. The color of the heatmap indicates the crime severity and recency.
Metrics Year-on-Year
- Average area value
- 297,629.00 £Increased by 0.56 %
- Est sale value
- 273,280.00 £Increased by 45.24 %
- Average area rental value
- 1,009.00 £/moDecreased by 1.85 %
- Est letting value
- 640.00 £/moUnchanged by 0.00 %
- Est rental Yield
- 4.07 %Decreased by 2.40 %
- Crime Rate
- 11.00 %Unchanged by 0.00 %
Agent Activity
Keith Ashton created the listing.
Nearby Schools
| Name | Type | Ofsted | Distance |
|---|---|---|---|
| Hilldene Primary School | Community School | Good | 0.47 KM |
| Hilldene | Children's Centre | 0.49 KM | |
| St Ursula'S Catholic Primary School | Voluntary Aided School | Outstanding | 0.79 KM |
| Lime Academy Ravensbourne | Academy Special Converter | Good | 1.15 KM |
| The Royal Liberty School | Academy Converter | Good | 1.44 KM |
Images
Nearby Streets
| Name | Average Price | Average Sqft | Distance |
|---|---|---|---|
| St Patrick's Place | £ 0 | 0 | 0.00 KM |
| Cowley Road | £ 290,000 | 0 | 0.00 KM |
| Roberts Close | £ 0 | 0 | 0.00 KM |
| Brooklime Path | £ 255,000 | 0 | 0.00 KM |
| Natasha Court | £ 205,000 | 0 | 0.00 KM |
Nearby Transport
| Name | NLC | TLC | Distance |
|---|---|---|---|
| Gidea Park | 6877 | GDP | 1.86 KM |
| Harold Wood | 6879 | HRO | 2.80 KM |
| Emerson Park | 7473 | EMP | 3.56 KM |
| Romford | 6886 | RMF | 3.84 KM |
| Upminster | 7464 | UPM | 6.42 KM |
Nearby Listings
| Address | Price | Type | Score | Distance |
|---|---|---|---|---|
| Heaton Avenue, Romford | £ 375,000 | BUY | 5 / 10 | 0.00 KM |
| Tennyson Road, Romford | £ 425,000 | BUY | 6 / 10 | 0.10 KM |
| Tennyson Road, Romford, RM3 | £ 400,000 | BUY | 6 / 10 | 0.12 KM |
| Tennyson Road, Romford | £ 390,000 | BUY | 6 / 10 | 0.13 KM |
| Heaton Avenue, Romford, RM3 | £ 375,000 | BUY | 6 / 10 | 0.14 KM |
Nearby Properties
| Address | Price | Distance |
|---|---|---|
| 42 Heaton Avenue | £ 250,000 | 0.04 KM |
| 32 Heaton Avenue | £ 374,000 | 0.04 KM |
| 29 Heaton Avenue | £ 265,000 | 0.04 KM |
| 30 Heaton Avenue | £ 280,000 | 0.04 KM |
| 23 Heaton Avenue | £ 250,000 | 0.04 KM |