Waterfords says ..
No Onward Chain a three bedroom mid terrace house in need of modernisation in a cul-de-sac Location Close to Yateley Common.
Property Oracle says ..
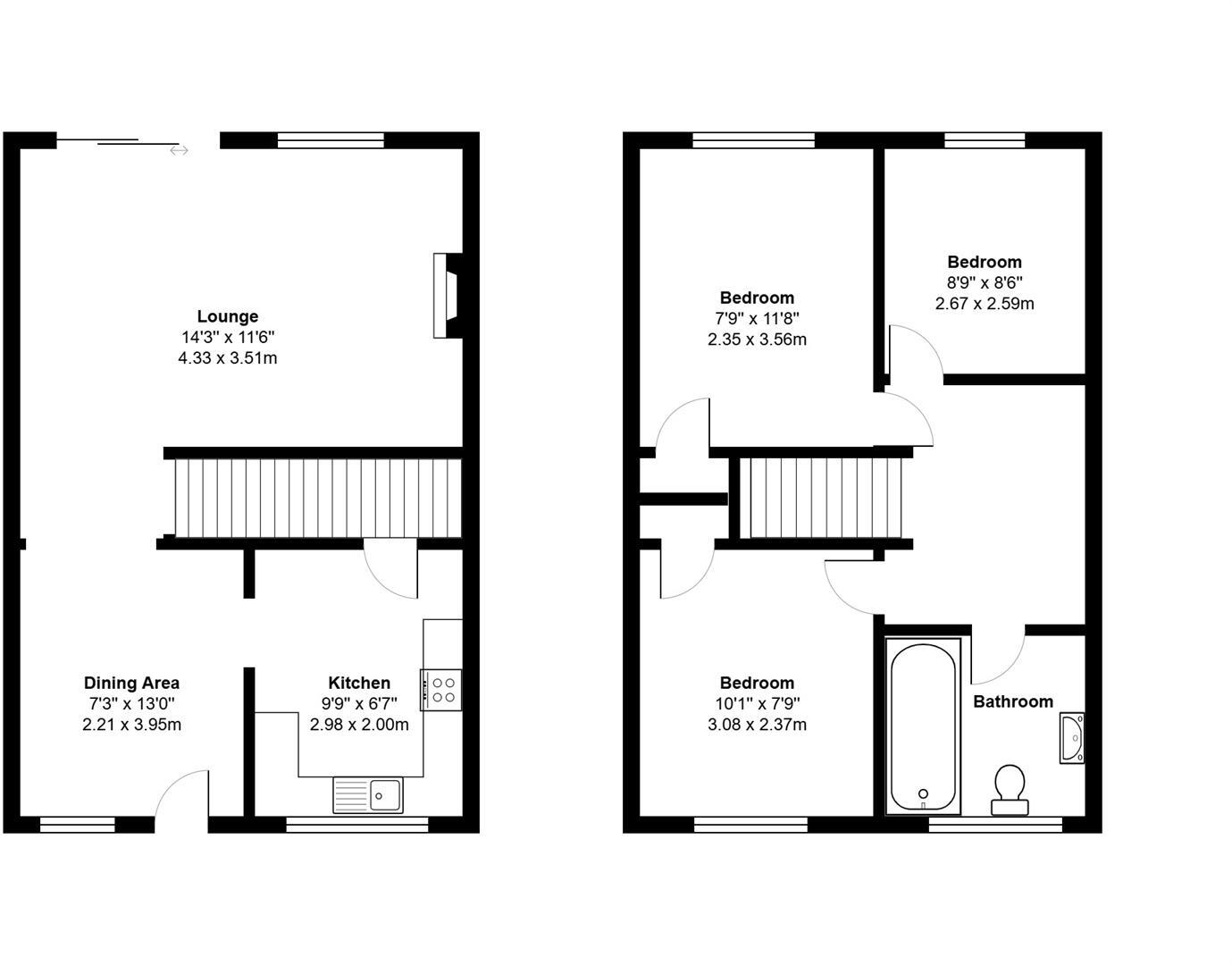
The property is located in Maple Gardens, Yateley, a town in Hampshire, England. The area benefits from relatively close proximity to several railway stations, including Sandhurst (Berks), Crowthorne, Fleet, Blackwater, and Wokingham, offering various commuting options. Several primary schools with “Good” Ofsted ratings are within a short distance, making it potentially attractive to families. The property itself is a three-bedroom house with one bathroom, and a small garden. The images show the property is in need of significant modernisation and updating. The kitchen and bathroom are dated and require complete refurbishment. The walls and flooring throughout the property show signs of wear and tear. The small garden is overgrown and requires attention. Considering the property’s condition, requiring extensive renovation, and the relatively small plot size, coupled with the average house price in the area being significantly higher (597,800 compared to the list price of 319,950), the price may represent good value for money for a buyer willing to undertake a full refurbishment. However, the average price per square foot in the area is 420.00, and while the provided square footage of this property is 499.93 sqft, this property is significantly smaller than the average property size in the area. The lack of plot size information in the nearby listings makes a precise comparison difficult. Nearby comparable properties on Maple Gardens range from 235,000 to 358,000. The list price of 319,950 sits within this range, but the condition of the property must be factored into any valuation. The property includes a small garden and a garage.
Therefore, we give this property 4 / 10. *Disclaimer: This is our option and does constitute a recommendation or financial advice. Do your own research. *
- Price
- 6
- Condition
- 3
- Location
- 7
- Land
- 3
- Bedrooms
- 3
- Bathrooms
- 1
- Sqft (est)
- 499.93
The heatmap indicates the level of crime in the area. The color of the heatmap indicates the crime severity and recency.
Metrics Year-on-Year
- Average area value
- 453,750.00 £Decreased by 10.46 %
- Est sale value
- 248,465.21 £Decreased by 1.78 %
- Average area rental value
- 1,675.00 £/moDecreased by 47.29 %
- Est letting value
- 499.93 £/moDecreased by 66.67 %
- Est rental Yield
- 4.43 %Decreased by 41.17 %
- Crime Rate
- 10.00 %Unchanged by 0.00 %
Agent Activity
Waterfords created the listing.
Nearby Schools
| Name | Type | Ofsted | Distance |
|---|---|---|---|
| Cranford Park Primary | Voluntary Controlled School | Good | 0.43 KM |
| Newlands Primary School | Community School | Good | 0.61 KM |
| Yateley Manor School | Other Independent School | 0.85 KM | |
| Yateley School | Community School | Good | 1.16 KM |
| Woodlark And Water Lilies Children'S Centre | Children's Centre | 1.16 KM |
Images
Nearby Streets
| Name | Average Price | Average Sqft | Distance |
|---|---|---|---|
| Nutley Close | £ 500,000 | 0 | 0.00 KM |
| St Peter's Gardens | £ 475,000 | 0 | 0.00 KM |
| Blackbushe Park | £ 0 | 0 | 0.00 KM |
| The Crescent | £ 0 | 0 | 0.00 KM |
| Wyndham Close | £ 550,000 | 0 | 0.00 KM |
Nearby Transport
| Name | NLC | TLC | Distance |
|---|---|---|---|
| Sandhurst (Berks) | 5646 | SND | 2.87 KM |
| Crowthorne | 5628 | CRN | 3.73 KM |
| Fleet | 5522 | FLE | 4.86 KM |
| Blackwater | 5625 | BAW | 5.58 KM |
| Wokingham | 5696 | WKM | 8.74 KM |
Nearby Listings
| Address | Price | Type | Score | Distance |
|---|---|---|---|---|
| Maple Gardens, Yateley | £ 319,950 | BUY | 4 / 10 | 0.00 KM |
| Maple Gardens, Yateley, Hampshire, GU46 | £ 400,000 | BUY | 6 / 10 | 0.01 KM |
| Lower Moor, Yateley | £ 500,000 | BUY | 6 / 10 | 0.10 KM |
| Maple Gardens, Yateley, Hampshire | £ 425,000 | BUY | 7 / 10 | 0.11 KM |
| Barn Field, Yateley | £ 360,000 | BUY | 6 / 10 | 0.11 KM |
Nearby Properties
| Address | Price | Distance |
|---|---|---|
| 33 Maple Gardens | £ 220,000 | 0.01 KM |
| 8 Maple Gardens | £ 277,500 | 0.01 KM |
| 22 Maple Gardens | £ 292,500 | 0.01 KM |
| 12 Maple Gardens | £ 235,000 | 0.01 KM |
| 6 Maple Gardens | £ 358,000 | 0.01 KM |