Winkworth says ..
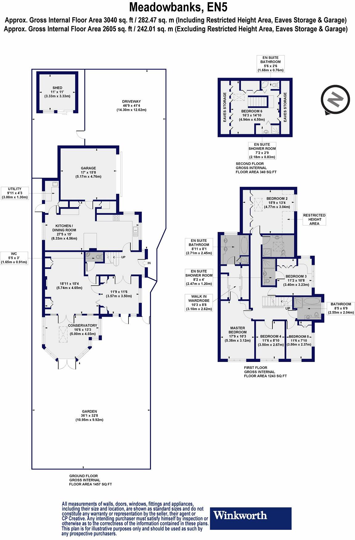
A five bedroom Georgian style gable fronted detached family home offering substantial living accommodation extending to 3,040 sq. ft (282.47 sq.m). The ground floor accommodation comprises two/three reception rooms, a modern open plan kitchen breakfast room, utility room and a conserva...
Property Oracle says ..
The property is located in Arkley, Barnet, a desirable area in Greater London. The area benefits from good schools such as Whitings Hill Primary School (Outstanding Ofsted rating) and Ellern Mede School (Outstanding Ofsted rating), both within a reasonable distance. Transport links are also relatively convenient, with several train stations within a few kilometers. The property itself appears to be in good condition based on the provided photos. The interior looks well-maintained and modern. The kitchen is particularly striking. The property also includes a garden, which is a desirable feature in this area. While the plot size is not explicitly stated, the photos show a garden of reasonable size. Pricing in the area varies greatly. However, considering the property’s size (3,040.48 sqft), condition, location, and inclusion of a garden, the list price of £1,295,000 seems to fall within a reasonable range compared to other properties in the vicinity. More specific data on comparable properties would enhance the accuracy of the price assessment.
Therefore, we give this property 7 / 10. *Disclaimer: This is our option and does constitute a recommendation or financial advice. Do your own research. *
- Price
- 7
- Condition
- 8
- Location
- 9
- Land
- 7
- Bedrooms
- 5
- Bathrooms
- 4
- Sqft (est)
- 3,040.48
The heatmap indicates the level of crime in the area. The color of the heatmap indicates the crime severity and recency.
Metrics Year-on-Year
- Average area value
- 677,122.00 £Decreased by 28.61 %
- Est sale value
- 1,641,859.20 £Decreased by 27.71 %
- Average area rental value
- 5,020.00 £/moIncreased by 76.26 %
- Est letting value
- 12,161.92 £/moIncreased by 100.00 %
- Est rental Yield
- 8.90 %Increased by 147.22 %
- Crime Rate
- 8.00 %Unchanged by 0.00 %
Agent Activity
Winkworth created the listing.
Nearby Schools
| Name | Type | Ofsted | Distance |
|---|---|---|---|
| Saffron Green Primary School | Community School | Good | 1.80 KM |
| Whitings Hill Primary School | Community School | Outstanding | 2.10 KM |
| Mill Hill County High School | Academy Converter | Good | 2.18 KM |
| Kenilworth Primary School | Community School | Requires improvement | 2.36 KM |
| Ellern Mede School | Other Independent School | Outstanding | 2.42 KM |
Images
Nearby Streets
| Name | Average Price | Average Sqft | Distance |
|---|---|---|---|
| Beechcroft | £ 0 | 0 | 0.00 KM |
| Rowley Bank Farm | £ 0 | 0 | 0.00 KM |
| Hazel Mead | £ 0 | 0 | 0.00 KM |
| West Close | £ 0 | 0 | 0.00 KM |
| Galley Lane | £ 1,596,428 | 0 | 0.00 KM |
Nearby Transport
| Name | NLC | TLC | Distance |
|---|---|---|---|
| Mill Hill Broadway | 1527 | MIL | 3.90 KM |
| Elstree And Borehamwood | 1542 | ELS | 4.81 KM |
| New Barnet | 6018 | NBA | 7.10 KM |
| Hadley Wood | 6075 | HDW | 7.19 KM |
| Hendon | 1522 | HEN | 7.35 KM |
Nearby Listings
| Address | Price | Type | Score | Distance |
|---|---|---|---|---|
| Meadowbanks, Arkley, EN5 | £ 1,295,000 | BUY | 7 / 10 | 0.00 KM |
| Hayden Close, Barnet, EN5 | £ 2,500,000 | BUY | 7 / 10 | 0.08 KM |
| Barnet Road, Arkley, EN5 | £ 1,350,000 | BUY | Unknown | 0.08 KM |
| Lynford Close, Arkley, Herts, EN5 | £ 2,100,000 | BUY | 7 / 10 | 0.21 KM |
| Glebe Lane, Barnet, EN5 | £ 765,000 | BUY | Unknown | 0.26 KM |
Nearby Properties
| Address | Price | Distance |
|---|---|---|
| 7 Meadowbanks | £ 885,000 | 0.00 KM |
| 2 Meadowbanks | £ 1,300,000 | 0.00 KM |
| 3 Meadowbanks | £ 1,025,000 | 0.02 KM |
| 4 Meadowbanks | £ 1,275,000 | 0.02 KM |
| The Croft | £ 1,510,000 | 0.07 KM |