Ground Floor Flat, 225 Dover Road, Folkestone, Kent CT19 6NH
Auction House logo

Ground Floor Flat, 225 Dover Road, Folkestone, Kent CT19 6NH

By Auction House

£ 65,000

Reviews

2 out of 5 stars

Auction House says ..

FOR SALE BY ONLINE AUCTION ON TUESDAY 6TH JANUARY 2026 TO REGISTER FOR LEGAL PACKS AND BIDDING INSTRUCTIONS PLEASE VISIT OUR WEBSITE

Property Oracle says ..

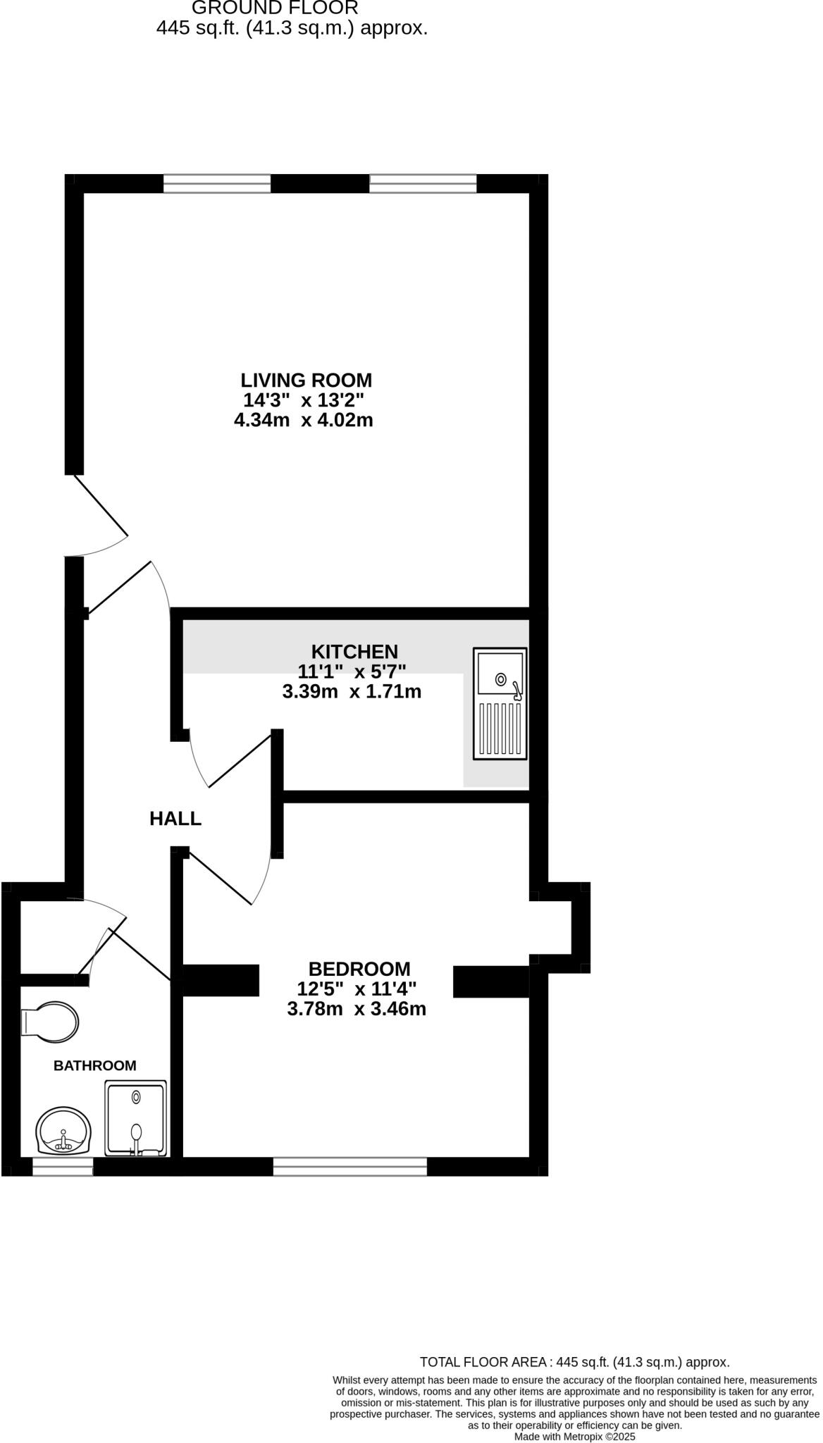
This ground floor flat on Dover Road, Folkestone, presents a significant renovation opportunity. While the location offers proximity to local amenities, schools, and transportation, the property’s condition is poor, requiring extensive work. The flat has one bedroom and one bathroom. The asking price of £65,000 reflects the condition and potential renovation costs. The flat is 102.36 sqft. There is no garden.

Therefore, we give this property 4 / 10. *Disclaimer: This is our option and does constitute a recommendation or financial advice. Do your own research. *

Price
9
Condition
1
Location
6
Land
1
Bedrooms
1
Bathrooms
1
Sqft (est)
102.36

The heatmap indicates the level of crime in the area. The color of the heatmap indicates the crime severity and recency.

Metrics Year-on-Year

Average area value
496,875.00 £
Increased by 49.75 %
from 331,806.00 £
Est sale value
50,156.40 £
Increased by 47.15 %
from 34,085.88 £
Average area rental value
750.00 £/mo
Decreased by 31.26 %
from 1,091.00 £/mo
Est letting value
0.00 £/mo
Decreased by 100.00 %
from 102.36 £/mo
Est rental Yield
1.81 %
Decreased by 54.18 %
from 3.95 %
Crime Rate
7.00 %
Unchanged by 0.00 %
from 7.00 %

Agent Activity

  • Auction House created the listing.

Nearby Schools

NameTypeOfstedDistance
The Village Children'S CentreChildren's Centre0.24 KM
Castle Hill Community Primary SchoolCommunity SchoolGood0.29 KM
Folkestone St. Mary'S Church Of England Primary AcademyAcademy ConverterGood0.79 KM
Folkestone, St Peter'S Church Of England Primary SchoolVoluntary Controlled SchoolGood0.83 KM
Martello PrimaryAcademy Sponsor LedRequires improvement0.88 KM

Images

34D05AEA-5B69-4F67-8C91-E6DCDD3735F7 T202511281131.jpg 3D385B73-B6F1-4872-8387-764A5B0864F6 T202511281131.jpg FEF11697-9DC7-45D4-A997-D27A5BB21597 T202511281131.jpg 0771778A-A0A7-4C6F-B896-ADEB54682BAB T202511281131.jpg 3413E34E-B72D-4334-9328-22D429094911 T202511281131.jpg 7E85B511-0D4E-4D76-8573-A3ADE4A47CB4 T202511281131.jpg 7D7FD7D8-DCD9-4737-BAFA-5385E7253D0E T202511281131.jpg 020582F0-17A9-47F2-B2BD-24A8E885CDA9 T202511281131.jpg

Nearby Streets

NameAverage PriceAverage SqftDistance
Lawrence Court £ 000.00 KM
Ash Tree Road £ 200,00000.00 KM
Folly Road £ 000.00 KM
Bridge Street £ 000.00 KM
Dover Hill £ 000.00 KM

Nearby Transport

NameNLCTLCDistance
Folkestone Central5035FKC2.17 KM
Folkestone West5027FKW3.83 KM

Nearby Listings

AddressPriceTypeScoreDistance
Dover Road, Folkestone, Kent, CT19 £ 425,000BUYUnknown0.00 KM
Ground Floor Flat, 225 Dover Road, Folkestone, Kent CT19 6NH £ 65,000BUY4 / 100.00 KM
Dover Road, Folkestone, CT19 £ 600,000BUY7 / 100.05 KM
Dover Road, Folkestone, Kent £ 270,000BUY6 / 100.08 KM
Dover Road, Folkestone, CT19 £ 475,000BUY7 / 100.10 KM

Nearby Properties

AddressPriceDistance
237 Dover Road £ 285,0000.00 KM
217 Dover Road £ 258,0000.00 KM
215 Dover Road £ 260,0000.00 KM
239 Dover Road £ 490,0000.00 KM
223 Dover Road £ 75,0000.00 KM