Laithes, Penrith
LA

Laithes, Penrith

By Lakes Estates

£ 395,000

Reviews

3 out of 5 stars

Lakes Estates says ..

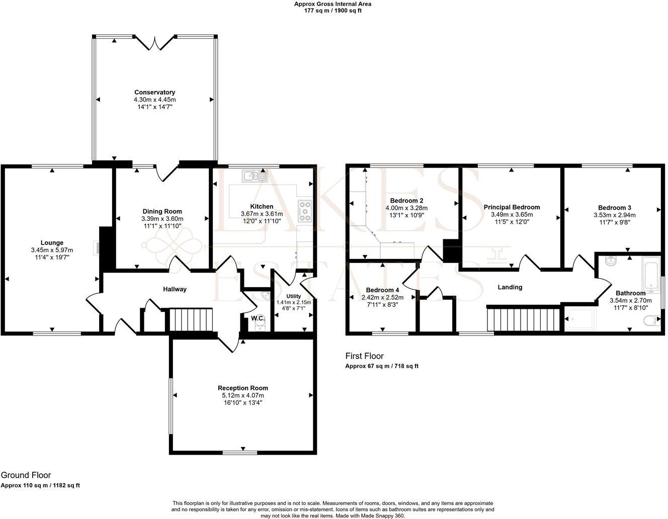
This impressive four-bedroom detached home is set on a generous plot in the desirable rural hamlet of Laithes, just 4 miles north-west of Penrith. Offering the perfect balance of countryside charm and modern convenience, Laithes is ideally situated for easy access to Penrith, Carlisle, a...

Property Oracle says ..

Therefore, we give this property 7 / 10. *Disclaimer: This is our option and does constitute a recommendation or financial advice. Do your own research. *

Price
9
Condition
7
Location
6
Land
8
Bedrooms
4
Bathrooms
1
Sqft (est)
1,517.28

The heatmap indicates the level of crime in the area. The color of the heatmap indicates the crime severity and recency.

Metrics Year-on-Year

Average area value
722,194.00 £
Increased by 1.02 %
from 714,889.00 £
Est sale value
710,087.04 £
Increased by 2.63 %
from 691,879.68 £
Average area rental value
2,810.00 £/mo
Decreased by 41.46 %
from 4,800.00 £/mo
Est letting value
1,517.28 £/mo
Decreased by 66.67 %
from 4,551.84 £/mo
Est rental Yield
4.67 %
Decreased by 42.06 %
from 8.06 %
Crime Rate
0.00 %
from 0.00 %

Agent Activity

  • Lakes Estates created the listing.

Nearby Schools

NameTypeOfstedDistance
Greystoke Primary SchoolCommunity SchoolGood4.47 KM
Skelton SchoolCommunity SchoolOutstanding5.39 KM
Stainton Cofe Primary SchoolVoluntary Aided SchoolGood5.92 KM
Plumpton SchoolCommunity SchoolGood7.18 KM
Calthwaite Cofe SchoolVoluntary Aided SchoolGood7.33 KM

Images

Scarista, Laithes 2D6A3416_17_18_19_20_1.jpg 2D6A3436_37_38_39_40_1.jpg 2D6A3471_2_3_4_5.jpg 2D6A3496_497_498_499_500.jpg 2D6A3536_37_38_39_40.jpg 2D6A3171_2_3_4_5.jpg 2D6A3196_197_198_199_200.jpg 2D6A3311_2_3_4_5.jpg 2D6A3386_87_88_89_90.jpg 2D6A3761_2_3_4_5.jpg 2D6A3731_2_3_4_5.jpg 2D6A3636_37_38_39_40.jpg 2D6A3826_27_28_29_30.jpg 2D6A3831_2_3_4_5.jpg 2D6A3886_87_88_89_90.jpg 2D6A4146_47_48_49_50.jpg 2D6A4096_097_098_099_100.jpg 2D6A3931_2_3_4_5.jpg 2D6A3971_2_3_4_5.jpg 2D6A4016_17_18_19_20.jpg 2D6A4236_37_38_39_40.jpg 2D6A4256_57_58_59_60.jpg 2D6A4521_2_3_4_5.jpg 2D6A4386_87_88_89_90.jpg 2D6A4341_2_3_4_5.jpg 2D6A4441_2_3_4_5.jpg 2D6A4346_47_48_49_50.jpg 2D6A4471_2_3_4_5.jpg 2D6A4396_397_398_399_400_1.jpg 2D6A4481_2_3_4_5.jpg 2D6A4501_2_3_4_5.jpg 2D6A4541_2_3_4_5.jpg

Nearby Streets

NameAverage PriceAverage SqftDistance
Park View £ 000.00 KM
Swalebrook Barn £ 000.00 KM

Nearby Transport

NameNLCTLCDistance
Penrith (North Lakes)2102PNR8.87 KM

Nearby Listings

AddressPriceTypeScoreDistance
Laithes, Penrith £ 395,000BUY7 / 100.00 KM
Scarista, Laithes, Penrith, Cumbria £ 440,000BUY8 / 100.03 KM
Millbrigg, Laithes, Penrith, Cumbria £ 250,000BUY7 / 100.11 KM
Blencow, Penrith, CA11 £ 310,000BUYUnknown1.17 KM
Blencow, Penrith £ 410,000BUY7 / 101.59 KM

Nearby Properties

AddressPriceDistance
2 The Lea £ 325,0000.21 KM
6 The Lea £ 258,0000.21 KM
5 The Lea £ 287,5000.21 KM
2 Park View £ 150,0001.32 KM