Brookfield Close, Hunt End, Redditch, B97 5LL
By Homes by Victoria
£ 690,000
Reviews
3 out of 5 stars
Homes by Victoria says ..
Welcome to this exquisite, executive detached family residence, uniquely positioned in the prestigious area of Hunt End, Redditch
Property Oracle says ..
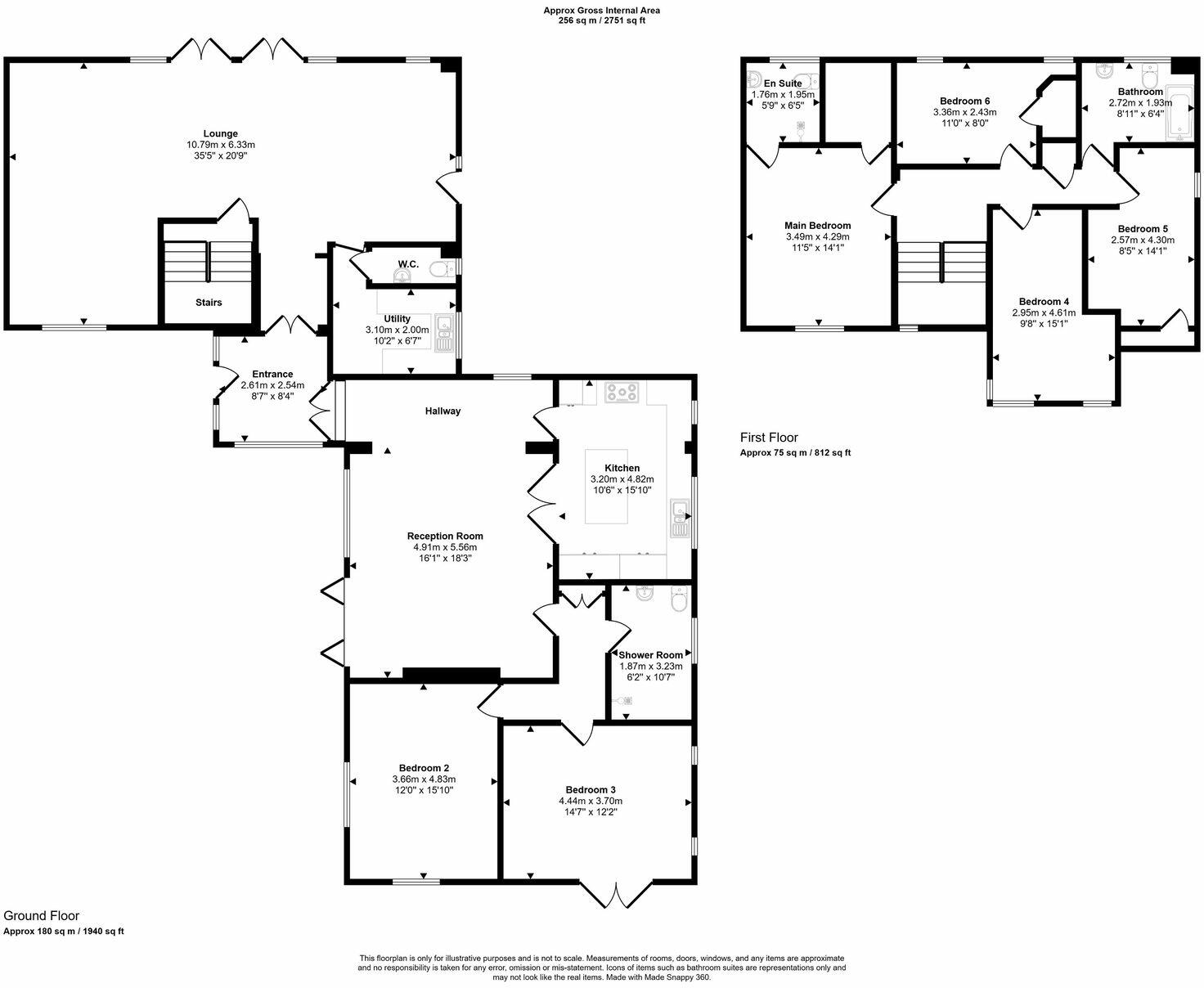
This six-bedroom, three-bathroom detached house in Hunt End, Redditch is presented in excellent condition. The property boasts a contemporary interior design, featuring modern fixtures, high-quality finishes, and a spacious layout. The kitchen is particularly notable, featuring modern appliances and ample counter space. The large living area provides plenty of space for relaxation and entertaining, and the inclusion of a games room in the basement adds a unique feature. The property’s exterior also appears to be well-maintained, with a nicely landscaped garden featuring artificial turf and patios. The property benefits from its location in the sought-after Hunt End area, which is known for its good schools and family-friendly environment. The proximity of St. Augustine’s Catholic High School, an ‘Outstanding’ Ofsted-rated school, is a major plus. While the exact plot size isn’t provided, the aerial photographs show a garden of decent size. However, a lack of precise plot size and price-per-square-foot data for nearby comparable properties makes it difficult to definitively assess the value compared to other properties within the locale. Nonetheless, based on its size, features, condition, and location, the property could be considered a suitable purchase for a family seeking a high-quality, modern home in a convenient location. Further investigation into local market pricing and comparative properties would allow for a more precise valuation.
Therefore, we give this property 7 / 10. *Disclaimer: This is our option and does constitute a recommendation or financial advice. Do your own research. *
- Price
- 7
- Condition
- 9
- Location
- 8
- Land
- 6
- Bedrooms
- 6
- Bathrooms
- 3
- Sqft (est)
- 3,562.85
The heatmap indicates the level of crime in the area. The color of the heatmap indicates the crime severity and recency.
Metrics Year-on-Year
- Average area value
- 315,000.00 £Decreased by 28.08 %
- Est sale value
- 3,124,619.45 £Increased by 227.24 %
- Average area rental value
- 788.00 £/moDecreased by 33.11 %
- Est letting value
- 7,125.70 £/mo
- Est rental Yield
- 3.00 %Decreased by 7.12 %
- Crime Rate
- 10.00 %Unchanged by 0.00 %
Agent Activity
Homes by Victoria created the listing.
Nearby Schools
| Name | Type | Ofsted | Distance |
|---|---|---|---|
| St Augustine'S Catholic High School | Academy Converter | Outstanding | 0.42 KM |
| Crabbs Cross Academy | Academy Sponsor Led | Good | 0.99 KM |
| Astwood Bank Primary School | Academy Converter | 1.48 KM | |
| The Vaynor First School | Academy Converter | Good | 1.70 KM |
| Walkwood Church Of England Middle School | Academy Converter | Good | 1.79 KM |
Images
Nearby Streets
| Name | Average Price | Average Sqft | Distance |
|---|---|---|---|
| Forest View | £ 245,000 | 0 | 0.00 KM |
| St Peters Close | £ 0 | 0 | 0.00 KM |
| Rough Hill Drive | £ 0 | 0 | 0.00 KM |
| Northside Close | £ 0 | 0 | 0.00 KM |
| Hanover Court | £ 0 | 0 | 0.00 KM |
Nearby Transport
| Name | NLC | TLC | Distance |
|---|---|---|---|
| Redditch | 1208 | RDC | 3.60 KM |
| Alvechurch | 1198 | ALV | 8.31 KM |
Nearby Listings
| Address | Price | Type | Score | Distance |
|---|---|---|---|---|
| Brookfield Close, Hunt End, Redditch, B97 5LL | £ 690,000 | BUY | 7 / 10 | 0.00 KM |
| Brookfield Close, Hunt End, Redditch | £ 450,000 | BUY | 6 / 10 | 0.00 KM |
| Brookfield Close, Hunt End, Redditch, Worcestershire, B97 | £ 500,000 | BUY | 7 / 10 | 0.04 KM |
| Brookfield Close, Hunt End, B97 | £ 450,000 | BUY | 6 / 10 | 0.06 KM |
| Brookfield Close, Hunt End, B97 | £ 450,000 | BUY | 7 / 10 | 0.08 KM |
Nearby Properties
| Address | Price | Distance |
|---|---|---|
| 2 Brookfield Close | £ 210,000 | 0.01 KM |
| 10 Brookfield Close | £ 475,000 | 0.01 KM |
| 50 Brookfield Close | £ 525,000 | 0.01 KM |
| 38 Brookfield Close | £ 335,000 | 0.01 KM |
| 37 Brookfield Close | £ 212,500 | 0.01 KM |