Russell Cope says ..
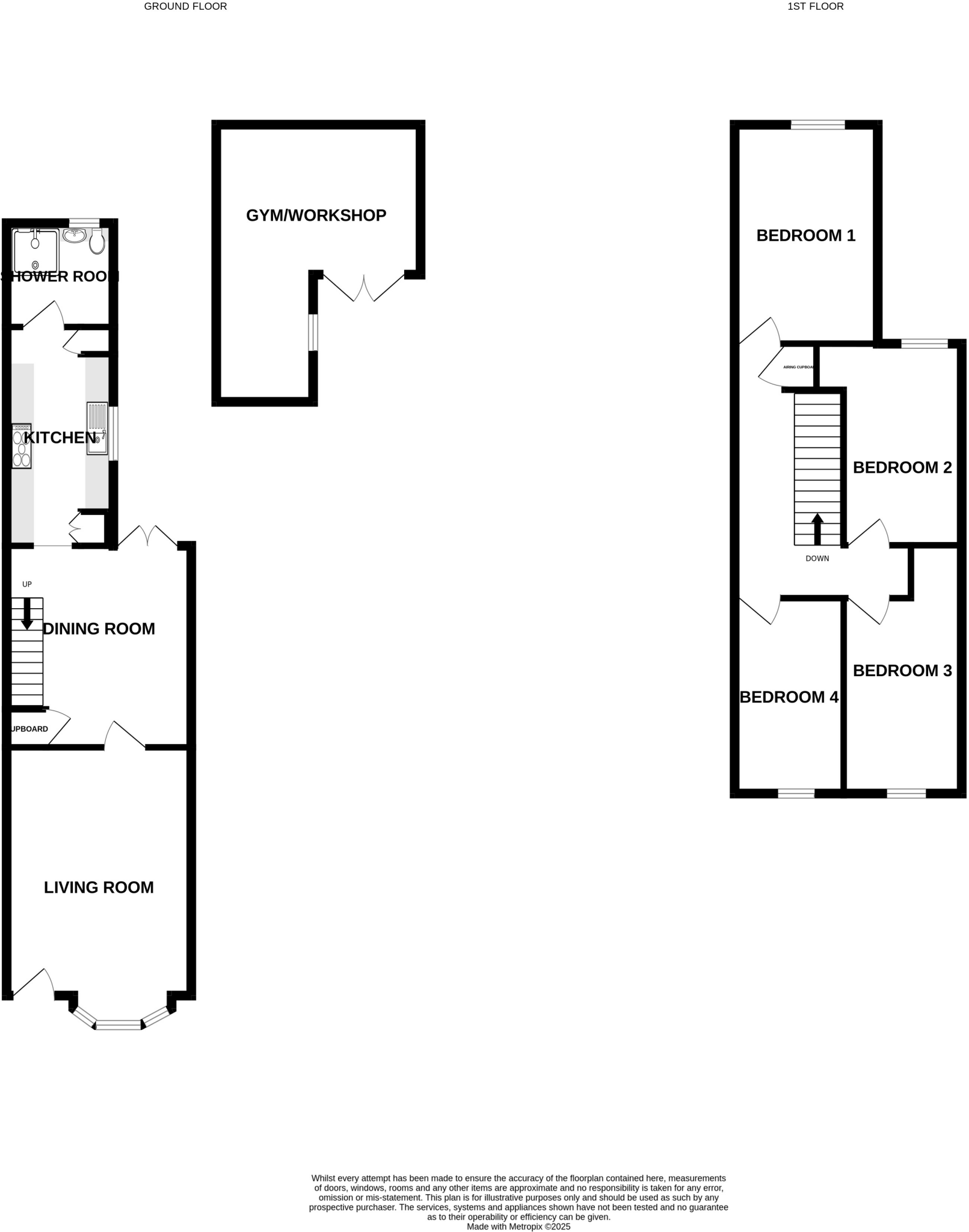
***STUNNING FOUR BEDROOM TERRACED FAMILY HOME***FANTASTIC SIZE BEDROOMS***UNIQUE LAYOUT***LANDSCAPED GARDEN WITH GYM/WORKSHOP*** Ground floor accommodation, featuring 'Amtico Flooring', and solid oak doors. Living room, separate dining room, galley kitchen with Rangemaster electric cooker, and mo...
Property Oracle says ..
Therefore, we give this property 7 / 10. *Disclaimer: This is our option and does constitute a recommendation or financial advice. Do your own research. *
- Price
- 9
- Condition
- 8
- Location
- 7
- Land
- 6
- Bedrooms
- 4
- Bathrooms
- 1
- Sqft (est)
- 1,312.00
The heatmap indicates the level of crime in the area. The color of the heatmap indicates the crime severity and recency.
Metrics Year-on-Year
- Average area value
- 371,430.00 £Increased by 11.76 %
- Est sale value
- 720,288.00 £Increased by 82.39 %
- Average area rental value
- 1,951.00 £/moDecreased by 12.94 %
- Est letting value
- 2,624.00 £/moUnchanged by 0.00 %
- Est rental Yield
- 6.30 %Decreased by 22.13 %
- Crime Rate
- 7.00 %Unchanged by 0.00 %
from 332,337.00 £
from 394,912.00 £
from 2,241.00 £/mo
from 2,624.00 £/mo
from 8.09 %
from 7.00 %
Agent Activity
Russell Cope created the listing.
Nearby Schools
| Name | Type | Ofsted | Distance |
|---|---|---|---|
| All Saints Bedworth Cofe Academy | Academy Converter | 0.28 KM | |
| St Michaels Children'S Centre (Formerly Known As Bedworth Early Years Centre) | Children's Centre | 0.55 KM | |
| St Francis Catholic Academy | Academy Converter | Good | 0.63 KM |
| Nicholas Chamberlaine School | Academy Sponsor Led | Requires improvement | 0.71 KM |
| St Michael'S Church Of England Academy | Academy Sponsor Led | Good | 0.73 KM |
Images
Nearby Streets
| Name | Average Price | Average Sqft | Distance |
|---|---|---|---|
| Byron Avenue | £ 210,000 | 0 | 0.00 KM |
| Edward Road | £ 0 | 0 | 0.00 KM |
| Chapel Street | £ 0 | 0 | 0.00 KM |
| Croxhall Street | £ 0 | 0 | 0.00 KM |
| Milton Close | £ 0 | 0 | 0.00 KM |
Nearby Transport
| Name | NLC | TLC | Distance |
|---|---|---|---|
| Bedworth | 1165 | BEH | 0.18 KM |
| Bermuda Park | 6543 | BEP | 2.60 KM |
| Coventry Arena | 7416 | CAA | 4.67 KM |
| Nuneaton | 1077 | NUN | 5.29 KM |
Nearby Listings
| Address | Price | Type | Score | Distance |
|---|---|---|---|---|
| Bulkington Road, Bedworth | £ 220,000 | BUY | 7 / 10 | 0.00 KM |
| Earl Street, Bedworth, Warwickshire, CV12 | £ 170,000 | BUY | 7 / 10 | 0.05 KM |
| Bulkington Road, Bedworth, CV12 | £ 170,000 | BUY | 7 / 10 | 0.06 KM |
| Railway Terrace, Bulkington Road, Bedworth, Warwickshire, CV12 | £ 110,000 | BUY | 5 / 10 | 0.07 KM |
| New Street, Bedworth, Warwickshire, CV12 | £ 140,000 | BUY | 5 / 10 | 0.15 KM |
Nearby Properties
| Address | Price | Distance |
|---|---|---|
| 36 Bulkington Road | £ 92,500 | 0.00 KM |
| 28 Bulkington Road | £ 101,000 | 0.00 KM |
| 4 Bulkington Road | £ 95,000 | 0.00 KM |
| 26 Bulkington Road | £ 95,000 | 0.00 KM |
| 24 Bulkington Road | £ 128,500 | 0.00 KM |