Rochester Road, Newport, NP19
By Number One Real Estate
£ 200,000
Reviews
3 out of 5 stars
Number One Real Estate says ..
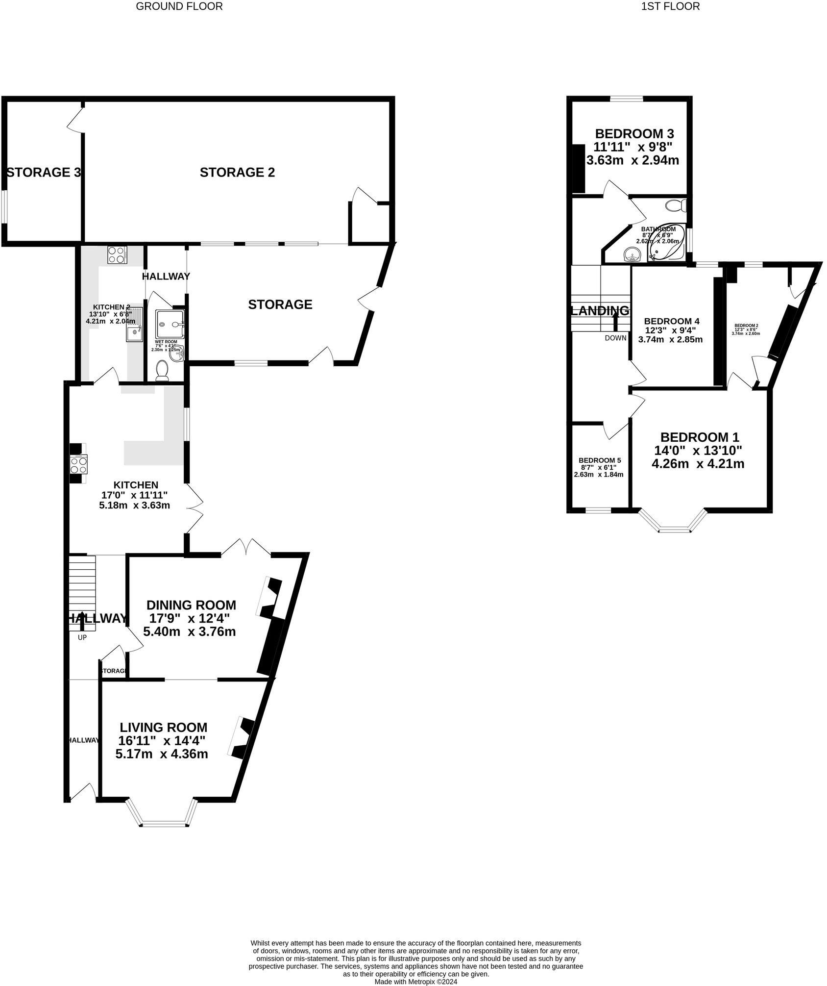
* GUIDE PRICE £200,000 - £220,000 **END OF TERRACE **FIVE BEDROOM **UNIQUE PROPERTY **EXTENSIVE REAR STORAGE **THREE BATHROOMS **SPACIOUS KITCHEN **COURTYARD GARDEN **SIDE ACCESS **ON STREET PARKING**
Property Oracle says ..
This property is a 4-bedroom, 2-bathroom end of terrace house located on Rochester Road in Newport, Wales. The list price is £200,000. The property benefits from a small rear yard. The average house price in the area is significantly higher at £400,449, and the average price per square foot is £354. This property, at 2027.92 sqft, is priced considerably lower than the average for the area. The property appears to be in need of some modernisation and updating, particularly in the bathrooms and kitchen. While the flooring and some aspects have been recently updated, the overall condition suggests a need for further improvements. The location is reasonably convenient, with several primary schools within a short distance and train stations within a 3-8km radius. However, the lack of detailed information on school ratings and the specifics of local amenities limits a full assessment of the location score.
Therefore, we give this property 6 / 10. *Disclaimer: This is our option and does constitute a recommendation or financial advice. Do your own research. *
- Price
- 8
- Condition
- 6
- Location
- 7
- Land
- 3
- Bedrooms
- 4
- Bathrooms
- 2
- Sqft (est)
- 2,027.92
The heatmap indicates the level of crime in the area. The color of the heatmap indicates the crime severity and recency.
Metrics Year-on-Year
- Average area value
- 360,833.00 £Decreased by 13.57 %
- Est sale value
- 711,799.92 £Decreased by 9.07 %
- Average area rental value
- 1,178.00 £/moIncreased by 8.17 %
- Est letting value
- 2,027.92 £/moUnchanged by 0.00 %
- Est rental Yield
- 3.92 %Increased by 25.24 %
- Crime Rate
- 6.00 %Unchanged by 0.00 %
Agent Activity
Number One Real Estate created the listing.
Nearby Schools
| Name | Type | Ofsted | Distance |
|---|---|---|---|
| Eveswell Primary School | Welsh Establishment | 0.17 KM | |
| St Patrick'S R.C. Primary School | Welsh Establishment | 0.81 KM | |
| St Joseph'S R.C. Primary School | Welsh Establishment | 0.82 KM | |
| Catch22 Include Wales | Welsh Establishment | 0.91 KM | |
| Newport Nursery School | Welsh Establishment | 1.33 KM |
Images
Nearby Streets
| Name | Average Price | Average Sqft | Distance |
|---|---|---|---|
| Rochester Road | £ 265,000 | 0 | 0.00 KM |
| Arundel Road | £ 212,990 | 0 | 0.00 KM |
| St. John's Road | £ 374,279 | 0 | 0.00 KM |
| Shelley Road | £ 230,000 | 0 | 0.00 KM |
| Telford Street | £ 142,500 | 0 | 0.00 KM |
Nearby Transport
| Name | NLC | TLC | Distance |
|---|---|---|---|
| Newport (South Wales) | 3674 | NWP | 3.04 KM |
| Pye Corner | 1663 | PYE | 7.20 KM |
| Cwmbran | 3738 | CWM | 8.98 KM |
Nearby Listings
| Address | Price | Type | Score | Distance |
|---|---|---|---|---|
| Rochester Road, Newport, NP19 | £ 200,000 | BUY | 5 / 10 | 0.00 KM |
| Rochester Road, Newport, NP19 | £ 155,000 | BUY | 5 / 10 | 0.00 KM |
| Rosslyn Road, Newport, NP19 | £ 170,000 | BUY | 5 / 10 | 0.06 KM |
| Rosslyn Road, Newport. NP19 8PD | £ 230,000 | BUY | 6 / 10 | 0.06 KM |
| Rosslyn Road, Newport | £ 230,000 | BUY | 6 / 10 | 0.07 KM |
Nearby Properties
| Address | Price | Distance |
|---|---|---|
| 14 Rochester Road | £ 210,000 | 0.01 KM |
| 22 Rochester Road | £ 162,500 | 0.01 KM |
| 23 Rochester Road | £ 90,000 | 0.03 KM |
| 3 Rochester Road | £ 135,500 | 0.03 KM |
| 8 Rochester Road | £ 125,000 | 0.03 KM |