Morleys Hill, Burton-on-Trent, DE13
By Newton Fallowell
£ 175,000
Reviews
3 out of 5 stars
Newton Fallowell says ..
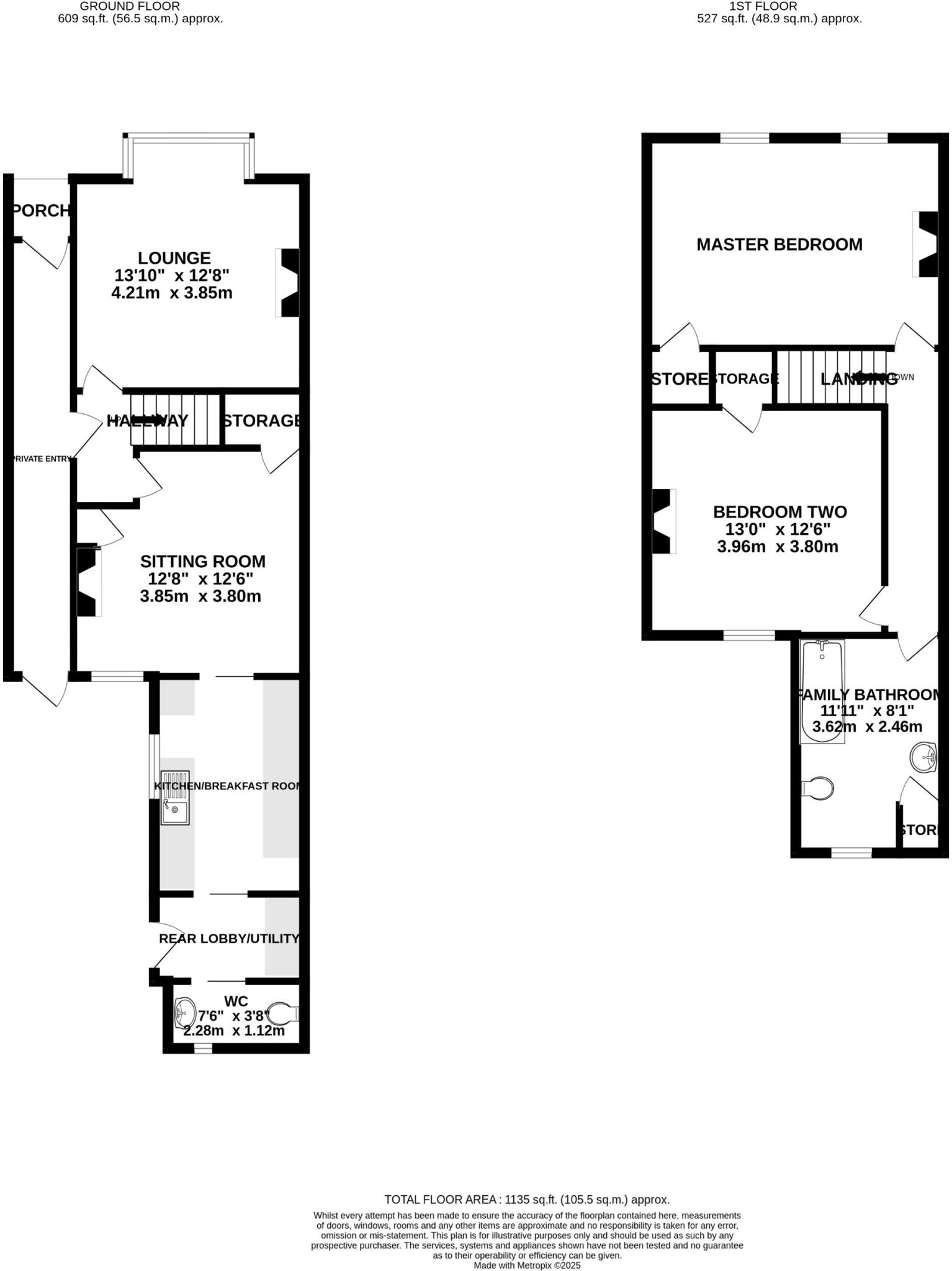
Newton Fallowell are pleased to be able to offer for sale this characterful Victorian town house located in a popular residential location close to Burton's Queens Hospital. The home offers immense character and large family living and provides accommodation which in brief comprises: - o...
Property Oracle says ..
This is a two-bedroom terraced property located on Morleys Hill, Horninglow, Burton-on-Trent. The property is listed with Newton Fallowell. It features one bathroom and has a square footage of 452.75 sqft. The property includes a garden. While generally tidy, the property would benefit from some modernisation. The location is reasonably good, with nearby schools and transportation links. The asking price of £175,000 appears reasonable when compared to the average price per square foot in the area.
Therefore, we give this property 6 / 10. *Disclaimer: This is our option and does constitute a recommendation or financial advice. Do your own research. *
- Price
- 7
- Condition
- 6
- Location
- 7
- Land
- 7
- Bedrooms
- 2
- Bathrooms
- 1
- Sqft (est)
- 452.75
The heatmap indicates the level of crime in the area. The color of the heatmap indicates the crime severity and recency.
Metrics Year-on-Year
- Average area value
- 476,875.00 £Increased by 24.90 %
- Est sale value
- 183,363.75 £Increased by 25.39 %
- Average area rental value
- 1,814.00 £/moIncreased by 18.80 %
- Est letting value
- 452.75 £/moUnchanged by 0.00 %
- Est rental Yield
- 4.56 %Decreased by 5.00 %
- Crime Rate
- 8.00 %Unchanged by 0.00 %
Agent Activity
Newton Fallowell created the listing.
Nearby Schools
| Name | Type | Ofsted | Distance |
|---|---|---|---|
| Scientia Academy | Academy Sponsor Led | Good | 0.63 KM |
| Horninglow Primary: A De Ferrers Trust Academy | Academy Sponsor Led | Good | 0.63 KM |
| Burton Fields School | Academy Sponsor Led | 0.79 KM | |
| Outwoods Primary School | Academy Converter | 0.87 KM | |
| The De Ferrers Academy | Academy Converter | Good | 0.96 KM |
Images
Nearby Streets
| Name | Average Price | Average Sqft | Distance |
|---|---|---|---|
| St Andrew's Drive | £ 177,500 | 0 | 0.00 KM |
| St Modwen's Close | £ 180,000 | 0 | 0.00 KM |
| A38 | £ 350,000 | 0 | 0.00 KM |
| St Jude's Way | £ 0 | 0 | 0.00 KM |
| St Mary's Drive | £ 425,000 | 0 | 0.00 KM |
Nearby Transport
| Name | NLC | TLC | Distance |
|---|---|---|---|
| Burton-On-Trent | 1658 | BUT | 2.01 KM |
| Tutbury And Hatton | 1783 | TUT | 6.00 KM |
| Willington | 1905 | WIL | 9.82 KM |
Nearby Listings
| Address | Price | Type | Score | Distance |
|---|---|---|---|---|
| Morleys Hill, Burton-on-Trent, DE13 | £ 175,000 | BUY | 6 / 10 | 0.00 KM |
| Horninglow Road North, BURTON-ON-TRENT | £ 200,000 | BUY | 6 / 10 | 0.06 KM |
| Horninglow Road North, Burton-on-Trent, DE13 | £ 90,000 | BUY | 6 / 10 | 0.09 KM |
| Horninglow Road North, Burton-On-Trent | £ 125,000 | BUY | 7 / 10 | 0.09 KM |
| Horninglow Road North, Burton-On-Trent | £ 200,000 | BUY | 7 / 10 | 0.13 KM |
Nearby Properties
| Address | Price | Distance |
|---|---|---|
| 26 Morleys Hill | £ 185,000 | 0.00 KM |
| 18 Morleys Hill | £ 162,000 | 0.00 KM |
| 7 Morleys Hill | £ 220,000 | 0.00 KM |
| 22 Morleys Hill | £ 145,000 | 0.00 KM |
| 10 Morleys Hill | £ 117,000 | 0.00 KM |