Oliver & Co says ..
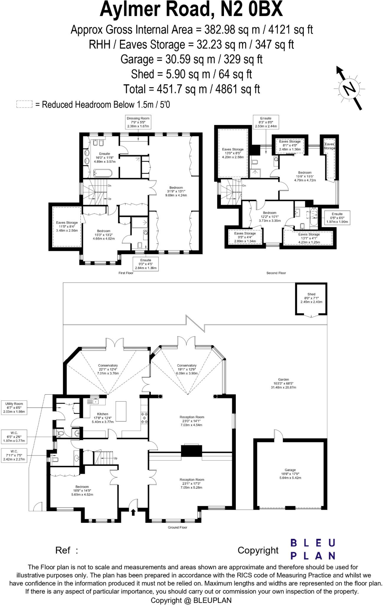
This attractive and spacious four-bedroom detached family home is situated in a prime location within Hampstead Garden Suburb, just moments from The Bishops Avenue.
Property Oracle says ..
Therefore, we give this property 8 / 10. *Disclaimer: This is our option and does constitute a recommendation or financial advice. Do your own research. *
- Price
- 7
- Condition
- 8
- Location
- 9
- Land
- 8
- Bedrooms
- 4
- Bathrooms
- 4
The heatmap indicates the level of crime in the area. The color of the heatmap indicates the crime severity and recency.
Metrics Year-on-Year
- Average area value
- 1,250,000.00 £Increased by 29.43 %
- Average area rental value
- 1,586.00 £/moDecreased by 31.04 %
- Est rental Yield
- 1.52 %Decreased by 46.85 %
- Crime Rate
- 2.00 %Unchanged by 0.00 %
from 965,740.00 £
from 2,300.00 £/mo
from 2.86 %
from 2.00 %
Agent Activity
Oliver & Co created the listing.
Nearby Schools
| Name | Type | Ofsted | Distance |
|---|---|---|---|
| Holy Trinity Cofe Primary School | Voluntary Aided School | Outstanding | 0.96 KM |
| Kerem School | Other Independent School | 0.98 KM | |
| The Archer Academy | Free Schools | Outstanding | 1.06 KM |
| Highgate Primary School | Community School | Good | 1.20 KM |
| Annemount School | Other Independent School | 1.25 KM |
Images
Nearby Streets
| Name | Average Price | Average Sqft | Distance |
|---|---|---|---|
| Aylmer Road | £ 2,030,000 | 0 | 0.00 KM |
| Leicester Mews | £ 0 | 0 | 0.00 KM |
| Byron Drive | £ 10,587,500 | 0 | 0.00 KM |
| Abbotts Gardens | £ 0 | 0 | 0.00 KM |
| Church Vale | £ 2,350,000 | 0 | 0.00 KM |
Nearby Transport
| Name | NLC | TLC | Distance |
|---|---|---|---|
| Hampstead Heath | 1413 | HDH | 3.12 KM |
| Gospel Oak | 1409 | GPO | 3.48 KM |
| Finchley Road And Frognal | 1445 | FNY | 4.17 KM |
| New Southgate | 6019 | NSG | 4.22 KM |
| Upper Holloway | 1524 | UHL | 4.50 KM |
Nearby Listings
| Address | Price | Type | Score | Distance |
|---|---|---|---|---|
| Aylmer Road, N2 | £ 2,595,000 | BUY | 8 / 10 | 0.00 KM |
| Aylmer Road, London, N2 | £ 2,250,000 | BUY | 7 / 10 | 0.00 KM |
| Aylmer Road, London | £ 2,800,000 | BUY | 7 / 10 | 0.02 KM |
| Aylmer Road, East Finchley, London, N2 | £ 2,200,000 | BUY | Unknown | 0.04 KM |
| Aylmer Road, London | £ 1,250,000 | BUY | 7 / 10 | 0.07 KM |
Nearby Properties
| Address | Price | Distance |
|---|---|---|
| 36 Aylmer Road | £ 2,375,000 | 0.02 KM |
| 34 Aylmer Road | £ 1,330,000 | 0.02 KM |
| 4 Aylmer Road | £ 1,250,000 | 0.02 KM |
| 32 Aylmer Road | £ 890,000 | 0.02 KM |
| 10 Aylmer Road | £ 1,160,000 | 0.02 KM |