Carnwath Road, Carluke
AB

Carnwath Road, Carluke

By AB Properties

£ 299,995

Reviews

3 out of 5 stars

AB Properties says ..

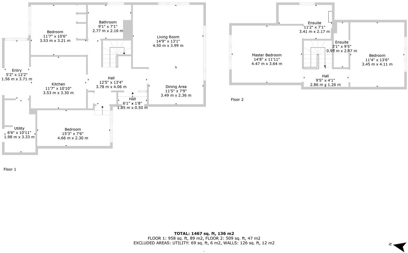
Beautifully renovated and deceptively spacious, this stunning four-bedroom detached villa truly must be viewed in person to be fully appreciated. Set in a central location within Carluke, the property is perfectly positioned close to a wide array of local amenities, schools, and transport links. ...

Property Oracle says ..

This is a detached property located on Carnwath Road in Carluke. The property has 4 bedrooms and 3 bathrooms. The property is in excellent condition and has a modern interior. The property also has a good-sized garden and a garage. The property is located 2.02 KM from Carluke train station. The property is listed for £299,995, which seems reasonable given the condition and location of the property.

Therefore, we give this property 7 / 10. *Disclaimer: This is our option and does constitute a recommendation or financial advice. Do your own research. *

Price
8
Condition
9
Location
7
Land
7
Bedrooms
4
Bathrooms
3

The heatmap indicates the level of crime in the area. The color of the heatmap indicates the crime severity and recency.

Metrics Year-on-Year

Average area value
300,000.00 £
Decreased by 54.85 %
from 664,444.00 £
Average area rental value
1,007.00 £/mo
Decreased by 25.41 %
from 1,350.00 £/mo
Est rental Yield
4.03 %
Increased by 65.16 %
from 2.44 %
Crime Rate
0.00 %
from 0.00 %

Agent Activity

  • AB Properties created the listing.

Images

A-44.jpg A-1.jpg A-3.jpg A-6.jpg A-7.jpg A-5.jpg A-12.jpg A-11.jpg A-16.jpg A-19.jpg A-22.jpg A-23.jpg A-8.jpg A-9.jpg A-21.jpg A-24.jpg A-27.jpg A-29.jpg A-31.jpg A-33.jpg A-40.jpg A-41.jpg A-35.jpg

Nearby Streets

NameAverage PriceAverage SqftDistance
Glenafeoch Road £ 109,99800.00 KM
Stanistone Road £ 000.00 KM
Hillhead Avenue £ 59,99500.00 KM
Miller Street £ 58,00000.00 KM
Cairnhill Court £ 79,99500.00 KM

Nearby Transport

NameNLCTLCDistance
Carluke9702CLU2.02 KM
Hartwood9246HTW8.64 KM
Lanark9710LNK9.27 KM

Nearby Listings

AddressPriceTypeScoreDistance
Carnwath Road, Carluke, ML8 £ 325,000BUY7 / 100.00 KM
Carnwath Road, Carluke £ 299,995BUY7 / 100.00 KM
Carnwath Road, Carluke, ML8 £ 130,000BUY6 / 100.03 KM
53 Glenafeoch Road Carluke ML8 4DR £ 147,000BUY7 / 100.20 KM
Carnwath Road, Carluke, ML8 £ 285,000BUY6 / 100.20 KM