20 St. Andrews Road, Bridgend, CF31 1RX
By Herbert R Thomas
£ 215,000
Reviews
3 out of 5 stars
Herbert R Thomas says ..
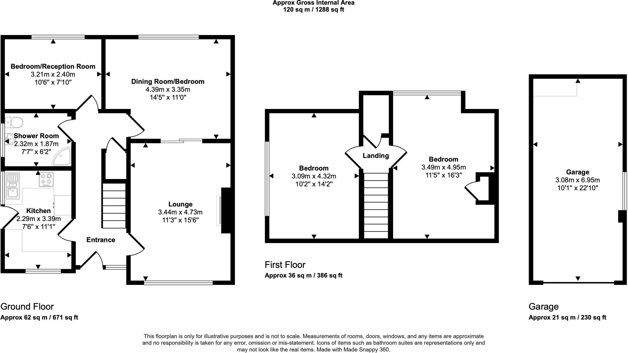
The property is approached via a double-glazed front door leading into a welcoming entrance hall. The hallway is carpeted, with the original wooden block flooring preserved beneath. Stairs rise to the first floor, and doors open to the lounge, kitchen, bathroom, bedroom & dining room. A usefu...
Property Oracle says ..
20 St. Andrew’s Road is a semi-detached bungalow in Bridgend, offering three bedrooms and one bathroom. The property features a garden, a patio area, and a greenhouse. While the location is convenient with nearby schools and transportation, the property requires renovation to modernize its interior. The price appears competitive, but potential buyers should consider the cost of upgrades.
Therefore, we give this property 6 / 10. *Disclaimer: This is our option and does constitute a recommendation or financial advice. Do your own research. *
- Price
- 7
- Condition
- 5
- Location
- 7
- Land
- 7
- Bedrooms
- 3
- Bathrooms
- 1
The heatmap indicates the level of crime in the area. The color of the heatmap indicates the crime severity and recency.
Metrics Year-on-Year
- Average area value
- 245,000.00 £Decreased by 2.53 %
- Average area rental value
- 608.00 £/moDecreased by 26.30 %
- Est rental Yield
- 2.98 %Decreased by 24.37 %
- Crime Rate
- 21.00 %Unchanged by 0.00 %
Agent Activity
Herbert R Thomas created the listing.
Nearby Schools
| Name | Type | Ofsted | Distance |
|---|---|---|---|
| Cefn Glas Infant School | Welsh Establishment | 1.36 KM | |
| Bryntirion Comprehensive School | Welsh Establishment | 1.39 KM | |
| Ysgol Bryn Castell | Welsh Establishment | 1.41 KM | |
| St Mary'S Catholic Primary School | Welsh Establishment | 1.46 KM | |
| Penyfai C.I.W. Primary | Welsh Establishment | 1.62 KM |
Images
Nearby Streets
| Name | Average Price | Average Sqft | Distance |
|---|---|---|---|
| St. Patrick's Drive | £ 279,950 | 0 | 0.00 KM |
| St. George's Avenue | £ 0 | 0 | 0.00 KM |
| Saint George's Avenue | £ 250,000 | 0 | 0.00 KM |
| Maes-Y-Felin | £ 110,000 | 0 | 0.00 KM |
| Old Tondu Road | £ 0 | 0 | 0.00 KM |
Nearby Transport
| Name | NLC | TLC | Distance |
|---|---|---|---|
| Wildmill | 3965 | WMI | 0.34 KM |
| Bridgend | 3809 | BGN | 1.82 KM |
| Sarn | 4270 | SRR | 2.06 KM |
| Tondu | 4271 | TDU | 3.19 KM |
| Pencoed | 3851 | PCD | 9.09 KM |
Nearby Listings
| Address | Price | Type | Score | Distance |
|---|---|---|---|---|
| 20 St. Andrews Road, Bridgend, CF31 1RX | £ 215,000 | BUY | 6 / 10 | 0.00 KM |
| St Francis Road, Bridgend, Bridgend County. CF31 1RY | £ 179,950 | BUY | 6 / 10 | 0.19 KM |
| St. Georges Avenue, Bridgend | £ 300,000 | BUY | 7 / 10 | 0.22 KM |
| St. Georges Avenue, Bridgend, Bridgend County. CF31 1RS | £ 290,000 | BUY | 7 / 10 | 0.23 KM |
| Tairfelin, Bridgend, Bridgend County. CF31 1SW | £ 119,995 | BUY | 6 / 10 | 0.23 KM |
Nearby Properties
| Address | Price | Distance |
|---|---|---|
| 15 St Andrews Road | £ 147,500 | 0.01 KM |
| 1 St Andrews Road | £ 167,000 | 0.01 KM |
| 6 St Andrews Road | £ 137,500 | 0.01 KM |
| 2 Llety Gwyn | £ 208,000 | 0.13 KM |
| 1 Llety Gwyn | £ 238,000 | 0.13 KM |