Whytecliffe Road South, Purley, CR8
By Streets Ahead
£ 100,000
Reviews
2 out of 5 stars
Streets Ahead says ..
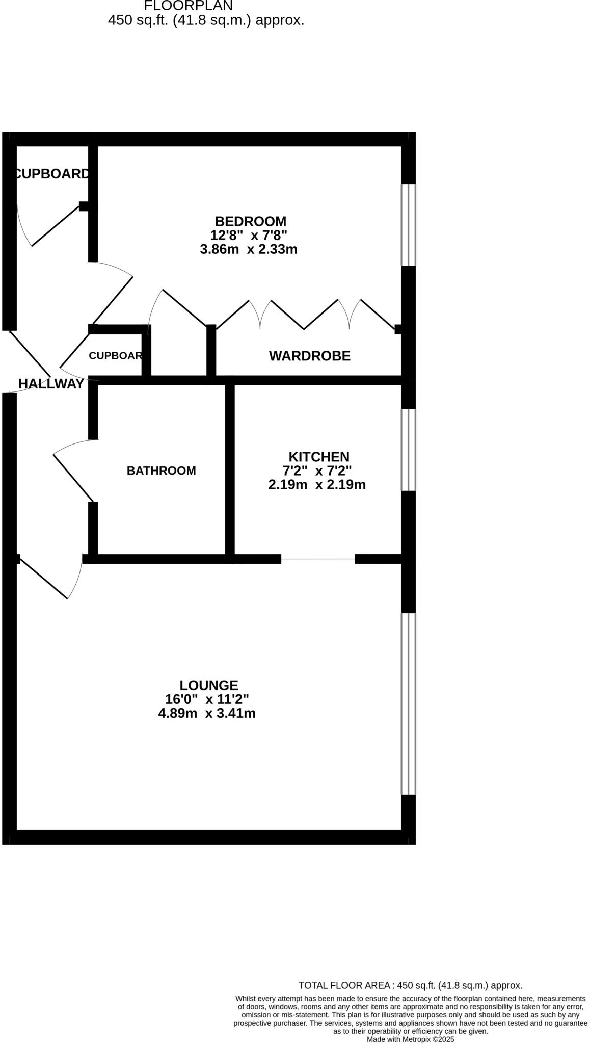
Offered for sale is this one bedroom apartment benefitting from a spacious lounge, fitted separate kitchen, double bedroom, bathroom and storage cupboards. The property benefits from double glazing and electric heating.
Property Oracle says ..
This one-bedroom apartment in Purley, Croydon is listed at £100,000. The property is located on Whytecliffe Road South, close to Purley station providing convenient access to transport links. The area has several schools nearby, including Purley Nursery School (Outstanding Ofsted rating) and Christ Church Cofe Primary School (Good Ofsted rating). The apartment itself appears to be in reasonably good condition from the photos, though it may benefit from some modernisation. The kitchen and bathroom appear dated but functional. The property has a small plot size of 450 sqft. Compared to the average price per sqft in the area (£513), and considering the average price of similar properties on Whytecliffe Road South (ranging from £90,000 to £145,000), the listed price seems reasonable, potentially slightly below average for the area given its size and condition. However, the lack of sqft information for comparable properties makes a precise price comparison difficult. The absence of garden space is a notable factor.
Therefore, we give this property 5 / 10. *Disclaimer: This is our option and does constitute a recommendation or financial advice. Do your own research. *
- Price
- 7
- Condition
- 6
- Location
- 7
- Land
- 3
- Bedrooms
- 1
- Bathrooms
- 1
- Sqft (est)
- 352.66
- Lot (est)
- 450.00
The heatmap indicates the level of crime in the area. The color of the heatmap indicates the crime severity and recency.
Metrics Year-on-Year
- Average area value
- 616,068.00 £Decreased by 0.97 %
- Est sale value
- 207,364.08 £Increased by 27.00 %
- Average area rental value
- 1,898.00 £/moDecreased by 5.95 %
- Est letting value
- 352.66 £/moUnchanged by 0.00 %
- Est rental Yield
- 3.70 %Decreased by 4.88 %
- Crime Rate
- 38.00 %Unchanged by 0.00 %
Agent Activity
Streets Ahead created the listing.
Nearby Schools
| Name | Type | Ofsted | Distance |
|---|---|---|---|
| Purley Nursery School | Local Authority Nursery School | Outstanding | 0.24 KM |
| Christ Church Cofe Primary School (Purley) | Voluntary Aided School | Good | 0.44 KM |
| Thomas More Catholic School | Voluntary Aided School | Good | 0.94 KM |
| Margaret Roper Catholic Primary School | Voluntary Aided School | Good | 0.94 KM |
| St David'S School | Other Independent School | 1.12 KM |
Images
Nearby Streets
| Name | Average Price | Average Sqft | Distance |
|---|---|---|---|
| Christchurch Road | £ 315,000 | 0 | 0.00 KM |
| Warren Road | £ 235,000 | 0 | 0.00 KM |
| Purley Road | £ 350,000 | 0 | 0.00 KM |
| Gables Court | £ 130,000 | 0 | 0.00 KM |
| Hamilton Close | £ 950,000 | 0 | 0.00 KM |
Nearby Transport
| Name | NLC | TLC | Distance |
|---|---|---|---|
| Purley | 5379 | PUR | 0.22 KM |
| Reedham (London) | 5431 | RHM | 1.46 KM |
| Riddlesdown | 5432 | RDD | 1.70 KM |
| Purley Oaks | 5430 | PUO | 1.79 KM |
| Kenley | 5419 | KLY | 2.11 KM |
Nearby Listings
| Address | Price | Type | Score | Distance |
|---|---|---|---|---|
| Whytecliffe Road South, Purley, CR8 | £ 100,000 | BUY | 5 / 10 | 0.00 KM |
| Azalea Court, 75, Whytecliffe Road South, Purley, CR8 | £ 80,000 | BUY | 6 / 10 | 0.00 KM |
| Whytecliffe Road South, Purley, CR8 | £ 90,000 | BUY | 6 / 10 | 0.00 KM |
| Whytecliffe Road South, Purley | £ 160,000 | BUY | 6 / 10 | 0.01 KM |
| Whytecliffe Road South, Purley, Surrey | £ 95,000 | BUY | Unknown | 0.01 KM |
Nearby Properties
| Address | Price | Distance |
|---|---|---|
| 134b High Street | £ 150,000 | 0.10 KM |
| 84 Whytecliffe Road North | £ 232,000 | 0.10 KM |
| 72 Whytecliffe Road North | £ 600,000 | 0.10 KM |
| 74 Whytecliffe Road North | £ 600,000 | 0.10 KM |
| 82 Whytecliffe Road North | £ 240,000 | 0.10 KM |