Keatons says ..
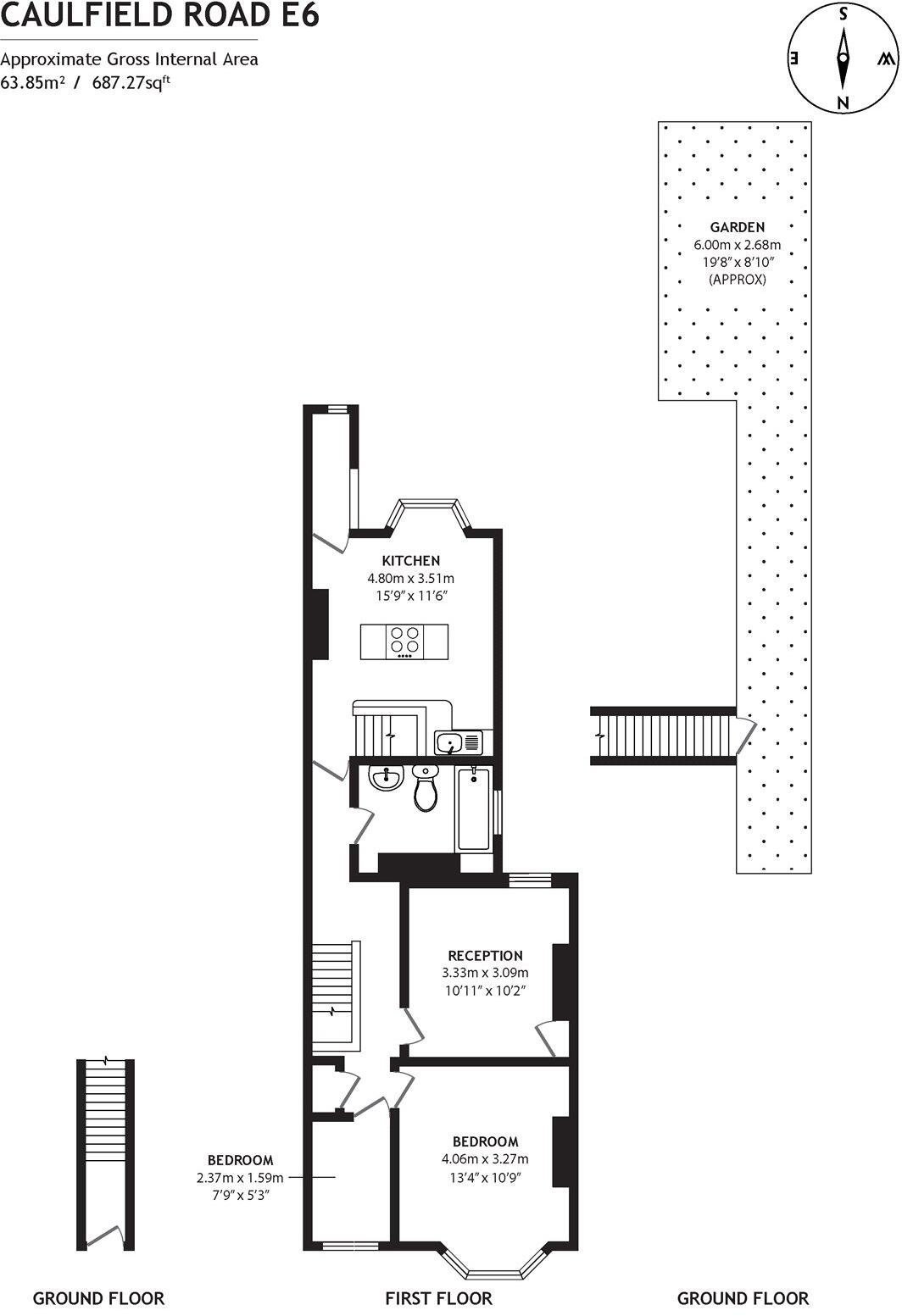
Located on the sought- after Caulfield Road E6. This charming Share of Freehold, terraced first-floor maisonette offers a perfect blend of comfort and convenience. Boasting 2 bedrooms, this property spans a generous 687 sq. ft. The well-maintained garden provides a tranquil outdoor space, while r...
Property Oracle says ..
Therefore, we give this property 6 / 10. *Disclaimer: This is our option and does constitute a recommendation or financial advice. Do your own research. *
- Price
- 6
- Condition
- 7
- Location
- 7
- Land
- 7
- Bedrooms
- 2
- Bathrooms
- 1
- Sqft (est)
- 687.28
The heatmap indicates the level of crime in the area. The color of the heatmap indicates the crime severity and recency.
Metrics Year-on-Year
- Average area value
- 500,000.00 £Increased by 24.03 %
- Est sale value
- 580,064.32 £Increased by 98.12 %
- Average area rental value
- 1,975.00 £/moDecreased by 19.81 %
- Est letting value
- 2,061.84 £/moIncreased by 50.00 %
- Est rental Yield
- 4.74 %Decreased by 35.33 %
- Crime Rate
- 6.00 %Unchanged by 0.00 %
from 403,125.00 £
from 292,781.28 £
from 2,463.00 £/mo
from 1,374.56 £/mo
from 7.33 %
from 6.00 %
Agent Activity
Keatons created the listing.
Nearby Schools
| Name | Type | Ofsted | Distance |
|---|---|---|---|
| Altmore Childrens Centre | Children's Centre | 0.21 KM | |
| Altmore Infant School | Community School | Good | 0.27 KM |
| Lathom Junior School | Community School | Good | 0.29 KM |
| Newham Collegiate Sixth Form Centre, City Of London Academy | Free Schools 16 To 19 | Outstanding | 0.47 KM |
| Kensington Primary School | Academy Converter | 0.56 KM |
Images
Nearby Streets
| Name | Average Price | Average Sqft | Distance |
|---|---|---|---|
| Skeffington Road | £ 0 | 0 | 0.00 KM |
| Clements Road | £ 550,000 | 0 | 0.00 KM |
| Madge Gill Way | £ 0 | 0 | 0.00 KM |
| High Street South | £ 410,000 | 0 | 0.00 KM |
| High Street North | £ 0 | 0 | 0.00 KM |
Nearby Transport
| Name | NLC | TLC | Distance |
|---|---|---|---|
| Woodgrange Park | 7467 | WGR | 1.86 KM |
| Manor Park | 6883 | MNP | 2.02 KM |
| Barking | 7492 | BKG | 2.77 KM |
| Ilford | 6881 | IFD | 2.88 KM |
| Wanstead Park | 7408 | WNP | 3.67 KM |
Nearby Listings
| Address | Price | Type | Score | Distance |
|---|---|---|---|---|
| Caulfield Road, London, E6 | £ 350,000 | BUY | 6 / 10 | 0.00 KM |
| Caulfield Road, East Ham, London, E6 | £ 325,000 | BUY | 6 / 10 | 0.03 KM |
| Caledon Road, London | £ 300,000 | BUY | 6 / 10 | 0.03 KM |
| Caledon Road, East Ham, London, E6 | £ 525,000 | BUY | 6 / 10 | 0.04 KM |
| Ground Floor Flat, 79 Caulfield Road, East Ham, London, E6 2EL | £ 225,000 | BUY | 6 / 10 | 0.05 KM |
Nearby Properties
| Address | Price | Distance |
|---|---|---|
| 68 Caulfield Road | £ 90,000 | 0.03 KM |
| 114a Caulfield Road | £ 151,000 | 0.03 KM |
| 108a Caulfield Road | £ 164,995 | 0.03 KM |
| 74 Caulfield Road | £ 291,000 | 0.03 KM |
| 70a Caulfield Road | £ 163,000 | 0.03 KM |