Long Lane, Telford
Samuel Wood logo

Long Lane, Telford

By Samuel Wood

£ 725,000

Reviews

3 out of 5 stars

Samuel Wood says ..

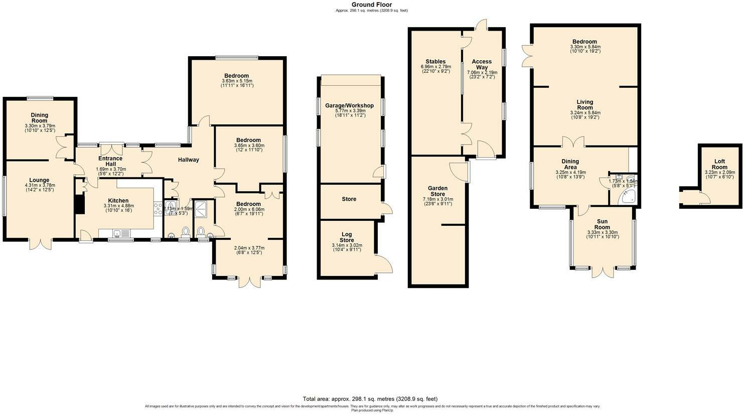
Presenting Estover Lodge, an exquisite country property encompassing a generously spacious three-bedroom brick built detached bungalow, a separate one-bedroom annexe/log cabin providing versatility for various needs, detached garage, double stables, all nestled within nearly an acre of meticulous...

Property Oracle says ..

Therefore, we give this property 7 / 10. *Disclaimer: This is our option and does constitute a recommendation or financial advice. Do your own research. *

Price
6
Condition
9
Location
7
Land
8
Bedrooms
4
Bathrooms
3
Lot (est)
3,208.90

The heatmap indicates the level of crime in the area. The color of the heatmap indicates the crime severity and recency.

Metrics Year-on-Year

Average area value
461,863.00 £
Increased by 14.54 %
from 403,246.00 £
Average area rental value
775.00 £/mo
Decreased by 30.12 %
from 1,109.00 £/mo
Est rental Yield
2.01 %
Decreased by 39.09 %
from 3.30 %
Crime Rate
0.00 %
from 0.00 %

Agent Activity

  • Samuel Wood created the listing.

Nearby Schools

NameTypeOfstedDistance
St Peter'S Bratton Church Of England AcademyAcademy Converter2.28 KM
Crudgington Primary SchoolAcademy Converter2.90 KM
Dothill Primary SchoolFoundation SchoolGood3.28 KM
The Old Hall SchoolOther Independent School3.67 KM
Wrekin View Primary SchoolAcademy Converter3.95 KM

Images

External.jpeg DSC_9765.JPG Estover Lodge 2.JPG DSC_9751.JPG DSC_9768.JPG DSC_9767.JPG DSC_9763.JPG DSC_9761.JPG DSC_9760.JPG DSC_9753.JPG DSC_9754.JPG DSC_9766.JPG HQ pictures 1.jpg HQ pictures 2.jpg HQ pictures 5.jpg HQ pictures 6.jpg DSC_9782.JPG image00022.jpeg DSC_9739.JPG Estover Lodge garden e.jpg Estover Lodge garden 1 e.jpg DSC_9735.JPG Estover Lodge 3.jpg DSC_9737.JPG DSC_9738.JPG 234287_MNN_PRS_LFSYCL_927_1059310366_IMG_21_0001.j HQ pictures 3.jpg

Nearby Streets

NameAverage PriceAverage SqftDistance
Sleapford £ 000.00 KM
Tree Fields £ 000.00 KM
Crudgington Bridge £ 000.00 KM

Nearby Transport

NameNLCTLCDistance
Wellington (Shropshire)4690WLN4.75 KM

Nearby Listings

AddressPriceTypeScoreDistance
Long Lane, Telford £ 700,000BUY7 / 100.06 KM
Estover Lodge, Sleapford, Long Lane, Telford, Shropshire, TF6 6HQ £ 700,000BUY8 / 100.15 KM
9 Acres approximately of Amenity Land £ 360,000BUY6 / 100.43 KM
Tree Fields, Long Lane, Telford, Shropshire, TF6 £ 339,995BUY7 / 100.52 KM
Long Lane, Telford, Shropshire, TF6 £ 220,000BUY6 / 100.58 KM

Nearby Properties

AddressPriceDistance
102 Hopkins Heath £ 159,0001.78 KM
104 Hopkins Heath £ 180,0001.78 KM
76 Hopkins Heath £ 175,0001.78 KM
82 Hopkins Heath £ 230,0001.78 KM
74 Hopkins Heath £ 142,5001.78 KM