Cornwallis Circle, Whitstable
By Christopher Hodgson
£ 115,000
Reviews
2 out of 5 stars
Christopher Hodgson says ..
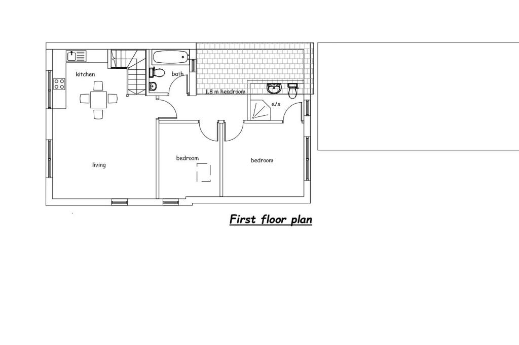
An exciting opportunity to acquire a building plot with the benefit of approved planning permission (subject to conditions) for the erection of a two storey detached house with double garage following demolition of five of nine existing garages. Four garages will be retained or replaced.
Property Oracle says ..
This listing is for a building plot situated on Cornwallis Circle, Whitstable, Kent. The plot requires demolition of existing garages before construction of a new, two-storey detached house with double garage can begin. The approved planning permission is subject to conditions, so this must be verified independently.
The location is advantageous due to Whitstable’s popularity as a seaside town, offering a good blend of amenities, transport links (Whitstable train station is within reach), and proximity to good schools. However, the immediate surroundings of the plot itself are not particularly appealing, comprising a row of garages. The plot size is relatively small for a detached house. The photograph shows that the existing garages are in a poor state of repair.
Given the need for demolition and the small size of the plot, the price of £115,000 might be considered reasonable relative to comparable plots but buyers need to factor in significant construction costs. The actual value of this opportunity strongly depends on the final cost of construction and completion versus the projected value of the newly built property. More information on the specific planning permissions and their conditions is crucial, as well as confirmation on associated costs (demolition, etc.) to ensure buyers have a realistic idea of the overall investment and potential return.
Therefore, we give this property 5 / 10. *Disclaimer: This is our option and does constitute a recommendation or financial advice. Do your own research. *
- Price
- 6
- Condition
- 3
- Location
- 7
- Land
- 4
- Bedrooms
- 0
- Bathrooms
- 0
- Sqft (est)
- 317.52
The heatmap indicates the level of crime in the area. The color of the heatmap indicates the crime severity and recency.
Metrics Year-on-Year
- Average area value
- 467,833.00 £Increased by 3.56 %
- Est sale value
- 233,377.20 £Increased by 86.55 %
- Average area rental value
- 1,383.00 £/moIncreased by 4.30 %
- Est letting value
- 635.04 £/moIncreased by 100.00 %
- Est rental Yield
- 3.55 %Increased by 0.85 %
- Crime Rate
- 50.00 %Unchanged by 0.00 %
Agent Activity
Christopher Hodgson marked this listing as sold.
Christopher Hodgson created the listing.
Nearby Schools
| Name | Type | Ofsted | Distance |
|---|---|---|---|
| St Alphege Church Of England Infant School | Voluntary Controlled School | Good | 0.22 KM |
| Whitstable Junior School | Foundation School | Good | 0.27 KM |
| Whitstable And Seasalter Endowed Church Of England Junior School | Voluntary Aided School | Outstanding | 0.29 KM |
| Isp Polar Re Start Centre | Other Independent Special School | 0.36 KM | |
| Westmeads Community Infant School | Community School | Outstanding | 0.75 KM |
Images
Nearby Streets
| Name | Average Price | Average Sqft | Distance |
|---|---|---|---|
| Salt Pans Lane | £ 360,000 | 0 | 0.00 KM |
| Shipwrights Lee | £ 825,000 | 0 | 0.00 KM |
| Wheelers Alley (CWX32) | £ 0 | 0 | 0.00 KM |
| Shipyard Alley | £ 745,000 | 0 | 0.00 KM |
| Brices Alley | £ 0 | 0 | 0.00 KM |
Nearby Transport
| Name | NLC | TLC | Distance |
|---|---|---|---|
| Whitstable | 5196 | WHI | 1.11 KM |
| Chestfield And Swalecliffe | 5200 | CSW | 4.84 KM |
| Canterbury West | 5007 | CBW | 10.00 KM |
Nearby Listings
| Address | Price | Type | Score | Distance |
|---|---|---|---|---|
| Cornwallis Circle, Whitstable | £ 115,000 | BUY | 5 / 10 | 0.00 KM |
| Cornwallis Circle, Whitstable | £ 450,000 | BUY | Unknown | 0.04 KM |
| Cornwallis Circle, Whitstable | £ 325,000 | BUY | 7 / 10 | 0.04 KM |
| Cornwallis Circle, Whitstable | £ 250,000 | BUY | 7 / 10 | 0.06 KM |
| Salts Close, Whitstable | £ 545,000 | BUY | 7 / 10 | 0.09 KM |
Nearby Properties
| Address | Price | Distance |
|---|---|---|
| 100 Cornwallis Circle | £ 395,000 | 0.01 KM |
| 87 Cornwallis Circle | £ 90,000 | 0.01 KM |
| 72 Cornwallis Circle | £ 376,000 | 0.01 KM |
| 104 Cornwallis Circle | £ 128,000 | 0.02 KM |
| 68 Cornwallis Circle | £ 175,000 | 0.02 KM |