Fairview Villas, Baldwins Gate, ST5
By James Du Pavey
£ 650,000
Reviews
4 out of 5 stars
James Du Pavey says ..
Welcome aboard to your next dream home, final call for Baldwins Gate! What was once two semi-detached homes has checked in together to become one impressive detached destination.
Property Oracle says ..
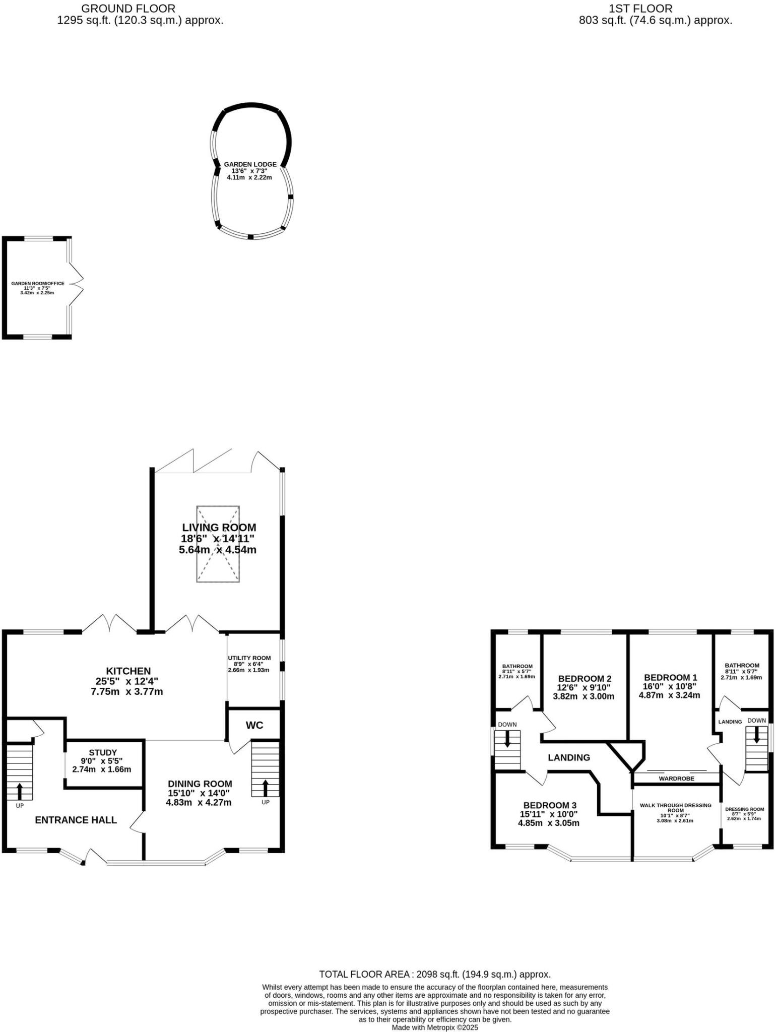
This is a well-presented detached property in a sought-after location. The house has been modernised to a high standard and offers spacious living accommodation. The large garden with a swimming pool, summer house, and office/gym is a significant selling point. While the price is above average for the area, the property’s size, condition, and features justify the premium.
Therefore, we give this property 8 / 10. *Disclaimer: This is our option and does constitute a recommendation or financial advice. Do your own research. *
- Price
- 7
- Condition
- 9
- Location
- 7
- Land
- 9
- Bedrooms
- 3
- Bathrooms
- 2
- Sqft (est)
- 1,734.07
The heatmap indicates the level of crime in the area. The color of the heatmap indicates the crime severity and recency.
Metrics Year-on-Year
- Average area value
- 444,606.00 £Decreased by 45.11 %
- Est sale value
- 854,896.51 £Increased by 94.86 %
- Average area rental value
- 2,000.00 £/moIncreased by 42.45 %
- Est letting value
- 3,468.14 £/mo
- Est rental Yield
- 5.40 %Increased by 159.62 %
- Crime Rate
- 43.00 %Unchanged by 0.00 %
Agent Activity
James Du Pavey created the listing.
Nearby Schools
| Name | Type | Ofsted | Distance |
|---|---|---|---|
| Baldwins Gate Cofe(Vc) Primary School | Voluntary Controlled School | Good | 0.19 KM |
| St John'S Cofe (C) Primary School | Voluntary Controlled School | Good | 5.55 KM |
| The Meadows Primary School | Academy Converter | 5.64 KM | |
| Sir John Offley Cofe (Vc) Primary School | Voluntary Controlled School | Good | 5.65 KM |
| Madeley High School | Academy Converter | Good | 5.84 KM |
Images
Nearby Streets
| Name | Average Price | Average Sqft | Distance |
|---|---|---|---|
| Anchor Close | £ 0 | 0 | 0.00 KM |
| Dale Close | £ 0 | 0 | 0.00 KM |
| Moss Lane | £ 470,000 | 0 | 0.00 KM |
| Common Lane | £ 0 | 0 | 0.00 KM |
| Sandy Lane | £ 0 | 0 | 0.00 KM |
Nearby Listings
| Address | Price | Type | Score | Distance |
|---|---|---|---|---|
| Fairview Villas, Baldwins Gate, ST5 | £ 650,000 | BUY | 8 / 10 | 0.00 KM |
| Fairview Villas, Baldwins Gate, Newcastle-under-Lyme, Staffordshire | £ 650,000 | BUY | Unknown | 0.01 KM |
| Plot 2 Fair-Green Road, Baldwins Gate, Newcastle-under-Lyme, Staffordshire | £ 750,000 | BUY | 6 / 10 | 0.15 KM |
| Field Close, Baldwins Gate, Newcastle under Lyme ST5 | £ 390,000 | BUY | Unknown | 0.20 KM |
| Lea Close, Baldwins Gate, ST5 | £ 465,000 | BUY | 8 / 10 | 0.21 KM |
Nearby Properties
| Address | Price | Distance |
|---|---|---|
| 14 Fairview Villas | £ 160,000 | 0.02 KM |
| 8 Fairview Villas | £ 42,000 | 0.02 KM |
| 6 Fairview Villas | £ 131,000 | 0.02 KM |
| 10 Station Cottages | £ 150,000 | 0.04 KM |
| 4 Station Cottages | £ 113,000 | 0.04 KM |