Momo Homes says ..
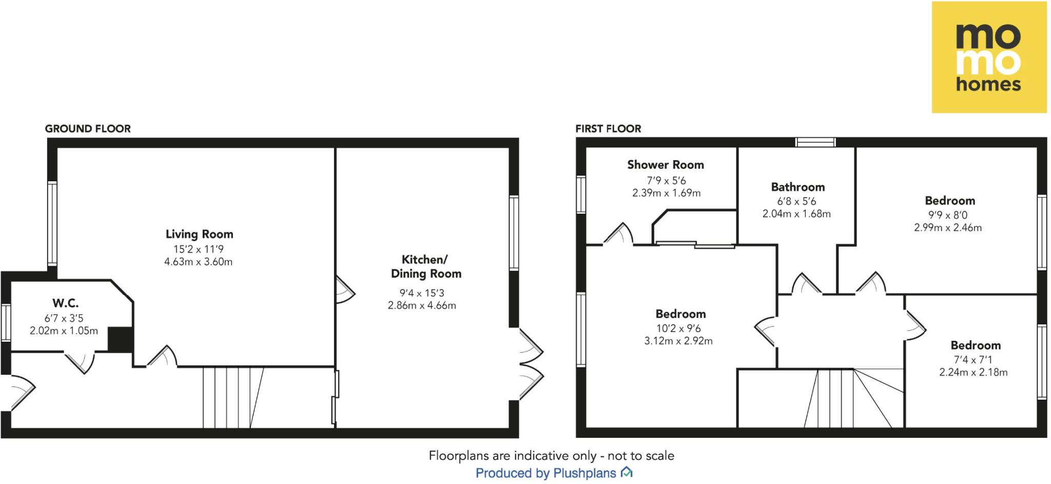
Beautifully presented and thoughtfully upgraded, this three-bedroom semi-detached home on Balcastle Crescent offers contemporary living in a sought-after area of Carluke.
Property Oracle says ..
This is a well-presented semi-detached property in Carluke, South Lanarkshire. The house benefits from modern interiors, a well-maintained garden, and proximity to transportation links. With three bedrooms and three bathrooms, it’s suitable for families. The property’s condition and location make it an attractive option for potential buyers.
Therefore, we give this property 7 / 10. *Disclaimer: This is our option and does constitute a recommendation or financial advice. Do your own research. *
- Price
- 8
- Condition
- 9
- Location
- 7
- Land
- 7
- Bedrooms
- 3
- Bathrooms
- 3
The heatmap indicates the level of crime in the area. The color of the heatmap indicates the crime severity and recency.
Metrics Year-on-Year
- Average area value
- 300,000.00 £Decreased by 54.85 %
- Average area rental value
- 1,007.00 £/moDecreased by 25.41 %
- Est rental Yield
- 4.03 %Increased by 65.16 %
- Crime Rate
- 0.00 %
Agent Activity
Momo Homes created the listing.
Images
Nearby Streets
| Name | Average Price | Average Sqft | Distance |
|---|---|---|---|
| Chrichton Walk | £ 136,332 | 0 | 0.00 KM |
| Balcastle Crescent | £ 190,999 | 0 | 0.00 KM |
| Mayfield Gardens | £ 83,000 | 0 | 0.00 KM |
| Brodick Lane | £ 125,000 | 0 | 0.00 KM |
| Mayfield Place | £ 64,000 | 0 | 0.00 KM |
Nearby Transport
| Name | NLC | TLC | Distance |
|---|---|---|---|
| Carluke | 9702 | CLU | 2.17 KM |
| Lanark | 9710 | LNK | 8.53 KM |
| Hartwood | 9246 | HTW | 9.59 KM |
Nearby Listings
| Address | Price | Type | Score | Distance |
|---|---|---|---|---|
| Balcastle Crescent, Carluke | £ 179,995 | BUY | 7 / 10 | 0.00 KM |
| Balcastle Crescent, Carluke, ML8 | £ 165,000 | BUY | Unknown | 0.01 KM |
| Balcastle Crescent, Carluke | £ 209,995 | BUY | 7 / 10 | 0.13 KM |
| Elderslea Road, Carluke, South Lanarkshire, ML8 | £ 109,000 | BUY | 6 / 10 | 0.14 KM |
| Chrichton Walk, Carluke | £ 235,000 | BUY | 8 / 10 | 0.14 KM |