CL
Stephens Croft, Falkirk, FK2
By Clyde Property
£ 335,000
Reviews
3 out of 5 stars
Clyde Property says ..
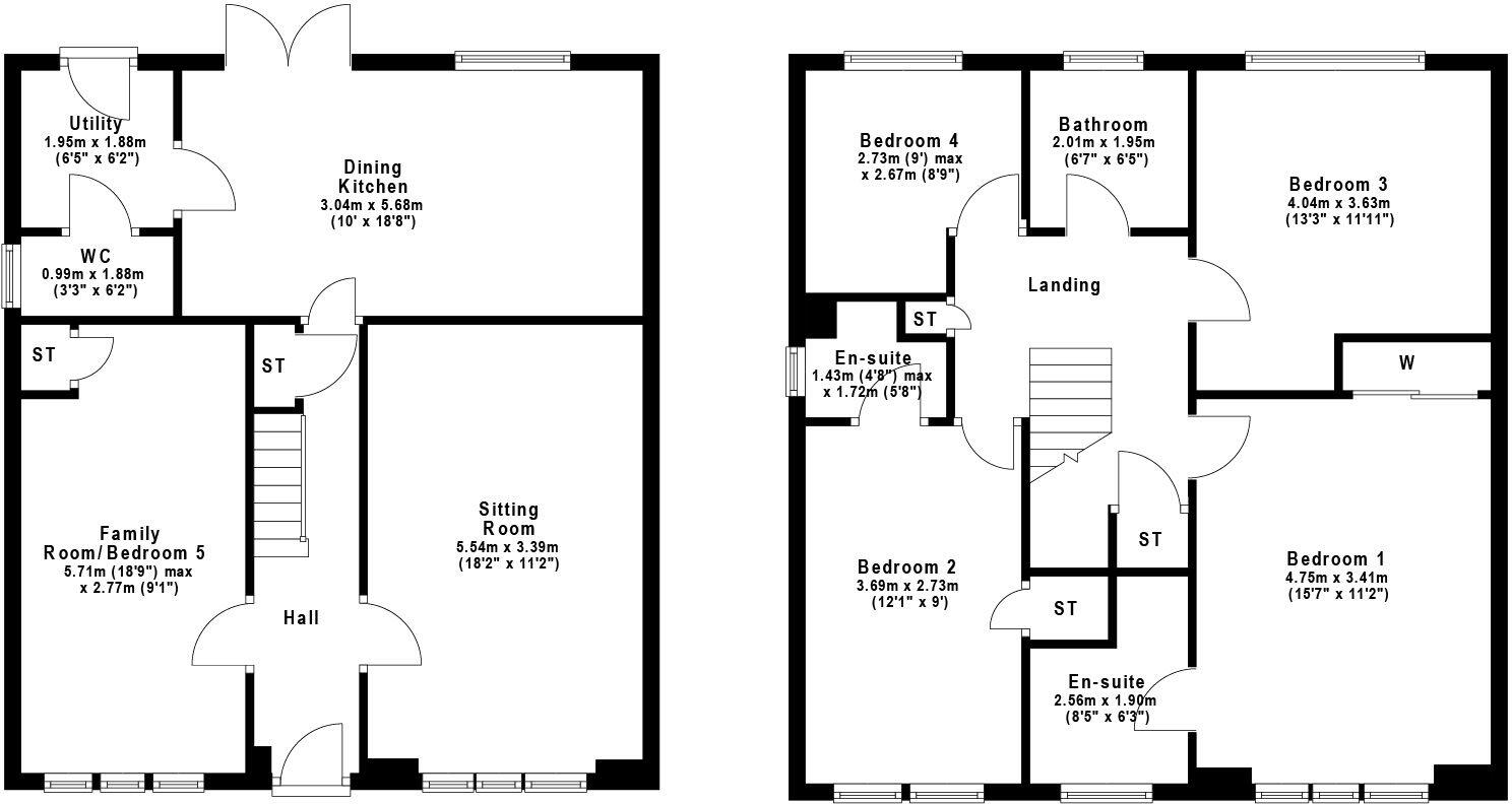
Superbly presented and upgraded luxury detached villa located within a highly regarded residential locale. The subjects enjoy open front views and occupies a prime corner plot with paved driveway.
Property Oracle says ..
Therefore, we give this property 7 / 10. *Disclaimer: This is our option and does constitute a recommendation or financial advice. Do your own research. *
- Price
- 8
- Condition
- 9
- Location
- 7
- Land
- 7
- Bedrooms
- 4
- Bathrooms
- 3
- Sqft (est)
- 1,258.20
The heatmap indicates the level of crime in the area. The color of the heatmap indicates the crime severity and recency.
Metrics Year-on-Year
- Average area value
- 490,000.00 £Decreased by 5.86 %
- Est sale value
- 568,706.40 £Increased by 75.88 %
- Average area rental value
- 1,975.00 £/moIncreased by 83.72 %
- Est letting value
- 1,258.20 £/mo
- Est rental Yield
- 4.84 %Increased by 95.16 %
- Crime Rate
- 0.00 %
from 520,498.00 £
from 323,357.40 £
from 1,075.00 £/mo
from 0.00 £/mo
from 2.48 %
from 0.00 %
Agent Activity
Clyde Property marked this listing as sold.
Clyde Property created the listing.
Nearby Schools
| Name | Type | Ofsted | Distance |
|---|---|---|---|
| Oakwood School | Offshore Schools | 4.76 KM |
Images
Nearby Streets
| Name | Average Price | Average Sqft | Distance |
|---|---|---|---|
| McInally Crescent | £ 0 | 0 | 0.00 KM |
| Blair Place | £ 0 | 0 | 0.00 KM |
| Westpark Crescent | £ 0 | 0 | 0.00 KM |
| Brownieknowe Place | £ 0 | 0 | 0.00 KM |
| Shira Place | £ 0 | 0 | 0.00 KM |
Nearby Transport
| Name | NLC | TLC | Distance |
|---|---|---|---|
| Falkirk Grahamston | 9930 | FKG | 2.01 KM |
| Camelon | 9878 | CMO | 2.21 KM |
| Falkirk High | 9931 | FKK | 2.58 KM |
| Larbert | 9876 | LBT | 3.60 KM |
| Polmont | 9936 | PMT | 9.87 KM |
Nearby Listings
| Address | Price | Type | Score | Distance |
|---|---|---|---|---|
| Stephens Croft, Falkirk, FK2 | £ 335,000 | BUY | 7 / 10 | 0.00 KM |
| Blair Place,Falkirk,FK2 7GX | £ 335,000 | BUY | 7 / 10 | 0.14 KM |
| Crofthead Street, Falkirk, FK2 | £ 360,000 | BUY | 7 / 10 | 0.18 KM |
| Blair Place, Falkirk, FK2 | £ 255,000 | BUY | Unknown | 0.20 KM |
| 1 Anderson Avenue, New Carron, Falkirk, Stirlingshire, FK2 7GD | £ 384,000 | BUY | 7 / 10 | 0.26 KM |