Wellesley Terrace, London, N1
By Islington and Shoreditch Housing Association
£ 600,000
Reviews
3 out of 5 stars
Islington and Shoreditch Housing Association says ..
Experience contemporary city living at its finest in this bright and beautifully designed two-bedroom apartment, perfectly positioned on the second floor of The Link - a boutique development ideally located on vibrant City Road, just moments from Old Street and Angel stations.
Property Oracle says ..
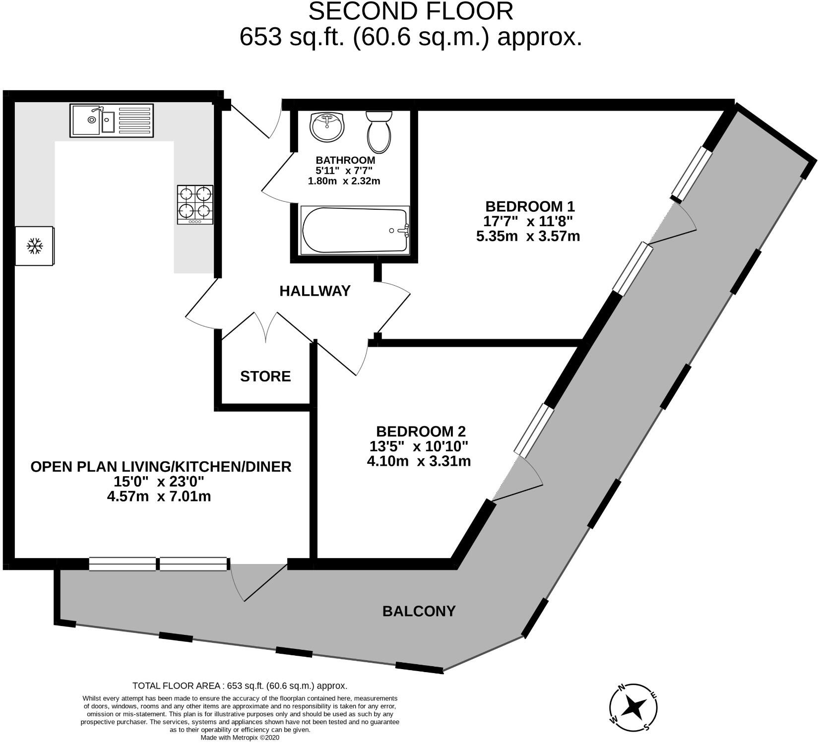
This property is a 2-bedroom, 1-bathroom flat located in the Bunhill area of Islington, London. The flat is well presented and appears to be in excellent condition, with a modern kitchen and bathroom. It benefits from a balcony. The location is convenient, with good access to public transport links such as Old Street station (0.58km away). There are also several schools nearby, including St Luke’s Cofe Primary School (0.27km) and New Regent’s College (0.31km). The property is priced at £600,000, which is significantly below the average price for the area (£1,044,220). However, it is important to note that the average property size is larger (926 sqft) than this property (723 sqft). Considering the condition, location, and size, the price may represent good value for money. More information on the plot size would be needed to provide a more complete analysis of the land.
Therefore, we give this property 7 / 10. *Disclaimer: This is our option and does constitute a recommendation or financial advice. Do your own research. *
- Price
- 8
- Condition
- 9
- Location
- 9
- Land
- 4
- Bedrooms
- 2
- Bathrooms
- 1
- Sqft (est)
- 723.00
- Lot (est)
- 653.00
The heatmap indicates the level of crime in the area. The color of the heatmap indicates the crime severity and recency.
Metrics Year-on-Year
- Average area value
- 822,600.00 £Decreased by 14.86 %
- Est sale value
- 695,526.00 £Decreased by 24.73 %
- Average area rental value
- 3,099.00 £/moIncreased by 2.99 %
- Est letting value
- 2,169.00 £/moUnchanged by 0.00 %
- Est rental Yield
- 4.52 %Increased by 20.86 %
- Crime Rate
- 9.00 %Unchanged by 0.00 %
Agent Activity
Islington and Shoreditch Housing Association created the listing.
Nearby Schools
| Name | Type | Ofsted | Distance |
|---|---|---|---|
| St Luke'S Cofe Primary School | Voluntary Aided School | Good | 0.27 KM |
| New Regent'S College | Pupil Referral Unit | Good | 0.31 KM |
| Thomas Fairchild Satellite Children'S Centre | Children's Centre Linked Site | 0.43 KM | |
| Thomas Fairchild Community School | Community School | Requires improvement | 0.52 KM |
| Royal Mencap Society | Special Post 16 Institution | Requires improvement | 0.63 KM |
Images
Nearby Streets
| Name | Average Price | Average Sqft | Distance |
|---|---|---|---|
| Shepherdess Walk | £ 820,000 | 0 | 0.00 KM |
| Thoresby Street | £ 385,000 | 0 | 0.00 KM |
| City Road | £ 0 | 0 | 0.00 KM |
| Bollinder Place | £ 0 | 0 | 0.00 KM |
| Lizard Street | £ 850,000 | 0 | 0.00 KM |
Nearby Transport
| Name | NLC | TLC | Distance |
|---|---|---|---|
| Old Street | 6003 | OLD | 0.58 KM |
| Moorgate | 6005 | MOG | 1.23 KM |
| Essex Road | 6004 | EXR | 1.38 KM |
| Farringdon | 577 | ZFD | 1.67 KM |
| Liverpool Street | 6965 | LST | 1.75 KM |
Nearby Listings
| Address | Price | Type | Score | Distance |
|---|---|---|---|---|
| Wellesley Terrace, London, N1 | £ 600,000 | BUY | 6 / 10 | 0.00 KM |
| Wellesley Terrace, London, N1 | £ 600,000 | BUY | 7 / 10 | 0.00 KM |
| Wellesley Terrace, Islington, N1 | £ 500,000 | BUY | 6 / 10 | 0.01 KM |
| Wellesley Terrace, London, N1 | £ 600,000 | BUY | 7 / 10 | 0.01 KM |
| Wellesley Terrace, Islington, N1 | £ 400,000 | BUY | 6 / 10 | 0.01 KM |
Nearby Properties
| Address | Price | Distance |
|---|---|---|
| 16c Shepherdess Walk | £ 900,000 | 0.13 KM |
| 18b Shepherdess Walk | £ 1,550,000 | 0.13 KM |
| 18c Shepherdess Walk | £ 475,000 | 0.13 KM |
| 16b Shepherdess Walk | £ 1,100,000 | 0.13 KM |
| 152 Lever Street | £ 1,060,000 | 0.15 KM |