Lower Ladyes Hills, Kenilworth
JU

Lower Ladyes Hills, Kenilworth

By Julie Philpot

£ 775,000

Reviews

3 out of 5 stars

Julie Philpot says ..

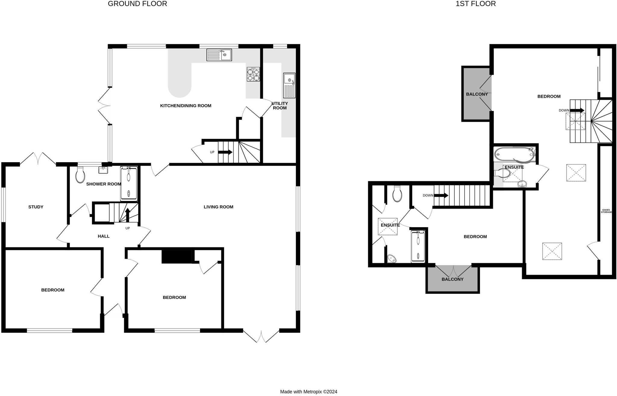
A superb and unique detached property in a secluded and private, elevated position within this extremely sought after residential location adjacent to Kenilworth Common. The sellers have extended and greatly improved the property in order to create a bespoke and spacious family home that provides...

Property Oracle says ..

This five-bedroom, three-bathroom property located in Lower Ladyes Hills, Kenilworth, presents itself as a family home in a sought-after area. The property benefits from an excellent location within proximity to highly rated schools and Kenilworth train station, ensuring easy access to amenities and transportation. The visual presentation suggests a well-maintained property with some modern updates in the kitchen and bathrooms. The inclusion of a sizable garden with multiple patio areas enhances the overall living experience, offering ample outdoor space. Although precise square footage data for nearby comparable properties is lacking, the list price of £775,000 appears to fall within the competitive range for similar properties in Kenilworth. Potential buyers should independently verify square footage and conduct their own due diligence to ascertain the property’s market value and suitability to their needs.

Therefore, we give this property 7 / 10. *Disclaimer: This is our option and does constitute a recommendation or financial advice. Do your own research. *

Price
7
Condition
7
Location
8
Land
6
Bedrooms
5
Bathrooms
3
Sqft (est)
1,200.00

The heatmap indicates the level of crime in the area. The color of the heatmap indicates the crime severity and recency.

Metrics Year-on-Year

Average area value
450,680.00 £
Increased by 2.66 %
from 438,987.00 £
Est sale value
565,200.00 £
Increased by 11.61 %
from 506,400.00 £
Average area rental value
1,290.00 £/mo
Increased by 8.77 %
from 1,186.00 £/mo
Est letting value
1,200.00 £/mo
Unchanged by 0.00 %
from 1,200.00 £/mo
Est rental Yield
3.43 %
Increased by 5.86 %
from 3.24 %
Crime Rate
3.00 %
Unchanged by 0.00 %
from 3.00 %

Agent Activity

  • Julie Philpot created the listing.

Nearby Schools

NameTypeOfstedDistance
Crackley Hall SchoolOther Independent School0.30 KM
St Nicholas Cofe Primary SchoolVoluntary Controlled SchoolGood0.96 KM
Park Hill Junior SchoolCommunity SchoolGood1.18 KM
Thorns Community Infant SchoolCommunity SchoolGood1.36 KM
Kenilworth Nursery School & Early Years Training CentreLocal Authority Nursery SchoolOutstanding1.37 KM

Images

Front Kitchen July 9 Lounge Lounge To Front G... July 6 Ground Floor Doub... Gym July 8 Ground Floor Show... Master Lounge Are... First Floor Doubl... Master Bedroom Ar... Lounge Master En Suite Frontage Patio Ground Floor Doub... Outdoor BBQ Area Rear Garden Front First Floor Balco... Rear Patio View July 7 Front New July front Oak Kitchen Ground Floor Doub... En Suite Dressing... Rear Garden

Nearby Streets

NameAverage PriceAverage SqftDistance
Stoneleigh Avenue £ 000.00 KM
Glendale Avenue £ 000.00 KM
Field Close £ 000.00 KM
Denemoor Court £ 000.00 KM
Arbourfields Close £ 000.00 KM

Nearby Transport

NameNLCTLCDistance
Kenilworth7985KNW1.24 KM
Tile Hill1035THL5.51 KM
Canley1129CNL5.66 KM
Warwick4600WRW7.57 KM
Coventry1030COV8.16 KM

Nearby Listings

AddressPriceTypeScoreDistance
Lower Ladyes Hills, Kenilworth £ 775,000BUY7 / 100.00 KM
Littleton Close, Kenilworth, CV8 £ 875,000BUY7 / 100.07 KM
Windmill Close, Kenilworth £ 475,000BUYUnknown0.21 KM
Convent Close, Kenilworth, CV8 £ 800,000BUY7 / 100.22 KM
Mill End, Kenilworth £ 335,000BUY7 / 100.23 KM

Nearby Properties

AddressPriceDistance
9 Littleton Close £ 620,0000.14 KM
27 Littleton Close £ 480,0000.14 KM
18 Littleton Close £ 560,0000.14 KM
28 Littleton Close £ 765,0000.14 KM
17 Littleton Close £ 520,0000.14 KM