Drake Avenue, Fox Hill, Bath, BA2 5NX
By DSB Estate Agents
£ 225,000
Reviews
2 out of 5 stars
DSB Estate Agents says ..
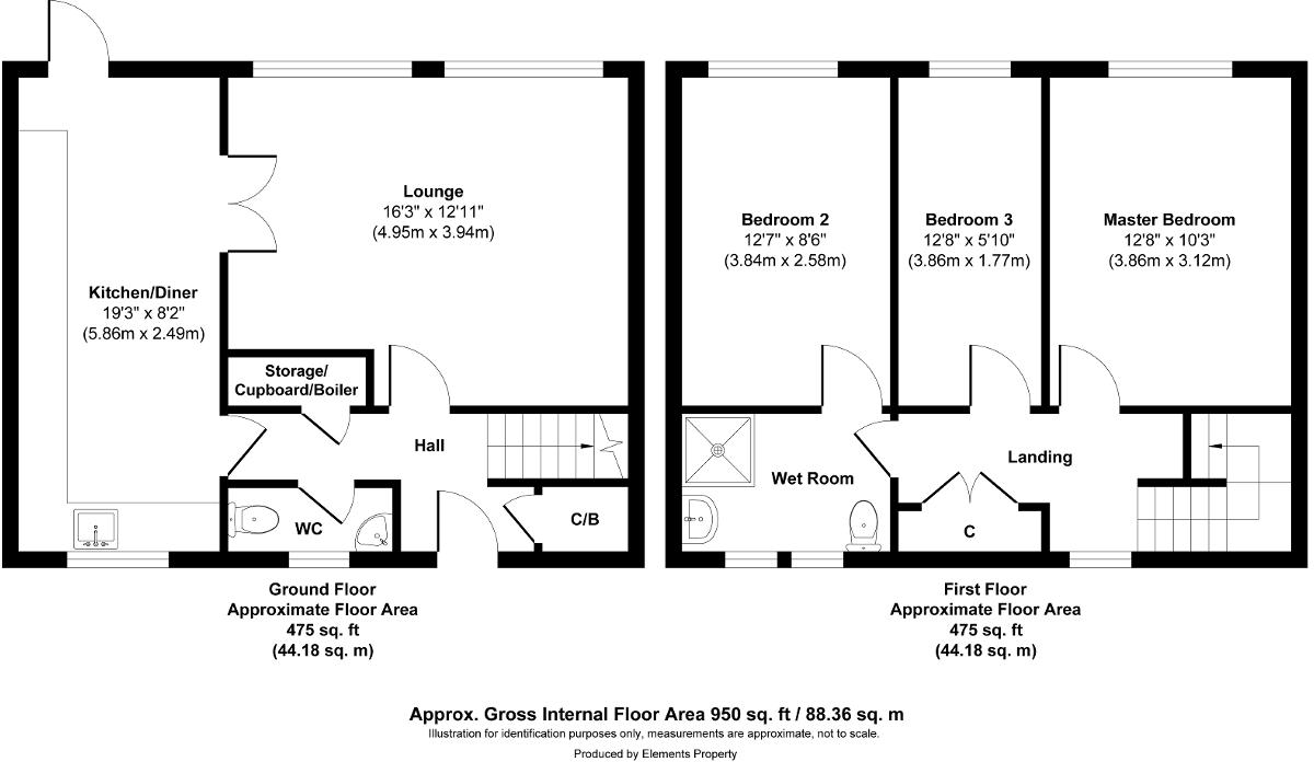
DSB Estate Agents are pleased to present a three bedroom end of terrace house nestled away in a quiet cul-de-sac location in Bath. The ground floor of this property comprises of a spacious ...
Property Oracle says ..
The property is located in Combe Down, Bath, an area with a mix of housing types and price points. The proximity to Bath Spa railway station (1.81km) offers convenient access to transportation links. Several primary and secondary schools are within a reasonable distance, with at least one rated as “Outstanding” by Ofsted. This suggests a family-friendly environment with good access to amenities and education. However, more detailed information on the specific quality of local schools and shops would be needed for a more comprehensive location assessment. Based on the provided images, the property appears to be in need of significant renovation. The interior features outdated fixtures, worn carpets and wallpaper, and some signs of damage to walls. The garden also seems overgrown and in need of attention. This suggests a low condition score. A full survey would be needed to assess the extent of any structural issues. The property includes a small garden, which is a positive aspect, although its current state requires significant improvement. The plot size is relatively modest at 950 sqft, which is typical for an end-of-terraced house in this area. The list price of £225,000 is significantly below the average house price in the area (£621,053), but this is not unexpected given the property’s condition. The average price per sqft in the area is £480, while this property’s price per sqft is approximately £262. While this suggests a potentially reasonable price considering the need for renovation, a detailed comparison with similarly sized and styled properties in a comparable condition within the immediate vicinity would be necessary to fully assess the price’s reasonableness. The lack of sqft data for nearby listings makes a direct comparison difficult.
Therefore, we give this property 5 / 10. *Disclaimer: This is our option and does constitute a recommendation or financial advice. Do your own research. *
- Price
- 6
- Condition
- 3
- Location
- 7
- Land
- 4
- Bedrooms
- 3
- Bathrooms
- 1
- Sqft (est)
- 860.00
- Lot (est)
- 950.00
The heatmap indicates the level of crime in the area. The color of the heatmap indicates the crime severity and recency.
Metrics Year-on-Year
- Average area value
- 812,500.00 £Increased by 46.80 %
- Est sale value
- 463,540.00 £Increased by 8.67 %
- Average area rental value
- 1,223.00 £/moDecreased by 43.04 %
- Est letting value
- 0.00 £/moDecreased by 100.00 %
- Est rental Yield
- 1.81 %Decreased by 61.08 %
- Crime Rate
- 20.00 %Unchanged by 0.00 %
Agent Activity
DSB Estate Agents created the listing.
Nearby Schools
| Name | Type | Ofsted | Distance |
|---|---|---|---|
| Mulberry Park Educate Together Primary Academy | Free Schools | 0.81 KM | |
| The Paragon School, Junior School Of Prior Park College | Other Independent School | 1.06 KM | |
| Beechen Cliff School | Academy Converter | 1.14 KM | |
| Three Ways School | Academy Special Converter | Outstanding | 1.25 KM |
| Aspire Academy | Academy Special Sponsor Led | Good | 1.25 KM |
Images
Nearby Streets
| Name | Average Price | Average Sqft | Distance |
|---|---|---|---|
| Oakhill Drive | £ 0 | 0 | 0.00 KM |
| Ivy Bank Park | £ 0 | 0 | 0.00 KM |
| Quarry Close | £ 0 | 0 | 0.00 KM |
| Wellsway | £ 0 | 0 | 0.00 KM |
| Matilda House | £ 550,000 | 0 | 0.00 KM |
Nearby Transport
| Name | NLC | TLC | Distance |
|---|---|---|---|
| Bath Spa | 3271 | BTH | 1.81 KM |
| Oldfield Park | 3219 | OLF | 2.83 KM |
| Freshford | 3344 | FFD | 7.07 KM |
| Avoncliff | 3265 | AVF | 9.22 KM |
Nearby Listings
| Address | Price | Type | Score | Distance |
|---|---|---|---|---|
| Drake Avenue, Fox Hill, Bath, BA2 5NX | £ 225,000 | BUY | 5 / 10 | 0.00 KM |
| Oakhill Road, Bath | £ 375,000 | BUY | 7 / 10 | 0.03 KM |
| Drake Avenue, Combe Down, | £ 275,000 | BUY | 7 / 10 | 0.11 KM |
| Drake Avenue | £ 270,000 | BUY | 6 / 10 | 0.12 KM |
| Drake Avenue, BATH, Somerset, BA2 | £ 285,000 | BUY | Unknown | 0.14 KM |
Nearby Properties
| Address | Price | Distance |
|---|---|---|
| 4 Exmoor Road | £ 175,250 | 0.04 KM |
| 1 Exmoor Road | £ 150,000 | 0.04 KM |
| 2 Oakhill Road | £ 175,000 | 0.07 KM |
| 12 Oakhill Road | £ 270,000 | 0.07 KM |
| 3 Oakhill Road | £ 355,000 | 0.07 KM |