WE
Heol Ffinant, Newcastle Emlyn
By West Wales Properties
£ 350,000
Reviews
3 out of 5 stars
West Wales Properties says ..
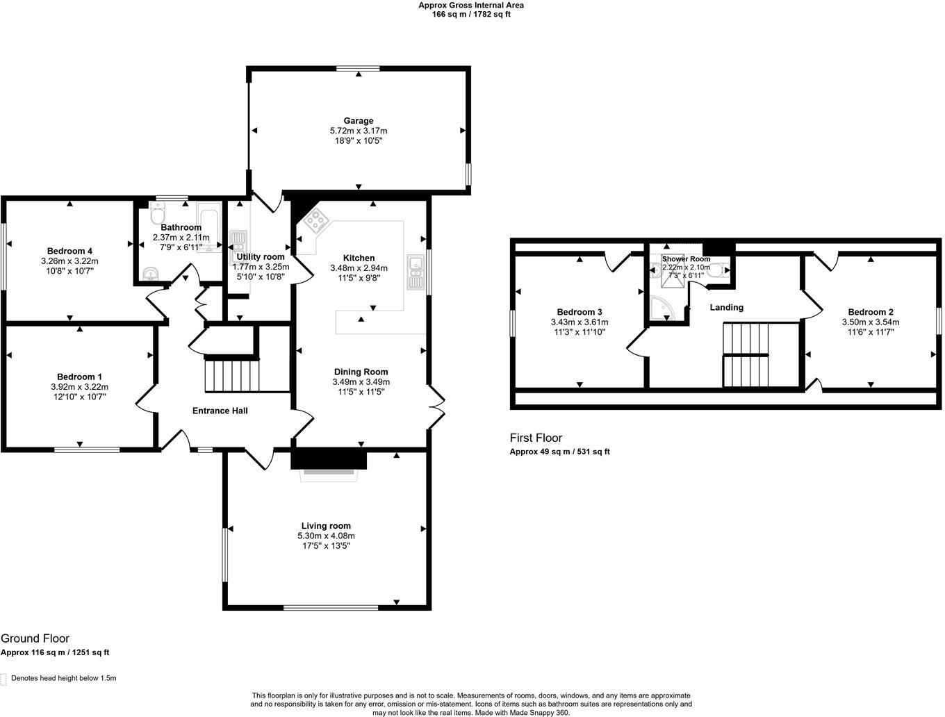
A well presented detached home enjoying panoramic countryside views, conveniently located on the outskirts of the charming market town of Newcastle Emlyn. Benefitting from four bedrooms, off-road parking for multiple vehicles and an enclosed low maintenance garden - this property offers flexible ...
Property Oracle says ..
Therefore, we give this property 7 / 10. *Disclaimer: This is our option and does constitute a recommendation or financial advice. Do your own research. *
- Price
- 7
- Condition
- 8
- Location
- 7
- Land
- 7
- Bedrooms
- 4
- Bathrooms
- 0
- Sqft (est)
- 1,350.37
The heatmap indicates the level of crime in the area. The color of the heatmap indicates the crime severity and recency.
Metrics Year-on-Year
- Average area value
- 310,998.00 £Decreased by 1.08 %
- Est sale value
- 451,023.58 £Increased by 16.78 %
- Average area rental value
- 1,363.00 £/moIncreased by 13.58 %
- Est letting value
- 1,350.37 £/moUnchanged by 0.00 %
- Est rental Yield
- 5.26 %Increased by 14.85 %
- Crime Rate
- 14.00 %Unchanged by 0.00 %
from 314,389.00 £
from 386,205.82 £
from 1,200.00 £/mo
from 1,350.37 £/mo
from 4.58 %
from 14.00 %
Agent Activity
West Wales Properties created the listing.
Nearby Schools
| Name | Type | Ofsted | Distance |
|---|---|---|---|
| Ysgol Gyfun Emlyn | Welsh Establishment | 0.59 KM | |
| Ysgol Y Ddwylan | Welsh Establishment | 0.67 KM | |
| Ysgol Cenarth | Welsh Establishment | 7.15 KM | |
| Ysgol Wirfoddol Penboyr | Welsh Establishment | 7.36 KM |
Images
Nearby Streets
| Name | Average Price | Average Sqft | Distance |
|---|---|---|---|
| Stryd y Dŵr / Water Street | £ 0 | 0 | 0.00 KM |
| Sycamore Street | £ 0 | 0 | 0.00 KM |
| Res y Cawdor / Cawdor Terrace | £ 0 | 0 | 0.00 KM |
| Heol y Castell | £ 135,000 | 0 | 0.00 KM |
| New Road | £ 0 | 0 | 0.00 KM |
Nearby Listings
| Address | Price | Type | Score | Distance |
|---|---|---|---|---|
| Heol Ffinant, Newcastle Emlyn | £ 350,000 | BUY | 7 / 10 | 0.00 KM |
| Heol Ffinant, Newcastle Emlyn, SA38 | £ 330,000 | BUY | 7 / 10 | 0.06 KM |
| 7 Heol Ffinant, Newcastle Emlyn | £ 330,000 | BUY | 6 / 10 | 0.06 KM |
| Brynhaf, Bryndioddef | £ 160,000 | BUY | 6 / 10 | 0.13 KM |
| Penlon Road, Newcastle Emlyn, Carmarthenshire, SA38 9HR | £ 225,000 | BUY | Unknown | 0.14 KM |
Nearby Properties
| Address | Price | Distance |
|---|---|---|
| 6 Heol Ffinant | £ 180,000 | 0.06 KM |
| 4 Heol Ffinant | £ 169,000 | 0.06 KM |
| 13 Heol Ffinant | £ 345,000 | 0.06 KM |
| Myrtles | £ 140,000 | 0.10 KM |
| Glasgoed | £ 157,000 | 0.12 KM |