Knight Edmonds says ..
GUIDE PRICE £500,000 - £525,000 | Approx. 0.2 Acre Plot | Driveway For Multiple Vehicles | Extended | Garage | Workshop | Two Family Bathrooms
Property Oracle says ..
This 3-bedroom, 2-bathroom property located on Harple Lane in Detling, Kent, presents a mixed bag. The house is situated in a desirable village setting, offering a quiet residential environment with convenient access to good schools and railway connections to Maidstone and beyond. However, buyers should note that this access requires a car journey and a wider variety of amenities is not within easy reach.
The interior of the house shows a blend of updated and older features. While the kitchen and bathrooms show signs of renovations, other areas appear somewhat dated, such as the flooring in at least one bedroom, indicating the need for cosmetic improvements. The images suggest a reasonable level of overall maintenance but not an entirely modernised property.
The property’s garden offers significant potential but is currently less than pristine, with some areas looking unkempt, offering room for improvement and impacting presentation. A more thorough assessment of the garden space would require an in-person visit.
The £500,000 asking price requires further context to determine its suitability given the lack of precise square footage data for nearby properties. While it seems reasonably priced for the area based on the provided data, this remains a preliminary assessment and a complete market comparison would be required for a more conclusive judgment. Further investigation into comparable sales in the immediate vicinity would significantly improve accuracy in determining its fair market value.
Therefore, we give this property 6 / 10. *Disclaimer: This is our option and does constitute a recommendation or financial advice. Do your own research. *
- Price
- 7
- Condition
- 6
- Location
- 7
- Land
- 5
- Bedrooms
- 3
- Bathrooms
- 2
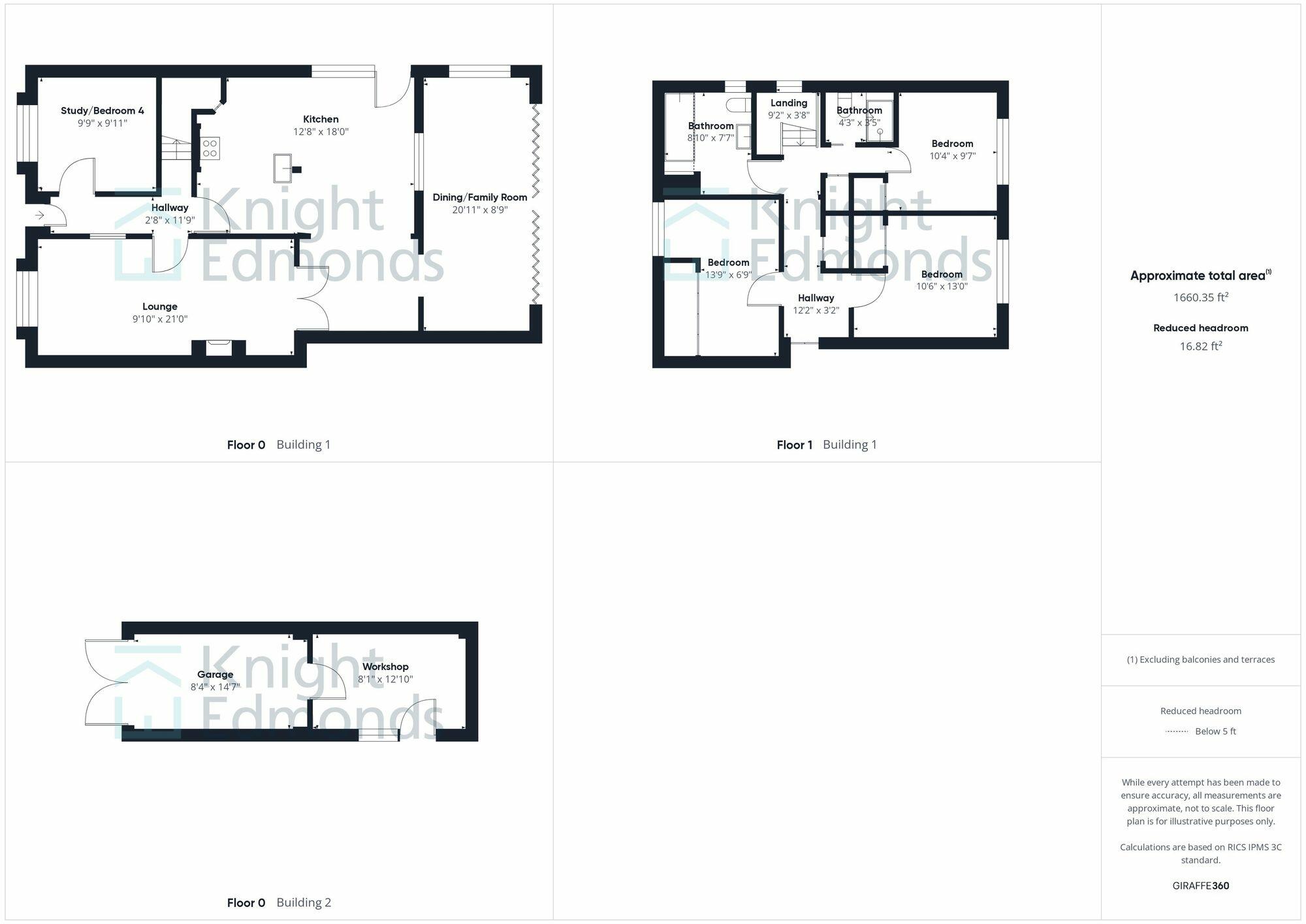
- Sqft (est)
- 1,660.35
The heatmap indicates the level of crime in the area. The color of the heatmap indicates the crime severity and recency.
Metrics Year-on-Year
- Average area value
- 812,500.00 £Increased by 46.80 %
- Est sale value
- 894,928.65 £Increased by 8.67 %
- Average area rental value
- 1,223.00 £/moDecreased by 43.04 %
- Est letting value
- 0.00 £/moDecreased by 100.00 %
- Est rental Yield
- 1.81 %Decreased by 61.08 %
- Crime Rate
- 11.00 %Unchanged by 0.00 %
Agent Activity
Knight Edmonds created the listing.
Nearby Schools
| Name | Type | Ofsted | Distance |
|---|---|---|---|
| Bearsted Primary Academy | Free Schools | 1.78 KM | |
| Snowfields Academy | Free Schools Special | 1.78 KM | |
| Roseacre Junior School | Foundation School | Outstanding | 2.83 KM |
| Thurnham Church Of England Infant School | Voluntary Controlled School | Outstanding | 2.88 KM |
| Maidstone, St John'S Church Of England Primary School | Academy Converter | Outstanding | 2.90 KM |
Images
Nearby Streets
| Name | Average Price | Average Sqft | Distance |
|---|---|---|---|
| Chiltern Place | £ 647,500 | 0 | 0.00 KM |
| St Martin's Close | £ 0 | 0 | 0.00 KM |
| The Street | £ 0 | 0 | 0.00 KM |
| Pope's Wood | £ 987,500 | 0 | 0.00 KM |
| Ash Tree Gardens | £ 585,000 | 0 | 0.00 KM |
Nearby Transport
| Name | NLC | TLC | Distance |
|---|---|---|---|
| Bearsted | 5091 | BSD | 2.77 KM |
| Maidstone East | 5115 | MDE | 5.23 KM |
| Maidstone Barracks | 5237 | MDB | 6.01 KM |
| Maidstone West | 5222 | MDW | 6.14 KM |
| Hollingbourne | 5141 | HBN | 7.85 KM |
Nearby Listings
| Address | Price | Type | Score | Distance |
|---|---|---|---|---|
| Harple Lane, Detling, ME14 | £ 500,000 | BUY | 6 / 10 | 0.00 KM |
| Harple Lane, Maidstone | £ 750,000 | BUY | 7 / 10 | 0.02 KM |
| Harple Lane, Detling | £ 950,000 | BUY | 8 / 10 | 0.07 KM |
| Harple Lane, Detling, Maidstone | £ 495,000 | BUY | 8 / 10 | 0.21 KM |
| Pilgrims Way, Detling, ME14 | £ 450,000 | BUY | 6 / 10 | 0.21 KM |
Nearby Properties
| Address | Price | Distance |
|---|---|---|
| Higham | £ 295,000 | 0.01 KM |
| Greystoke | £ 320,000 | 0.01 KM |
| Beech Grove | £ 283,500 | 0.01 KM |
| Glenwood | £ 375,000 | 0.01 KM |
| Lenside | £ 385,000 | 0.01 KM |