Park Street, Imperial Wharf, SW6
By Benham & Reeves
£ 809,000
Reviews
3 out of 5 stars
Benham & Reeves says ..
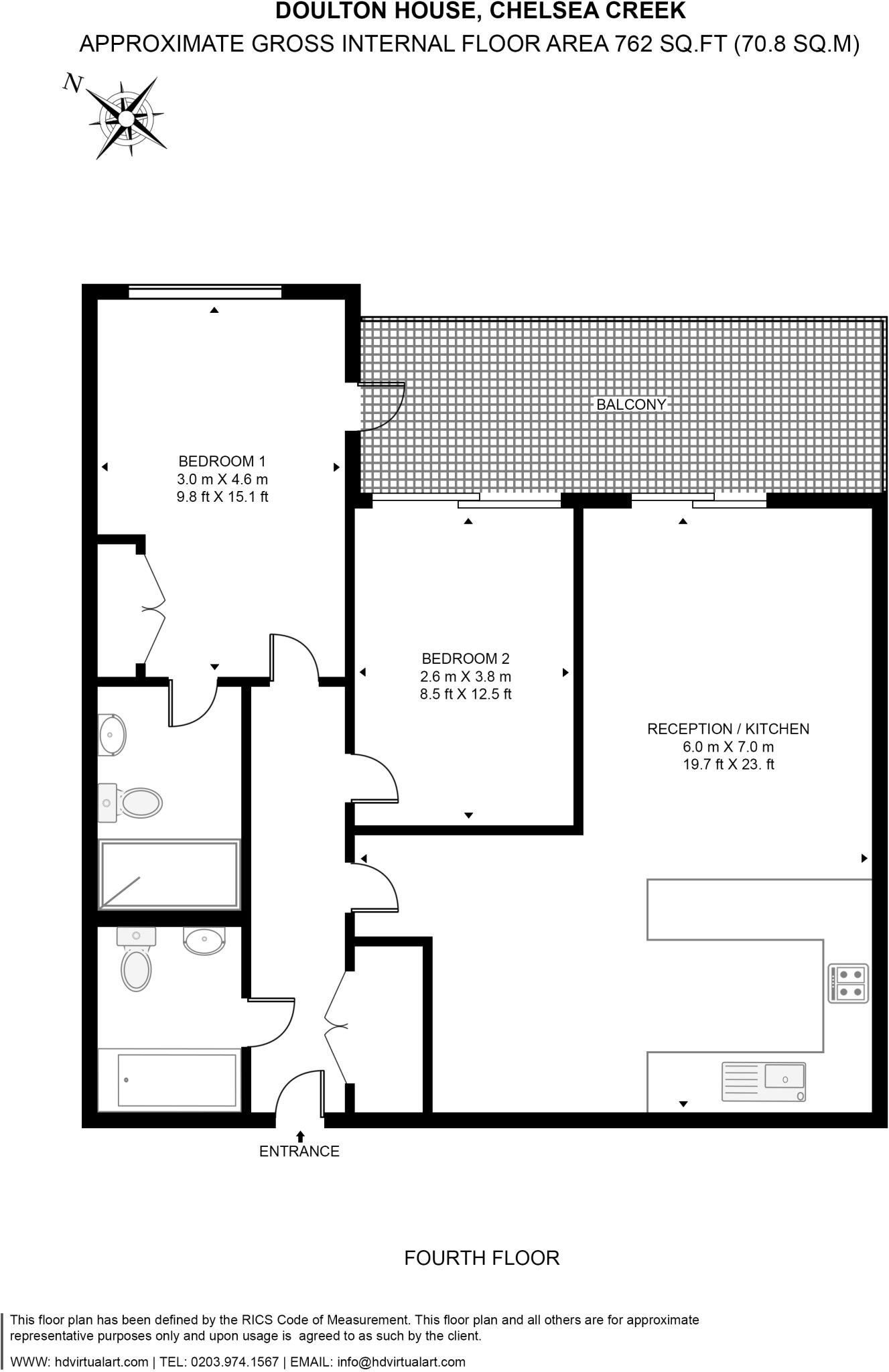
A modern two-bedroom, two-bathroom, fourth-floor apartment in the highly sought-after Chelsea Creek development. Within a short walking distance from Imperial Wharf Overground station and Fulham Broadway Underground station.
Property Oracle says ..
This is a 2-bedroom apartment located in Imperial Wharf, Sands End, London. The property offers 707 sqft of living space and includes 2 bathrooms. The apartment is situated in a modern development with access to amenities such as a gym and swimming pool. The location is well-connected, with Imperial Wharf Overground station nearby, and several schools are within a reasonable distance. While the apartment is generally in good condition, some minor cosmetic improvements could enhance its appeal. The price appears to be competitive for the area, making it an attractive option for potential buyers.
Therefore, we give this property 6 / 10. *Disclaimer: This is our option and does constitute a recommendation or financial advice. Do your own research. *
- Price
- 7
- Condition
- 7
- Location
- 8
- Land
- 3
- Bedrooms
- 2
- Bathrooms
- 2
- Sqft (est)
- 707.35
The heatmap indicates the level of crime in the area. The color of the heatmap indicates the crime severity and recency.
Metrics Year-on-Year
- Average area value
- 1,383,762.00 £Increased by 8.10 %
- Est sale value
- 1,452,189.55 £Increased by 67.73 %
- Average area rental value
- 3,390.00 £/moIncreased by 11.04 %
- Est letting value
- 3,536.75 £/moIncreased by 150.00 %
- Est rental Yield
- 2.94 %Increased by 2.80 %
- Crime Rate
- 6.00 %Unchanged by 0.00 %
Agent Activity
Benham & Reeves created the listing.
Nearby Schools
| Name | Type | Ofsted | Distance |
|---|---|---|---|
| Chelsea Academy | Academy Sponsor Led | Outstanding | 0.33 KM |
| Ray'S Playhouse Ltd. | Children's Centre Linked Site | 0.45 KM | |
| Cheyne Children'S Centre | Children's Centre | 0.58 KM | |
| Ormiston Courtyard Academy | Academy Alternative Provision Converter | Outstanding | 0.59 KM |
| Langford Primary School | Academy Sponsor Led | Outstanding | 0.59 KM |
Images
Nearby Streets
| Name | Average Price | Average Sqft | Distance |
|---|---|---|---|
| Harbour Avenue | £ 0 | 0 | 0.00 KM |
| Waterfront Drive | £ 4,150,708 | 0 | 0.00 KM |
| Fulmead Street | £ 0 | 0 | 0.00 KM |
| Albion Quay | £ 895,000 | 0 | 0.00 KM |
| William Morris Way | £ 1,505,000 | 0 | 0.00 KM |
Nearby Transport
| Name | NLC | TLC | Distance |
|---|---|---|---|
| Imperial Wharf | 9586 | IMW | 0.15 KM |
| Wandsworth Town | 5576 | WNT | 1.64 KM |
| West Brompton | 8875 | WBP | 1.82 KM |
| Clapham Junction | 5595 | CLJ | 1.97 KM |
| Earlsfield | 5584 | EAD | 3.69 KM |
Nearby Listings
| Address | Price | Type | Score | Distance |
|---|---|---|---|---|
| Park Street, Imperial Wharf, SW6 | £ 809,000 | BUY | 6 / 10 | 0.00 KM |
| Kings Tower, Chelsea Creek, SW6 | £ 810,000 | BUY | Unknown | 0.00 KM |
| Park Street, London, SW6 | £ 995,000 | BUY | Unknown | 0.00 KM |
| Doulton House, Chelsea Creek, 11 Park Street, London, SW6 | £ 1,450,000 | BUY | 8 / 10 | 0.00 KM |
| Doulton House, Park Street, London, SW6 | £ 560,000 | BUY | 5 / 10 | 0.00 KM |
Nearby Properties
| Address | Price | Distance |
|---|---|---|
| 116 Bagleys Lane | £ 640,000 | 0.25 KM |
| 146 Bagleys Lane | £ 419,000 | 0.25 KM |
| 148 Bagleys Lane | £ 316,250 | 0.25 KM |
| 165 Bagleys Lane | £ 520,000 | 0.25 KM |
| 153 Bagleys Lane | £ 530,000 | 0.25 KM |