BidX1 says ..
To be sold at an online auction. For further information, viewing times and legal documentation, please visit bidx1.com.
Property Oracle says ..
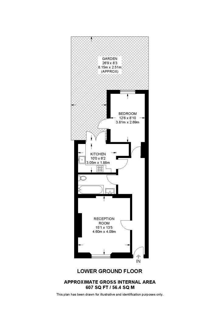
This is a one-bedroom flat in Warwick, London. The property is in a good location, close to transport links and amenities. While the bathroom has been modernised, the kitchen is dated and the property would benefit from some cosmetic improvements. The flat has a small garden, which requires some attention. The asking price seems reasonable for the location and size of the property.
Therefore, we give this property 6 / 10. *Disclaimer: This is our option and does constitute a recommendation or financial advice. Do your own research. *
- Price
- 7
- Condition
- 6
- Location
- 8
- Land
- 5
- Bedrooms
- 1
- Bathrooms
- 1
The heatmap indicates the level of crime in the area. The color of the heatmap indicates the crime severity and recency.
Metrics Year-on-Year
- Average area value
- 1,189,286.00 £Increased by 2.36 %
- Average area rental value
- 2,412.00 £/moDecreased by 1.51 %
- Est rental Yield
- 2.43 %Decreased by 3.95 %
- Crime Rate
- 6.00 %Unchanged by 0.00 %
Agent Activity
BidX1 created the listing.
Nearby Schools
| Name | Type | Ofsted | Distance |
|---|---|---|---|
| Eaton Square School | Other Independent School | 0.35 KM | |
| St Gabriel'S Cofe Primary School | Voluntary Aided School | Good | 0.39 KM |
| Sir Simon Milton Westminster University Technical College | University Technical College | 0.40 KM | |
| South Locality Hub Lead - Churchill Gardens Children'S Centre | Children's Centre | 0.48 KM | |
| Churchill Gardens Primary Academy | Academy Sponsor Led | Good | 0.54 KM |
Images
Nearby Streets
| Name | Average Price | Average Sqft | Distance |
|---|---|---|---|
| Saint George's Drive | £ 0 | 0 | 0.00 KM |
| Cumberland Court | £ 0 | 0 | 0.00 KM |
| Glasgow Terrace | £ 415,000 | 0 | 0.00 KM |
| Bulleid Way | £ 0 | 0 | 0.00 KM |
| Eccleston Bridge | £ 725,000 | 0 | 0.00 KM |
Nearby Transport
| Name | NLC | TLC | Distance |
|---|---|---|---|
| Victoria | 5426 | VIC | 0.63 KM |
| Battersea Park | 5420 | BAK | 1.50 KM |
| Queenstown Road (Battersea) | 5596 | QRB | 1.69 KM |
| Wandsworth Road | 5372 | WWR | 2.24 KM |
| Vauxhall | 5597 | VXH | 2.29 KM |
Nearby Listings
| Address | Price | Type | Score | Distance |
|---|---|---|---|---|
| Cambridge Street, London, SW1V | £ 475,000 | BUY | 6 / 10 | 0.00 KM |
| Cambridge Street, Pimlico, SW1V | £ 800,000 | BUY | 6 / 10 | 0.01 KM |
| Cambridge Street, Pimlico | £ 1,395,000 | BUY | 8 / 10 | 0.02 KM |
| Cambridge Street, Pimlico | £ 1,500,000 | BUY | Unknown | 0.04 KM |
| Cambridge Street, Pimlico | £ 645,000 | BUY | 5 / 10 | 0.04 KM |
Nearby Properties
| Address | Price | Distance |
|---|---|---|
| 106b Cambridge Street | £ 175,000 | 0.02 KM |
| 106g Cambridge Street | £ 484,810 | 0.02 KM |
| 88b Cambridge Street | £ 950,000 | 0.02 KM |
| 106c Cambridge Street | £ 278,000 | 0.02 KM |
| 106a Cambridge Street | £ 990,000 | 0.02 KM |