Biggleswade Road, Potton, Central Bedfordshire
By Kennedy & Co Sales and Lettings
£ 259,950
Reviews
3 out of 5 stars
Kennedy & Co Sales and Lettings says ..
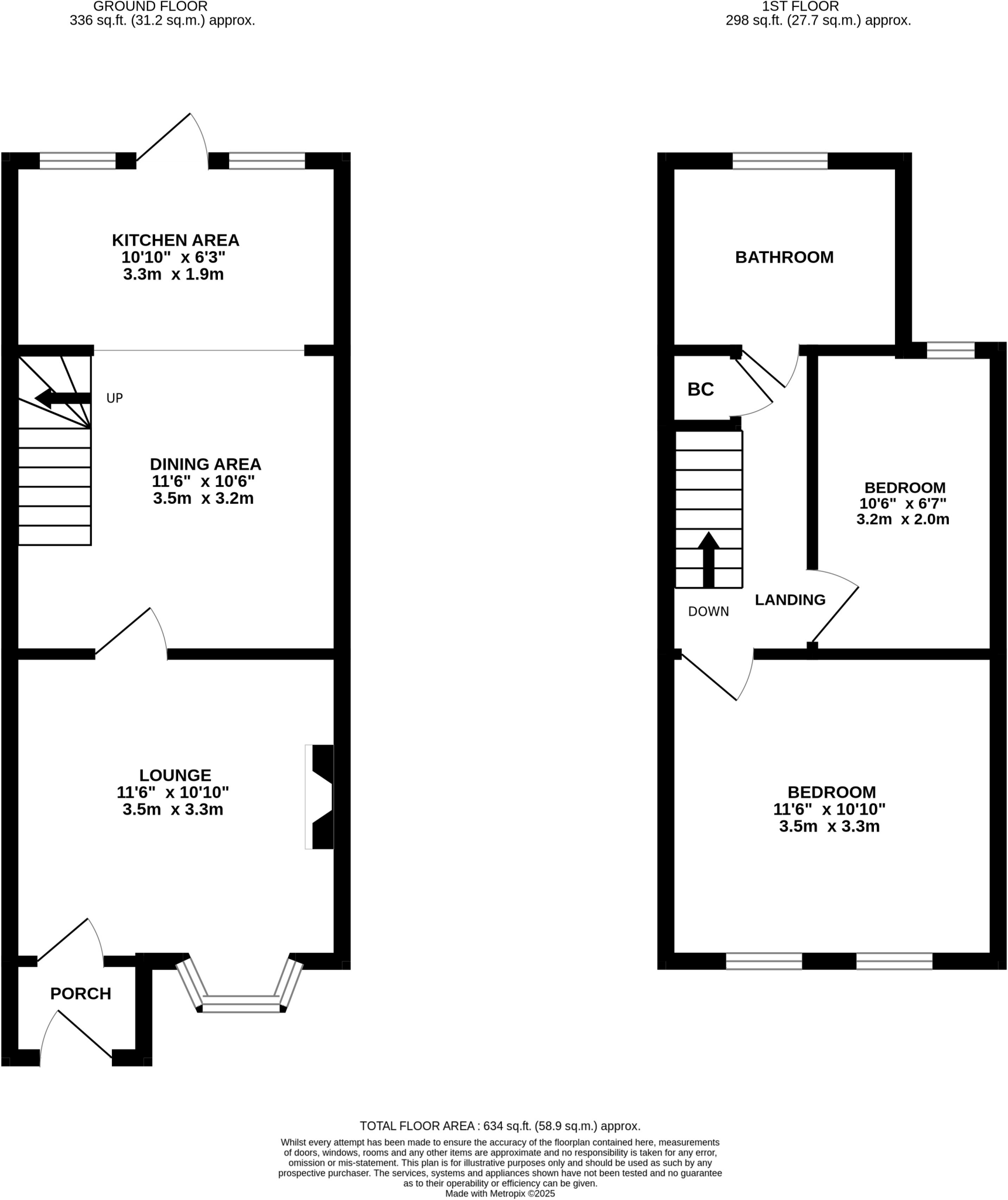
A lovely opportunity to purchase this two bedroomed cottage renovated to a high standard. This beautiful home provides radiator central heating, upstairs bathroom with underfloor heating and a free standing bath, lounge with wood burning stove for cosy nights, brick workshop (converted to an offi...
Property Oracle says ..
Potton is a popular village in Central Bedfordshire, and this terraced house on Biggleswade Road is well-located for families. The nearby Potton Lower and Middle Schools both have good Ofsted ratings, and the property is within easy reach of them. Biggleswade and Sandy train stations offer good transport links, although they are approximately 6-7km away. The property itself appears to be in good condition, having undergone some modernisation, as evidenced by the recently updated kitchen and bathroom. The images show a modern interior, with a stylish kitchen and a renovated bathroom. There is also a garden, although the size is not specified. The list price of £259,950 is considerably lower than the average price for the area (£487,350), and also lower than the average price per square foot (£416.00). However, the property is smaller than average at 633.99 sqft. Considering its location, condition, and the inclusion of a garden, the price may represent good value, although further investigation into the specifics of the plot size would be beneficial.
Therefore, we give this property 7 / 10. *Disclaimer: This is our option and does constitute a recommendation or financial advice. Do your own research. *
- Price
- 8
- Condition
- 8
- Location
- 7
- Land
- 5
- Bedrooms
- 2
- Bathrooms
- 1
- Sqft (est)
- 633.99
The heatmap indicates the level of crime in the area. The color of the heatmap indicates the crime severity and recency.
Metrics Year-on-Year
- Average area value
- 462,959.00 £Increased by 3.35 %
- Est sale value
- 335,380.71 £Increased by 21.61 %
- Average area rental value
- 1,308.00 £/moIncreased by 12.47 %
- Est letting value
- 633.99 £/moUnchanged by 0.00 %
- Est rental Yield
- 3.39 %Increased by 8.65 %
- Crime Rate
- 37.00 %Unchanged by 0.00 %
Agent Activity
Kennedy & Co Sales and Lettings marked this listing as sold.
Kennedy & Co Sales and Lettings created the listing.
Nearby Schools
| Name | Type | Ofsted | Distance |
|---|---|---|---|
| Potton Lower School | Foundation School | Good | 0.57 KM |
| Potton Middle School | Community School | Good | 0.62 KM |
| Sutton Cofe Va Lower School | Voluntary Aided School | Good | 1.60 KM |
| Oneschool Global Uk - Biggleswade Campus | Other Independent School | 3.23 KM | |
| Everton Heath Primary School | Academy Converter | 3.29 KM |
Images
Nearby Streets
| Name | Average Price | Average Sqft | Distance |
|---|---|---|---|
| Station Court | £ 0 | 0 | 0.00 KM |
| Burdett's Court | £ 0 | 0 | 0.00 KM |
| Burgoyne Court | £ 0 | 0 | 0.00 KM |
| West End Lane | £ 0 | 0 | 0.00 KM |
| Goodship Lane | £ 403,748 | 0 | 0.00 KM |
Nearby Transport
| Name | NLC | TLC | Distance |
|---|---|---|---|
| Biggleswade | 6170 | BIW | 6.63 KM |
| Sandy | 6172 | SDY | 7.01 KM |
Nearby Listings
| Address | Price | Type | Score | Distance |
|---|---|---|---|---|
| Biggleswade Road, Potton, Bedfordshire | £ 229,950 | BUY | 6 / 10 | 0.00 KM |
| Biggleswade Road, Potton, Bedfordshire | £ 220,000 | BUY | Unknown | 0.00 KM |
| Biggleswade Road, Potton, Central Bedfordshire | £ 259,950 | BUY | 7 / 10 | 0.00 KM |
| Biggleswade Road, Potton, Sandy | £ 365,000 | BUY | 8 / 10 | 0.00 KM |
| Biggleswade Road, Potton, SG19 | £ 340,000 | BUY | 7 / 10 | 0.02 KM |
Nearby Properties
| Address | Price | Distance |
|---|---|---|
| 19 Biggleswade Road | £ 230,000 | 0.02 KM |
| 73 Biggleswade Road | £ 565,000 | 0.02 KM |
| 77 Biggleswade Road | £ 299,995 | 0.02 KM |
| 33 Biggleswade Road | £ 48,500 | 0.02 KM |
| 71 Biggleswade Road | £ 480,000 | 0.02 KM |