Gordon Avenue, Stanmore, HA7
Davidson Frost-Wellings logo

Gordon Avenue, Stanmore, HA7

By Davidson Frost-Wellings

£ 1,750,000

Reviews

4 out of 5 stars

Davidson Frost-Wellings says ..

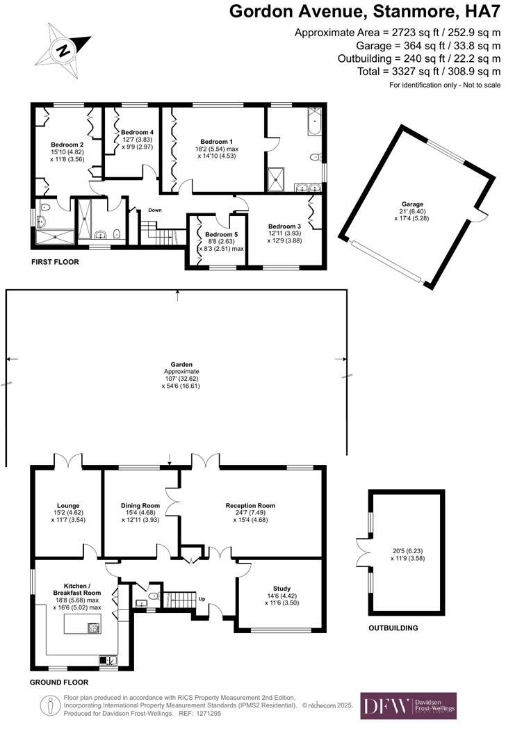
A large and impressive detached house available on Gordon Avenue with Davidson Frost-Wellings. On the ground floor, the house has multiple reception rooms including an office, large living room, dining room and playroom, plus an eat-in kitchen/dining room. There is also a spacious hallwa...

Property Oracle says ..

This property is a 5 bedroom detached house located in Stanmore, Harrow. The location benefits from being close to several highly-rated schools and is within a reasonable distance of transport links. The property itself is in excellent condition and benefits from a large garden. The list price is above the average for the area but is justified given the size, condition, and location of the property.

Therefore, we give this property 8 / 10. *Disclaimer: This is our option and does constitute a recommendation or financial advice. Do your own research. *

Price
7
Condition
9
Location
9
Land
8
Bedrooms
5
Bathrooms
3
Sqft (est)
2,576.23
Lot (est)
3,327.00

The heatmap indicates the level of crime in the area. The color of the heatmap indicates the crime severity and recency.

Metrics Year-on-Year

Average area value
892,211.00 £
Increased by 5.89 %
from 842,593.00 £
Est sale value
2,885,377.60 £
Increased by 56.64 %
from 1,842,004.45 £
Average area rental value
2,230.00 £/mo
Decreased by 30.05 %
from 3,188.00 £/mo
Est letting value
5,152.46 £/mo
Unchanged by 0.00 %
from 5,152.46 £/mo
Est rental Yield
3.00 %
Decreased by 33.92 %
from 4.54 %
Crime Rate
3.00 %
Unchanged by 0.00 %
from 3.00 %

Agent Activity

  • Davidson Frost-Wellings created the listing.

Nearby Schools

NameTypeOfstedDistance
Stanmore ParkChildren's Centre Linked Site0.51 KM
Stanmore CollegeFurther EducationGood0.56 KM
Stanburn Primary SchoolCommunity SchoolGood0.92 KM
St John'S Cofe SchoolVoluntary Aided SchoolGood1.11 KM
Avanti House SchoolFree SchoolsGood1.35 KM

Images

Davidson Frost-Wellings, DFW, Gordon Avenue, Stanm Davidson Frost-Wellings, DFW, Gordon Avenue, Stanm Davidson Frost-Wellings, DFW, Gordon Avenue, Stanm Davidson Frost-Wellings, DFW, Gordon Avenue, Stanm Davidson Frost-Wellings, DFW, Gordon Avenue, Stanm Davidson Frost-Wellings, DFW, Gordon Avenue, Stanm Davidson Frost-Wellings, DFW, Gordon Avenue, Stanm Davidson Frost-Wellings, DFW, Gordon Avenue, Stanm Davidson Frost-Wellings, DFW, Gordon Avenue, Stanm Davidson Frost-Wellings, DFW, Gordon Avenue, Stanm Davidson Frost-Wellings, DFW, Gordon Avenue, Stanm Davidson Frost-Wellings, DFW, Gordon Avenue, Stanm Davidson Frost-Wellings, DFW, Gordon Avenue, Stanm Davidson Frost-Wellings, DFW, Gordon Avenue, Stanm Davidson Frost-Wellings, DFW, Gordon Avenue, Stanm Davidson Frost-Wellings, DFW, Gordon Avenue, Stanm Davidson Frost-Wellings, DFW, Gordon Avenue, Stanm Davidson Frost-Wellings, DFW, Gordon Avenue, Stanm Davidson Frost-Wellings, DFW, Gordon Avenue, Stanm

Nearby Streets

NameAverage PriceAverage SqftDistance
Greenacres Drive £ 000.00 KM
Glyn Court £ 000.00 KM
William Drive £ 000.00 KM
Linden Close £ 1,650,00000.00 KM
Alcuin Court £ 000.00 KM

Nearby Transport

NameNLCTLCDistance
Harrow And Wealdstone1397HRW3.02 KM
Kenton1399KNT3.32 KM
Harrow-On-The-Hill598HOH4.34 KM
South Kenton1453SOK4.68 KM
Headstone Lane1434HDL4.72 KM

Nearby Listings

AddressPriceTypeScoreDistance
Gordon Avenue, Stanmore, HA7 £ 1,750,000BUY8 / 100.00 KM
Stanmore, Middlesex, HA7 £ 975,000BUY6 / 100.09 KM
Rosedale Close, Stanmore, HA7 £ 500,000BUY6 / 100.14 KM
Gordon Avenue, Stanmore, HA7 £ 2,000,000BUY6 / 100.14 KM
Chandos Court, STANMORE, HA7 £ 1,700,000BUY8 / 100.17 KM

Nearby Properties

AddressPriceDistance
28 Gordon Avenue £ 1,500,0000.06 KM
24 Gordon Avenue £ 611,0000.06 KM
2 Gordon Avenue £ 2,200,0000.06 KM
22 Gordon Avenue £ 1,250,0000.10 KM
12 Gleneagles £ 273,0000.18 KM