Argyle Street, Abertillery, Gwent, Blaenau Gwent, NP13
By Cariad Property
£ 134,995
Cariad Property says ..
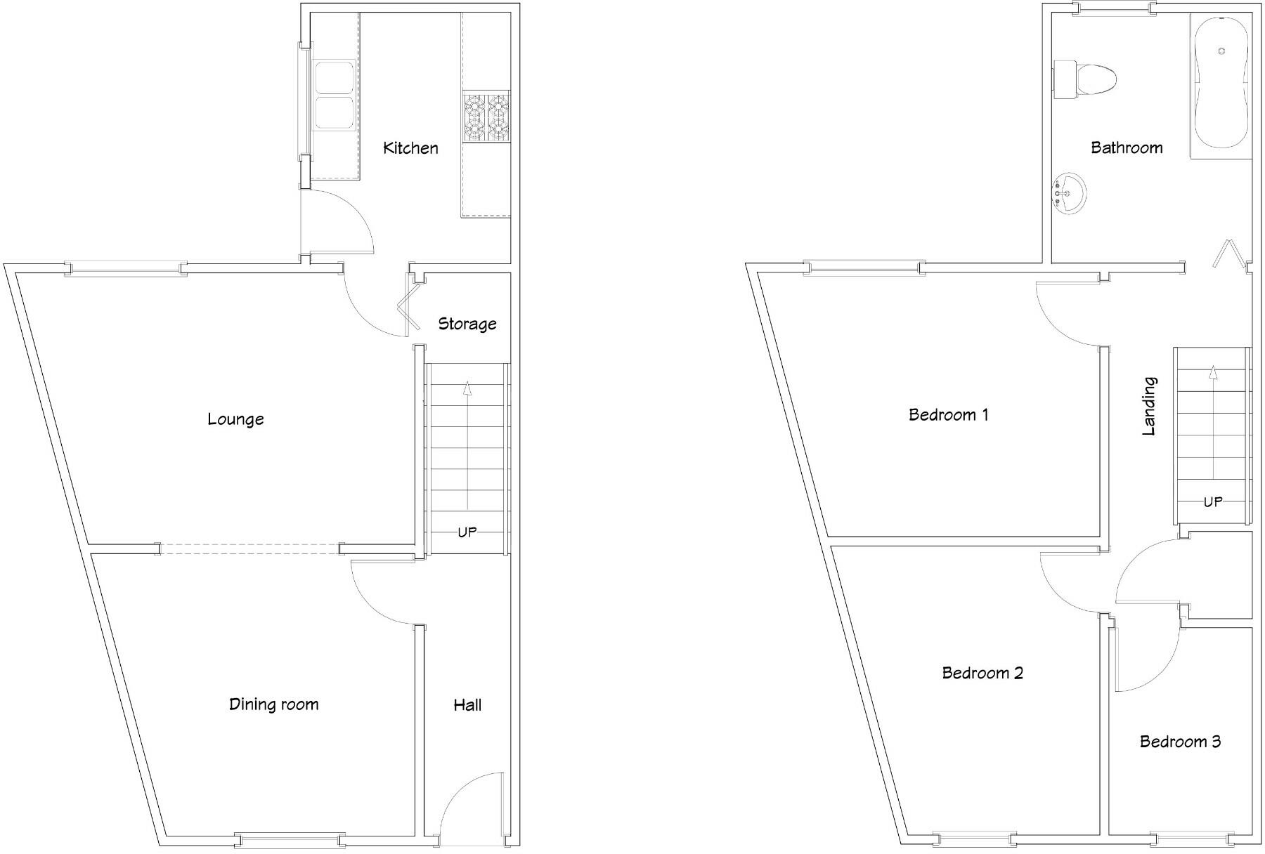
Delightful and quirky family home, end terraced with a garage and driveway, three bedrooms, modern kitchen, and bathroom, extended and modern design, no chain.
- Bedrooms
- 3
- Bathrooms
- 1
The heatmap indicates the level of crime in the area. The color of the heatmap indicates the crime severity and recency.
Metrics Year-on-Year
- Average area value
- 300,000.00 £Decreased by 22.28 %
- Average area rental value
- 1,073.00 £/moDecreased by 13.47 %
- Est rental Yield
- 4.29 %Increased by 11.43 %
- Crime Rate
- 35.00 %Unchanged by 0.00 %
from 386,017.00 £
from 1,240.00 £/mo
from 3.85 %
from 35.00 %
Agent Activity
Cariad Property created the listing.
Nearby Schools
| Name | Type | Ofsted | Distance |
|---|---|---|---|
| Trinant Primary School | Welsh Establishment | 3.85 KM | |
| St Illtyd'S | Welsh Establishment | 4.17 KM | |
| Ystruth Primary | Welsh Establishment | 4.31 KM | |
| Cwm Primary School | Welsh Establishment | 5.56 KM | |
| Sofrydd C.P. School | Welsh Establishment | 5.58 KM |
Images
Nearby Streets
| Name | Average Price | Average Sqft | Distance |
|---|---|---|---|
| Argyle Street | £ 131,663 | 0 | 0.00 KM |
| York Street | £ 0 | 0 | 0.00 KM |
| Gladstone Street | £ 111,500 | 0 | 0.00 KM |
| Alma Street | £ 128,333 | 0 | 0.00 KM |
| Bridge Street | £ 114,100 | 0 | 0.00 KM |
Nearby Transport
| Name | NLC | TLC | Distance |
|---|---|---|---|
| Llanhilleth | 9916 | LTH | 3.53 KM |
| Ebbw Vale Parkway | 9915 | EBV | 7.04 KM |
| Newbridge | 9919 | NBE | 7.38 KM |
| Ebbw Vale Town | 3628 | EBB | 8.73 KM |
Nearby Listings
| Address | Price | Type | Score | Distance |
|---|---|---|---|---|
| Argyle Street, Abertillery, Gwent, Blaenau Gwent, NP13 | £ 134,995 | BUY | Unknown | 0.00 KM |
| Rosebery Street, Abertillery | £ 120,000 | BUY | 4 / 10 | 0.06 KM |
| Gladstone Street, Abertillery, Gwent, Blaenau Gwent, NP13 | £ 139,995 | BUY | 6 / 10 | 0.08 KM |
| York Street, Abertillery Gwent. NP131NG | £ 167,000 | BUY | 6 / 10 | 0.10 KM |
| York Street, Abertillery | £ 150,000 | BUY | 6 / 10 | 0.11 KM |
Nearby Properties
| Address | Price | Distance |
|---|---|---|
| 12 Oak Street | £ 95,000 | 0.08 KM |
| 26a Oak Street | £ 65,000 | 0.08 KM |
| 19 Oak Street | £ 50,000 | 0.08 KM |
| 18 Oak Street | £ 11,000 | 0.08 KM |
| Station House | £ 223,000 | 0.08 KM |