South Instow, BH19
MI

South Instow, BH19

By Miles & Son

£ 1,350,000

Reviews

3 out of 5 stars

Miles & Son says ..

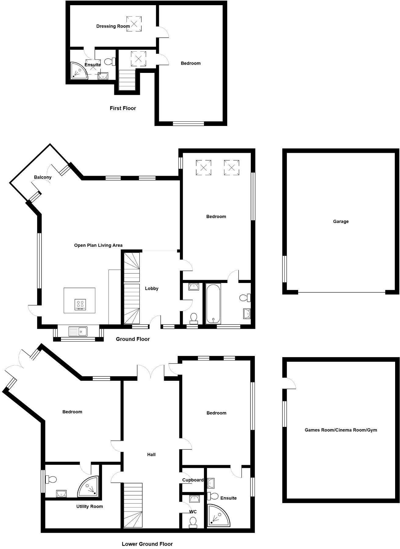
* BRAND NEW HOUSE - VILLAGE LOCATION with SOUTHERLY ASPECT AND GARDEN *2098 sq.ft/195 sq.m property PLUS DETACHED two-storey DOUBLE GARAGE BLOCK of 895 sq.ft/83 sq.m. 4 bedrooms (all en-suite). SOUTH FACING LIVING SPACE. EXPECTED COMPLETION LATE APRIL 2025.

Property Oracle says ..

Therefore, we give this property 7 / 10. *Disclaimer: This is our option and does constitute a recommendation or financial advice. Do your own research. *

Price
6
Condition
9
Location
7
Land
7
Bedrooms
4
Bathrooms
4
Sqft (est)
1,700.00

The heatmap indicates the level of crime in the area. The color of the heatmap indicates the crime severity and recency.

Metrics Year-on-Year

Average area value
648,333.00 £
Decreased by 22.26 %
from 833,953.00 £
Est sale value
576,300.00 £
Decreased by 34.05 %
from 873,800.00 £
Average area rental value
3,325.00 £/mo
Increased by 31.84 %
from 2,522.00 £/mo
Est letting value
1,700.00 £/mo
Unchanged by 0.00 %
from 1,700.00 £/mo
Est rental Yield
6.15 %
Increased by 69.42 %
from 3.63 %
Crime Rate
102.00 %
Unchanged by 0.00 %
from 102.00 %

Agent Activity

  • Miles & Son created the listing.

Nearby Schools

NameTypeOfstedDistance
St George'S Church Of England Primary School, Langton MatraversVoluntary Aided SchoolGood2.09 KM
Swanage St Mark'S Church Of England Primary SchoolAcademy ConverterGood3.96 KM
The Swanage SchoolFree SchoolsGood3.96 KM
Corfe Castle Church Of England Primary SchoolAcademy ConverterRequires improvement4.25 KM
Wareham Children'S CentreChildren's Centre4.32 KM

Images

Garden view Front elevation Lower garden Garden Rear elevation Rear and garden Front Rear Lower garden Balcony & patio South/east elevation Front and side South facing lounge Proposed Kitchen Proposed Kitchen Proposed Kitchen Proposed Kitchen Proposed Utility Front elevation View of property En-suite bedroom 2 En-suite bedroom 1 En-suite bedroom 4 En-suite bedroom 4 Front garden Entrance

Nearby Streets

NameAverage PriceAverage SqftDistance
Bower Close £ 000.00 KM
Farm Cottages £ 725,00000.00 KM

Nearby Transport

NameNLCTLCDistance
Corfe Castle7765CFC4.46 KM

Nearby Listings

AddressPriceTypeScoreDistance
Harmans Cross, South Instow, Swanage £ 695,000BUY6 / 100.00 KM
South Instow, BH19 £ 1,350,000BUY7 / 100.00 KM
South Instow, Harmans Cross £ 695,000BUY6 / 100.00 KM
Harmans Cross, Swange, Dorset £ 1,100,000BUY7 / 100.13 KM
SOUTH INSTOW, HARMANS CROSS £ 1,350,000BUY7 / 100.14 KM

Nearby Properties

AddressPriceDistance
Woodstock £ 560,0000.01 KM
The Whirlies £ 495,0000.05 KM
Foxglove Cottage £ 395,0000.05 KM
Pines £ 372,5000.05 KM
Bracken Lodge £ 575,0000.05 KM