Greencroft Gardens, London, NW6
By Hamptons Sales
£ 4,000,000
Reviews
3 out of 5 stars
Hamptons Sales says ..
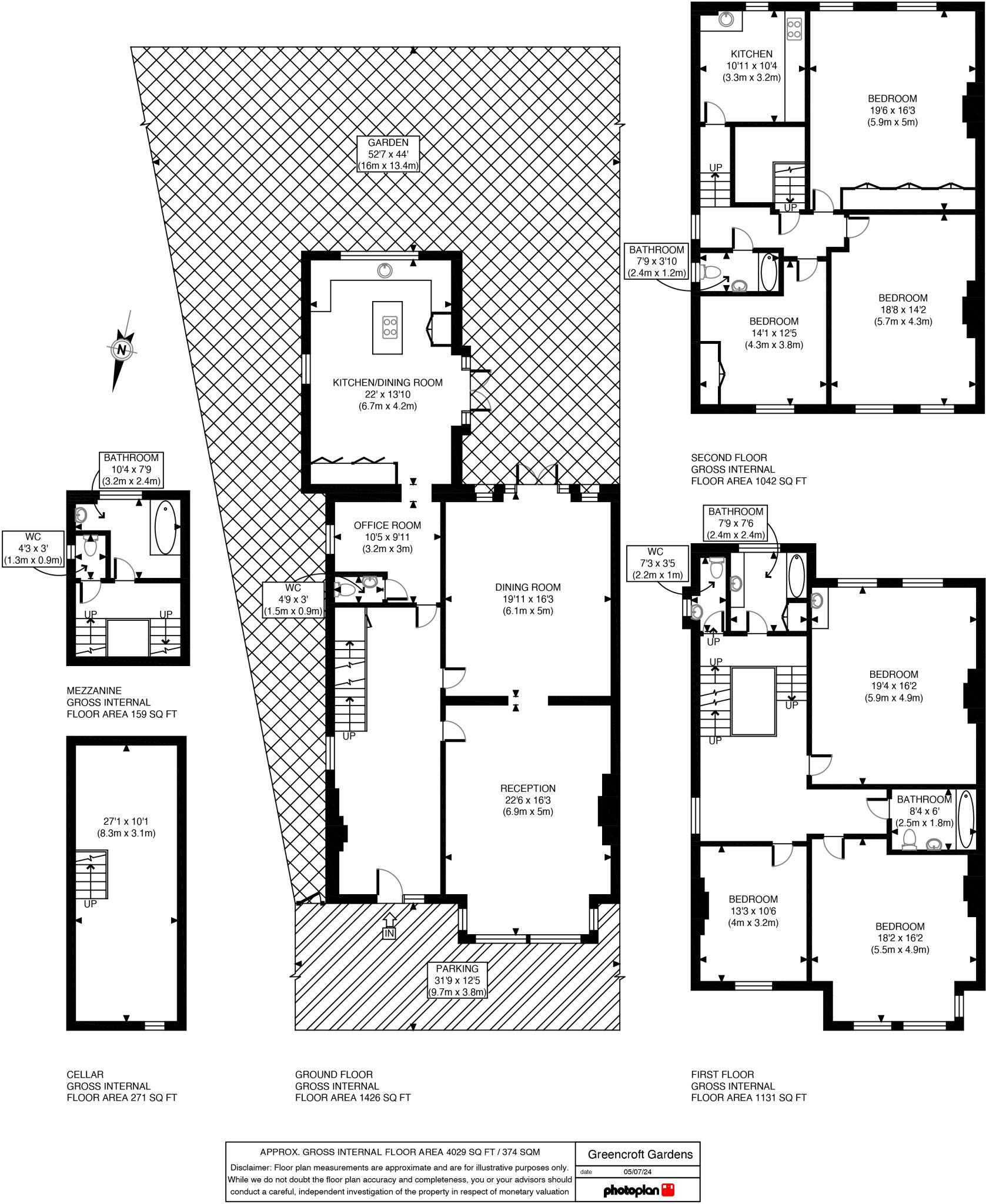
Available to market for the first time in 46 years is this bright and airy freehold Victorian semi-detached house, complete with off-street parking for a minimum of two cars and set on one of South Hampstead's favoured tree-lined residential addresses.
Property Oracle says ..
This property is located in the desirable Swiss Cottage area of London, known for its excellent schools and transport links. The property itself appears to be a well-maintained period property with traditional features and a good-sized garden. While the square footage is not provided, the list price of £4,000,000 is high compared to the average price of £1,274,790 in the area. However, considering the property’s size, features, and location, it may be justifiable. More information on the property’s square footage would be needed to provide a more definitive opinion on the price.
Therefore, we give this property 7 / 10. *Disclaimer: This is our option and does constitute a recommendation or financial advice. Do your own research. *
- Price
- 6
- Condition
- 8
- Location
- 9
- Land
- 7
- Bedrooms
- 6
- Bathrooms
- 4
The heatmap indicates the level of crime in the area. The color of the heatmap indicates the crime severity and recency.
Metrics Year-on-Year
- Average area value
- 952,139.00 £Decreased by 44.31 %
- Average area rental value
- 2,414.00 £/moDecreased by 22.03 %
- Est rental Yield
- 3.04 %Increased by 40.09 %
- Crime Rate
- 1.00 %Unchanged by 0.00 %
Agent Activity
Hamptons Sales created the listing.
Nearby Schools
| Name | Type | Ofsted | Distance |
|---|---|---|---|
| Broadhurst School | Other Independent School | 0.47 KM | |
| Holy Trinity Cofe Primary School, Nw3 | Voluntary Aided School | Good | 0.89 KM |
| North Bridge House Pre-Prep School | Other Independent School | 0.90 KM | |
| St Mary'S Kilburn Church Of England Primary School | Voluntary Aided School | Good | 0.94 KM |
| South Hampstead High School | Other Independent School | 0.96 KM |
Images
Nearby Streets
| Name | Average Price | Average Sqft | Distance |
|---|---|---|---|
| St Mary's Mews | £ 0 | 0 | 0.00 KM |
| Loudoun Road | £ 0 | 0 | 0.00 KM |
| Victoria Rise | £ 2,743,998 | 0 | 0.00 KM |
| Springfield Walk | £ 0 | 0 | 0.00 KM |
| West Hampstead Studios | £ 529,950 | 0 | 0.00 KM |
Nearby Transport
| Name | NLC | TLC | Distance |
|---|---|---|---|
| South Hampstead | 1451 | SOH | 0.72 KM |
| West Hampstead | 1421 | WHD | 0.83 KM |
| Finchley Road And Frognal | 1445 | FNY | 0.85 KM |
| West Hampstead Thameslink | 1525 | WHP | 0.96 KM |
| Kilburn High Road | 1415 | KBN | 0.99 KM |
Nearby Listings
| Address | Price | Type | Score | Distance |
|---|---|---|---|---|
| Greencroft Gardens, London, NW6 | £ 4,000,000 | BUY | 7 / 10 | 0.00 KM |
| Greencroft Gardens, South Hampstead NW6 | £ 625,000 | BUY | 6 / 10 | 0.03 KM |
| Greencroft Gardens, South Hampstead NW6 | £ 699,950 | BUY | 7 / 10 | 0.03 KM |
| Greencroft Gardens, South Hampstead, London, NW6 | £ 1,250,000 | BUY | 8 / 10 | 0.08 KM |
| Greencroft Gardens, South Hampstead, London, NW6 | £ 1,000,000 | BUY | 7 / 10 | 0.08 KM |
Nearby Properties
| Address | Price | Distance |
|---|---|---|
| 87 Greencroft Gardens | £ 990,000 | 0.03 KM |
| 45 Aberdare Gardens | £ 2,175,000 | 0.09 KM |
| 41a Aberdare Gardens | £ 860,000 | 0.09 KM |
| 41b Aberdare Gardens | £ 580,000 | 0.09 KM |
| 110 Greencroft Gardens | £ 3,522,500 | 0.09 KM |