OL
Lower Prestwood Road, Wednesfield, Wolverhampton, WV11
By Oliver Ling
£ 185,000
Reviews
3 out of 5 stars
Oliver Ling says ..
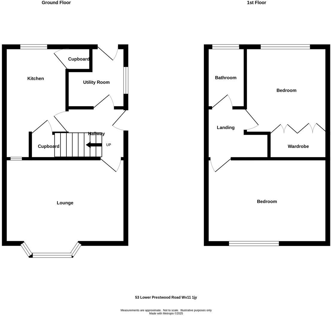
This ideal first home offers deceptively spacious accommodation at a very competitive price. It is situated in a popular residential area being conveniently located for Wednesfield town centre and Bentley Bridge retail park. The property briefly comprises, reception hall, lounge, kitchen, util...
Property Oracle says ..
Therefore, we give this property 7 / 10. *Disclaimer: This is our option and does constitute a recommendation or financial advice. Do your own research. *
- Price
- 8
- Condition
- 6
- Location
- 7
- Land
- 7
- Bedrooms
- 2
- Bathrooms
- 1
The heatmap indicates the level of crime in the area. The color of the heatmap indicates the crime severity and recency.
Metrics Year-on-Year
- Average area value
- 244,990.00 £Increased by 9.73 %
- Average area rental value
- 1,214.00 £/moIncreased by 2.79 %
- Est rental Yield
- 5.95 %Decreased by 6.30 %
- Crime Rate
- 3.00 %Unchanged by 0.00 %
from 223,266.00 £
from 1,181.00 £/mo
from 6.35 %
from 3.00 %
Agent Activity
Oliver Ling created the listing.
Nearby Schools
| Name | Type | Ofsted | Distance |
|---|---|---|---|
| Long Knowle Primary School | Community School | Good | 0.35 KM |
| Wood End Primary School | Community School | Good | 0.48 KM |
| Wodensfield Primary School | Community School | Good | 0.76 KM |
| St Thomas' Church Of England Primary Academy | Academy Converter | 0.89 KM | |
| Deyncourt Primary School | Academy Converter | 1.10 KM |
Images
Nearby Streets
| Name | Average Price | Average Sqft | Distance |
|---|---|---|---|
| Helmsley Road | £ 154,998 | 0 | 0.00 KM |
| North Avenue | £ 0 | 0 | 0.00 KM |
| West Avenue | £ 145,000 | 0 | 0.00 KM |
| East Avenue | £ 214,099 | 0 | 0.00 KM |
| Vicarage Road | £ 239,000 | 0 | 0.00 KM |
Nearby Transport
| Name | NLC | TLC | Distance |
|---|---|---|---|
| Wolverhampton | 1218 | WVH | 4.46 KM |
| Coseley | 1143 | CSY | 7.27 KM |
| Bloxwich North | 1018 | BWN | 7.76 KM |
| Bloxwich | 1141 | BLX | 8.31 KM |
| Landywood | 1017 | LAW | 8.87 KM |
Nearby Listings
| Address | Price | Type | Score | Distance |
|---|---|---|---|---|
| Lower Prestwood Road, Wednesfield, Wolverhampton, WV11 | £ 185,000 | BUY | 7 / 10 | 0.00 KM |
| Lower Prestwood Road, Wednesfield, Wolverhampton | £ 220,000 | BUY | 6 / 10 | 0.00 KM |
| Lower Prestwood Road, Wednesfield, Wolverhampton, WV11 1JY | £ 190,000 | BUY | 7 / 10 | 0.00 KM |
| Harper Avenue, Wednesfield, Wolverhampton, WV11 | £ 240,000 | BUY | 7 / 10 | 0.08 KM |
| Harper Avenue, Wolverhampton | £ 235,000 | BUY | 5 / 10 | 0.08 KM |
Nearby Properties
| Address | Price | Distance |
|---|---|---|
| 43 Lower Prestwood Road | £ 99,000 | 0.01 KM |
| 49 Lower Prestwood Road | £ 99,995 | 0.01 KM |
| 61 Lower Prestwood Road | £ 93,500 | 0.01 KM |
| 23 Lower Prestwood Road | £ 194,000 | 0.01 KM |
| 59 Lower Prestwood Road | £ 70,000 | 0.01 KM |