DE
Teagues Way, Cinderford
By Dean Estate Agents
£ 220,000
Reviews
3 out of 5 stars
Dean Estate Agents says ..
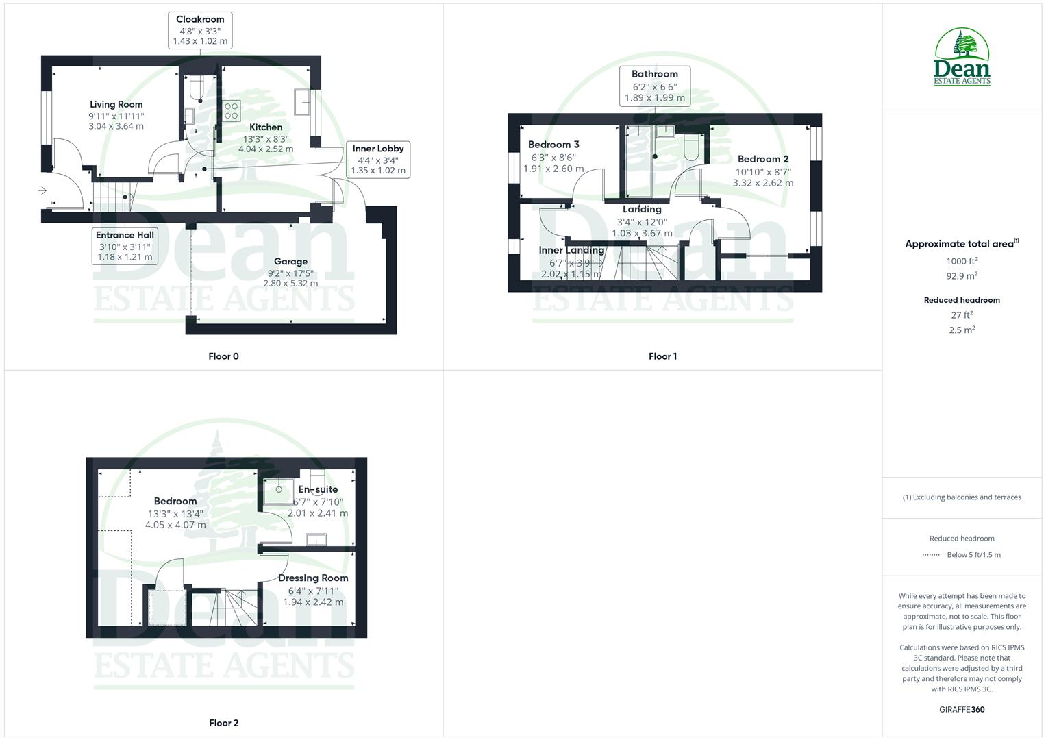
*** VIRTUAL TOUR AVAILABLE *** *** PRICED TO SELL *** *** GARAGE ATTACHED *** Dean Estate Agents are thrilled to offer for sale this well presented semi-detached town house with accommodation over 3 floors. There is a living room, fitted kitchen/diner, two bedrooms and family bathroom to...
Property Oracle says ..
Therefore, we give this property 7 / 10. *Disclaimer: This is our option and does constitute a recommendation or financial advice. Do your own research. *
- Price
- 8
- Condition
- 8
- Location
- 7
- Land
- 7
- Bedrooms
- 3
- Bathrooms
- 2
- Sqft (est)
- 968.54
The heatmap indicates the level of crime in the area. The color of the heatmap indicates the crime severity and recency.
Metrics Year-on-Year
- Average area value
- 268,125.00 £Increased by 15.58 %
- Est sale value
- 264,411.42 £Increased by 19.21 %
- Average area rental value
- 1,044.00 £/moIncreased by 5.56 %
- Est letting value
- 968.54 £/mo
- Est rental Yield
- 4.67 %Decreased by 8.79 %
- Crime Rate
- 17.00 %Unchanged by 0.00 %
from 231,978.00 £
from 221,795.66 £
from 989.00 £/mo
from 0.00 £/mo
from 5.12 %
from 17.00 %
Agent Activity
Dean Estate Agents created the listing.
Nearby Schools
| Name | Type | Ofsted | Distance |
|---|---|---|---|
| St White'S Primary School | Community School | Good | 1.05 KM |
| Hilltop Children'S Centre | Children's Centre | 1.91 KM | |
| The Forest High School | Academy Sponsor Led | Requires improvement | 1.96 KM |
| Forest View Primary School | Academy Converter | Good | 2.11 KM |
| Steam Mills Primary School | Community School | Good | 2.45 KM |
Images
Nearby Streets
| Name | Average Price | Average Sqft | Distance |
|---|---|---|---|
| Forest View Park | £ 0 | 0 | 0.00 KM |
| Beech Road | £ 0 | 0 | 0.00 KM |
| Hillberry Road | £ 140,000 | 0 | 0.00 KM |
| Fairfields | £ 174,000 | 0 | 0.00 KM |
| Hodges Way | £ 115,000 | 0 | 0.00 KM |
Nearby Listings
| Address | Price | Type | Score | Distance |
|---|---|---|---|---|
| Teagues Way, Cinderford | £ 220,000 | BUY | 7 / 10 | 0.00 KM |
| Cinders Crescent, Cinderford, GL14 2GB | £ 239,995 | BUY | 7 / 10 | 0.06 KM |
| Cinders Crescent, Cinderford | £ 245,000 | BUY | 7 / 10 | 0.06 KM |
| Cinders Crescent, Cinderford | £ 270,000 | BUY | 6 / 10 | 0.06 KM |
| Cinders Crescent, Cinderford, GL14 2GB | £ 239,995 | BUY | 7 / 10 | 0.06 KM |
Nearby Properties
| Address | Price | Distance |
|---|---|---|
| 41 Teagues Way | £ 220,000 | 0.03 KM |
| 6 Teagues Way | £ 189,000 | 0.03 KM |
| 7 Cinders Crescent | £ 160,000 | 0.07 KM |
| 28 Cinders Crescent | £ 212,000 | 0.07 KM |
| 20 Cinders Crescent | £ 191,000 | 0.07 KM |