holland & odam says ..
This attractive three-bedroom detached bungalow is situated in a popular area of the town, offering well-proportioned living accommodation throughout, ideal for those seeking a spacious and comfortable home. With its desirable location and scope to extend into the roof space, subject to planning ...
Property Oracle says ..
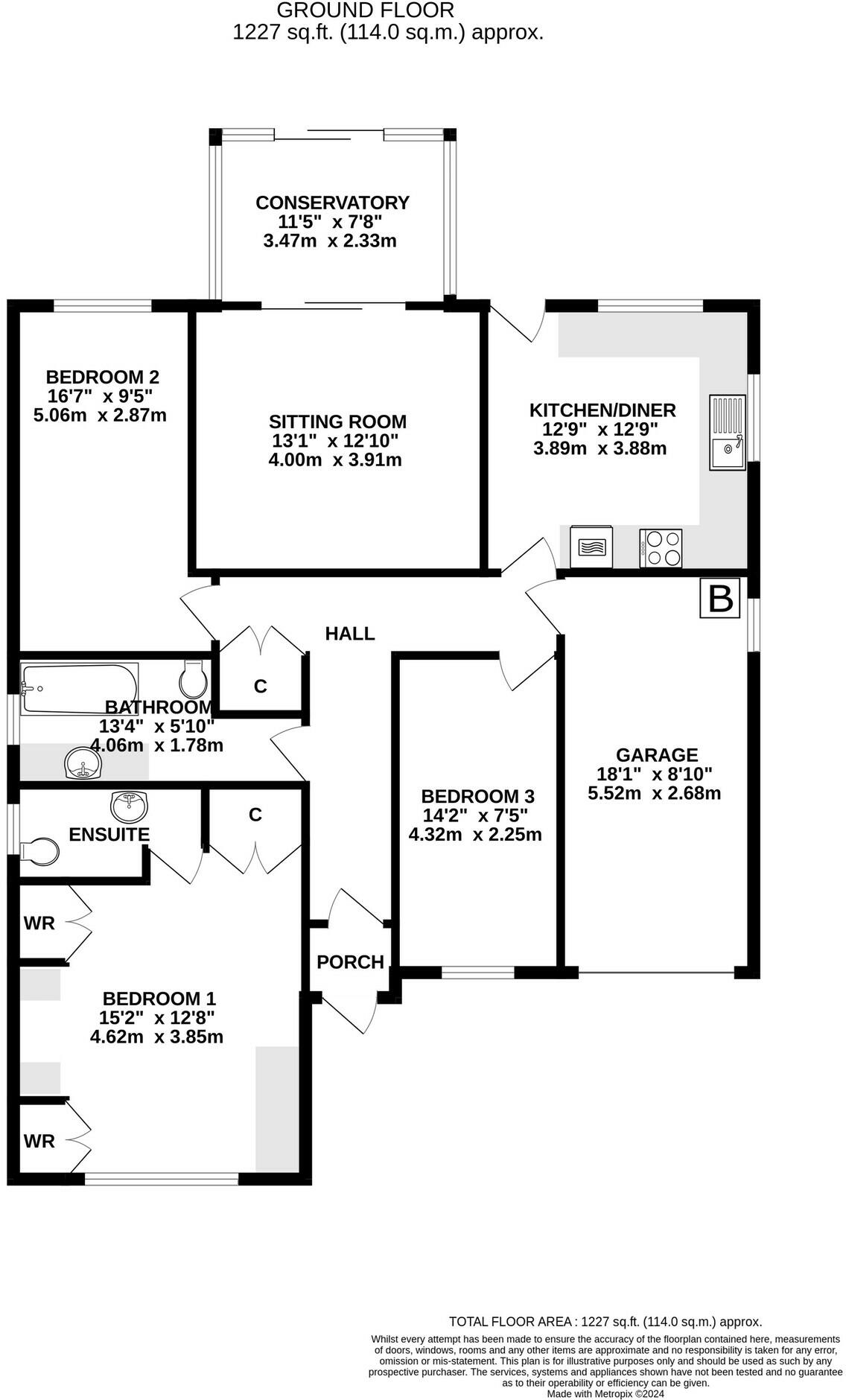
This three-bedroom detached bungalow in Street, Somerset, is presented for sale at £385,000. The property features a kitchen, two bathrooms, and appears to have been reasonably well-maintained, though it shows its age. The kitchen cabinetry and bathroom tiling suggest a need for modernisation. The property offers a relatively small garden with a conservatory. The location is desirable, with proximity to several schools, including highly-rated options like Strode College and Hindhayes Infant School, making it attractive to families. However, information on transport links is missing. Comparable properties in the area, while lacking detailed size specifics, suggest the asking price is within a reasonable range for this type of property in the location, though the absence of detailed plot size or sqft information for comparable listings limits definitive conclusions on price-per-square-foot value. Buyers should carefully weigh modernization needs against the property’s location and existing amenities.
Therefore, we give this property 6 / 10. *Disclaimer: This is our option and does constitute a recommendation or financial advice. Do your own research. *
- Price
- 7
- Condition
- 6
- Location
- 7
- Land
- 4
- Bedrooms
- 3
- Bathrooms
- 2
- Sqft (est)
- 1,227.09
The heatmap indicates the level of crime in the area. The color of the heatmap indicates the crime severity and recency.
Metrics Year-on-Year
- Average area value
- 211,990.00 £Decreased by 57.21 %
- Est sale value
- 360,764.46 £Decreased by 9.82 %
- Average area rental value
- 1,750.00 £/moIncreased by 95.75 %
- Est letting value
- 2,454.18 £/mo
- Est rental Yield
- 9.91 %Increased by 356.68 %
- Crime Rate
- 2.00 %Unchanged by 0.00 %
Agent Activity
holland & odam created the listing.
Nearby Schools
| Name | Type | Ofsted | Distance |
|---|---|---|---|
| Hindhayes Infant School | Community School | Good | 0.42 KM |
| Elmhurst Junior School | Community School | Requires improvement | 0.73 KM |
| Millfield School | Other Independent School | 0.90 KM | |
| Strode College | Further Education | Outstanding | 1.17 KM |
| Crispin School Academy | Academy Converter | Good | 1.19 KM |
Images
Nearby Streets
| Name | Average Price | Average Sqft | Distance |
|---|---|---|---|
| Portway | £ 0 | 0 | 0.00 KM |
| Portway Crescent | £ 729,950 | 0 | 0.00 KM |
| Oriel Road | £ 0 | 0 | 0.00 KM |
| Park Road | £ 0 | 0 | 0.00 KM |
| Kingston Close | £ 0 | 0 | 0.00 KM |
Nearby Listings
| Address | Price | Type | Score | Distance |
|---|---|---|---|---|
| Seymour Road, Street | £ 385,000 | BUY | 6 / 10 | 0.00 KM |
| Seymour Road, Street | £ 299,950 | BUY | 5 / 10 | 0.11 KM |
| Seymour Road, Street | £ 300,000 | BUY | 6 / 10 | 0.12 KM |
| A unique opportunity to create a dream home on the edge of Street | £ 495,000 | BUY | 5 / 10 | 0.13 KM |
| A unique opportunity to create a dream home on the edge of Street | £ 495,000 | BUY | 5 / 10 | 0.13 KM |
Nearby Properties
| Address | Price | Distance |
|---|---|---|
| 10 Portway | £ 170,000 | 0.08 KM |
| 23 Seymour Road | £ 345,000 | 0.08 KM |
| 6 Seymour Road | £ 292,500 | 0.08 KM |
| 2 Seymour Road | £ 175,000 | 0.08 KM |
| 14 Seymour Road | £ 235,000 | 0.08 KM |