Cottonfields, Bolton, Lancashire, BL7
By Newton & Co Ltd
£ 150,000
Reviews
3 out of 5 stars
Newton & Co Ltd says ..
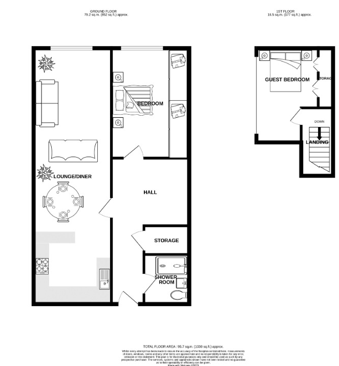
Two Bed Second Floor Apartment In Eagley
Property Oracle says ..
This property is a two-bedroom apartment located in Bolton, Lancashire. The apartment is situated in Valley Mill, a converted cotton mill, and benefits from being close to Eagley Brook. While the provided images showcase a modern interior with a recently updated kitchen and bathroom, the flooring in at least one bedroom appears to be unfinished. The property is listed at £150,000. The average price for properties in the area is £193,979, and the average price per square foot is £230. Considering the average price per sqft and the property’s size of 730 sqft, one might expect a price closer to £168,000. However, the lower list price might reflect the unfinished flooring or other factors not immediately apparent from the images.
Therefore, we give this property 6 / 10. *Disclaimer: This is our option and does constitute a recommendation or financial advice. Do your own research. *
- Price
- 6
- Condition
- 7
- Location
- 8
- Land
- 3
- Bedrooms
- 2
- Bathrooms
- 1
- Sqft (est)
- 730.00
- Lot (est)
- 1,030.00
The heatmap indicates the level of crime in the area. The color of the heatmap indicates the crime severity and recency.
Metrics Year-on-Year
- Average area value
- 210,714.00 £Decreased by 13.37 %
- Est sale value
- 144,540.00 £Increased by 8.20 %
- Average area rental value
- 907.00 £/moDecreased by 9.21 %
- Est letting value
- 0.00 £/mo
- Est rental Yield
- 5.17 %Increased by 4.87 %
- Crime Rate
- 0.00 %
Agent Activity
Newton & Co Ltd created the listing.
Nearby Schools
| Name | Type | Ofsted | Distance |
|---|---|---|---|
| St John The Evangelist Rc Primary School, Bromley Cross, Bolton | Voluntary Aided School | Good | 0.49 KM |
| The Oaks Primary School | Community School | Outstanding | 0.62 KM |
| High Lawn Primary School | Community School | Good | 0.86 KM |
| Sharples School | Academy Converter | Good | 0.98 KM |
| Bromley Cross Start Well Link Site | Children's Centre Linked Site | 1.09 KM |
Images
Nearby Streets
| Name | Average Price | Average Sqft | Distance |
|---|---|---|---|
| The Gardens | £ 345,000 | 0 | 0.00 KM |
| Back Cox Green Road North | £ 0 | 0 | 0.00 KM |
| Elm Grove | £ 325,000 | 0 | 0.00 KM |
| Back Dunscar Square | £ 0 | 0 | 0.00 KM |
| Denham Close | £ 0 | 0 | 0.00 KM |
Nearby Transport
| Name | NLC | TLC | Distance |
|---|---|---|---|
| Bromley Cross (Lancs) | 2697 | BMC | 2.00 KM |
| Hall-I'-Th'-Wood | 2572 | HID | 2.60 KM |
| Bolton | 2599 | BON | 4.52 KM |
| Entwistle | 2747 | ENT | 4.86 KM |
| Moses Gate | 2606 | MSS | 7.22 KM |
Nearby Listings
| Address | Price | Type | Score | Distance |
|---|---|---|---|---|
| Cottonfields, Bolton, Lancashire, BL7 | £ 150,000 | BUY | 6 / 10 | 0.00 KM |
| Valley Mill, Cottonfields, Eagley, Bolton, BL7 | £ 130,000 | BUY | 6 / 10 | 0.05 KM |
| Valley Mill, Cottonfields, Eagley, Bolton, BL7 | £ 180,000 | BUY | 6 / 10 | 0.05 KM |
| Cottonfields, Bolton, BL7 | £ 169,950 | BUY | 6 / 10 | 0.06 KM |
| Valley Mill, Bolton, BL7 | £ 180,000 | BUY | 8 / 10 | 0.06 KM |
Nearby Properties
| Address | Price | Distance |
|---|---|---|
| 216 Valley Mill | £ 111,000 | 0.05 KM |
| 112 Valley Mill | £ 153,000 | 0.05 KM |
| 12 Valley Mill | £ 179,500 | 0.05 KM |
| 4 Valley Mill | £ 182,500 | 0.05 KM |
| 310 Valley Mill | £ 183,000 | 0.05 KM |