Beecham Lodge, Cirencester
By Stratton & King Ltd
£ 230,000
Reviews
3 out of 5 stars
Stratton & King Ltd says ..
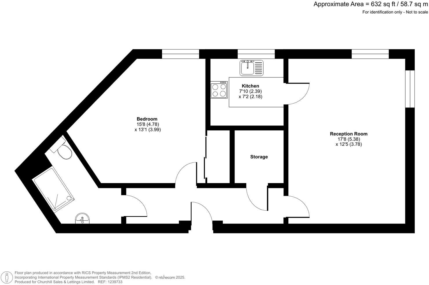
DRAFT PARTICULARS - Awaiting verification from the seller **ONE BEDROOM FIRST FLOOR RETIREMENT APARTMENT** Welcome to Beecham Lodge! This delightful one bedroom first floor retirement apartment is presented in good order throughout and is conveniently located near the stairs pro...
Property Oracle says ..
This one-bedroom retirement apartment in Beecham Lodge, Cirencester, is presented in good condition, as demonstrated by the clear and well-lit images. The apartment benefits from a modern fitted kitchen and bathroom. The living space is spacious and well laid out with a comfortable and furnished sitting area. A small amount of private outdoor space is featured with access to a communal garden area. The location within Cirencester, a sought-after Cotswold town, provides easy access to local amenities and schools. However, precise distances to amenities and the lack of detailed information on property size for comparable properties limit a more definitive assessment of value. The property’s character is very much that of a functional retirement property and potential buyers should consider its suitability based on individual preferences and needs. Further inspection is advisable to assess any unseen aspects or maintenance requirements.
Therefore, we give this property 6 / 10. *Disclaimer: This is our option and does constitute a recommendation or financial advice. Do your own research. *
- Price
- 7
- Condition
- 7
- Location
- 7
- Land
- 3
- Bedrooms
- 1
- Bathrooms
- 1
- Sqft (est)
- 632.00
The heatmap indicates the level of crime in the area. The color of the heatmap indicates the crime severity and recency.
Metrics Year-on-Year
- Average area value
- 241,538.00 £Decreased by 4.18 %
- Est sale value
- 175,064.00 £Increased by 2.97 %
- Average area rental value
- 846.00 £/moIncreased by 4.19 %
- Est letting value
- 0.00 £/mo
- Est rental Yield
- 4.20 %Increased by 8.53 %
- Crime Rate
- 4.00 %Unchanged by 0.00 %
Agent Activity
Stratton & King Ltd created the listing.
Nearby Schools
| Name | Type | Ofsted | Distance |
|---|---|---|---|
| Chesterton Primary School | Academy Sponsor Led | 0.36 KM | |
| Paternoster School | Academy Special Sponsor Led | 0.60 KM | |
| Springboard Children'S Centre (Cirencester) | Children's Centre | 0.75 KM | |
| Cirencester Primary School | Community School | Good | 1.13 KM |
| Powell'S Church Of England Primary School | Voluntary Aided School | Outstanding | 1.20 KM |
Images
Nearby Streets
| Name | Average Price | Average Sqft | Distance |
|---|---|---|---|
| Meadow Close | £ 300,000 | 0 | 0.00 KM |
| Pady Court | £ 0 | 0 | 0.00 KM |
| Meadow Road | £ 219,998 | 0 | 0.00 KM |
| Fairfax Close | £ 0 | 0 | 0.00 KM |
| Cotswold Mill | £ 0 | 0 | 0.00 KM |
Nearby Transport
| Name | NLC | TLC | Distance |
|---|---|---|---|
| Kemble | 3325 | KEM | 6.93 KM |
Nearby Listings
| Address | Price | Type | Score | Distance |
|---|---|---|---|---|
| Beecham Lodge, Cirencester | £ 230,000 | BUY | 6 / 10 | 0.00 KM |
| Beecham Lodge, Cirencester | £ 230,000 | BUY | 6 / 10 | 0.01 KM |
| Beecham Lodge, Cirencester | £ 320,000 | BUY | Unknown | 0.03 KM |
| Apartment 32 Beecham Lodge, Cirencester, Gloucestershire, GL7 1WR | £ 110,000 | BUY | 6 / 10 | 0.04 KM |
| Somerford Road, Cirencester | £ 195,000 | BUY | 6 / 10 | 0.04 KM |
Nearby Properties
| Address | Price | Distance |
|---|---|---|
| 5 Garden Close | £ 245,000 | 0.06 KM |
| 4 Garden Close | £ 210,000 | 0.06 KM |
| 3 Garden Close | £ 220,000 | 0.06 KM |
| 6 Garden Close | £ 220,000 | 0.06 KM |
| 7 Garden Close | £ 155,000 | 0.06 KM |