Carlisle Road, Birkdale, Southport, Merseyside, PR8 4DJ
By Bailey Estates
£ 580,000
Reviews
4 out of 5 stars
Bailey Estates says ..
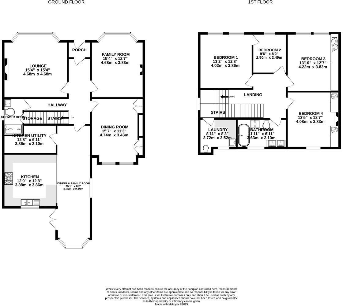
Bailey Estates is thrilled to present this exquisite four-bedroom detached residence, offering a perfect blend of period elegance and modern luxury. Nestled on the prestigious Carlisle Road, in the he...
Property Oracle says ..
This property is a four-bedroom detached house located on Carlisle Road in Birkdale, Southport. The area boasts good schools, with Birkdale Primary School and St Teresa’s Catholic Infant and Nursery School both within a kilometer. Transport links are also convenient, with Birkdale train station less than a kilometer away. The house itself appears to be a period property, well-maintained and recently renovated to a high standard. Images show a modern kitchen and bathrooms, suggesting significant investment has been made. The property benefits from a sizeable garden, adding to its appeal. While the provided data lacks square footage, comparable properties in the area suggest the asking price is within the range of similar properties, though slightly higher, possibly reflecting the quality of the renovation and the desirable location. Overall, this is a well-presented family home in a sought-after area.
Therefore, we give this property 8 / 10. *Disclaimer: This is our option and does constitute a recommendation or financial advice. Do your own research. *
- Price
- 7
- Condition
- 9
- Location
- 9
- Land
- 8
- Bedrooms
- 4
- Bathrooms
- 0
- Sqft (est)
- 3,855.96
The heatmap indicates the level of crime in the area. The color of the heatmap indicates the crime severity and recency.
Metrics Year-on-Year
- Average area value
- 320,000.00 £Decreased by 1.71 %
- Est sale value
- 956,278.08 £Decreased by 7.12 %
- Average area rental value
- 8,975.00 £/moIncreased by 717.40 %
- Est letting value
- 23,135.76 £/mo
- Est rental Yield
- 33.66 %Increased by 731.11 %
- Crime Rate
- 7.00 %Unchanged by 0.00 %
Agent Activity
Bailey Estates created the listing.
Nearby Schools
| Name | Type | Ofsted | Distance |
|---|---|---|---|
| Birkdale Primary School | Community School | Good | 0.67 KM |
| St Teresa'S Catholic Infant And Nursery School | Voluntary Aided School | Good | 0.69 KM |
| Our Lady Of Lourdes Catholic Primary School | Voluntary Aided School | Good | 0.74 KM |
| Christ The King Catholic High School And Sixth Form Centre | Voluntary Aided School | Requires improvement | 0.84 KM |
| Farnborough Road Infant School | Community School | Good | 1.31 KM |
Images
Nearby Streets
| Name | Average Price | Average Sqft | Distance |
|---|---|---|---|
| College Close | £ 0 | 0 | 0.00 KM |
| The Walk | £ 195,000 | 0 | 0.00 KM |
| Elm Road | £ 0 | 0 | 0.00 KM |
| Belgrave Place | £ 629,999 | 0 | 0.00 KM |
| Shaftesbury Grove | £ 0 | 0 | 0.00 KM |
Nearby Transport
| Name | NLC | TLC | Distance |
|---|---|---|---|
| Birkdale | 2352 | BDL | 0.92 KM |
| Hillside | 2231 | HIL | 1.75 KM |
| Southport | 2262 | SOP | 2.29 KM |
| Meols Cop | 2357 | MEC | 4.31 KM |
| Ainsdale | 2350 | ANS | 4.59 KM |
Nearby Listings
| Address | Price | Type | Score | Distance |
|---|---|---|---|---|
| Carlisle Road, Southport, PR8 | £ 650,000 | BUY | Unknown | 0.00 KM |
| Carlisle Road, Birkdale, Southport, Merseyside, PR8 4DJ | £ 625,000 | BUY | Unknown | 0.02 KM |
| Brighton Road, Birkdale, Southport, Merseyside, PR8 4DD | £ 260,000 | BUY | Unknown | 0.16 KM |
| Clinning Road Southport PR8 4NU | £ 475,000 | BUY | 8 / 10 | 0.18 KM |
| Dinorwic Road, Southport | £ 260,000 | BUY | 6 / 10 | 0.19 KM |
Nearby Properties
| Address | Price | Distance |
|---|---|---|
| 33 Carlisle Road | £ 381,500 | 0.02 KM |
| 30 Carlisle Road | £ 415,000 | 0.02 KM |
| 3 | £ 235,000 | 0.02 KM |
| 24 Carlisle Road | £ 480,000 | 0.02 KM |
| 18 Carlisle Road | £ 283,000 | 0.02 KM |