Oxenham Court, Bristol
By Parks Estate Agents
£ 189,995
Reviews
3 out of 5 stars
Parks Estate Agents says ..
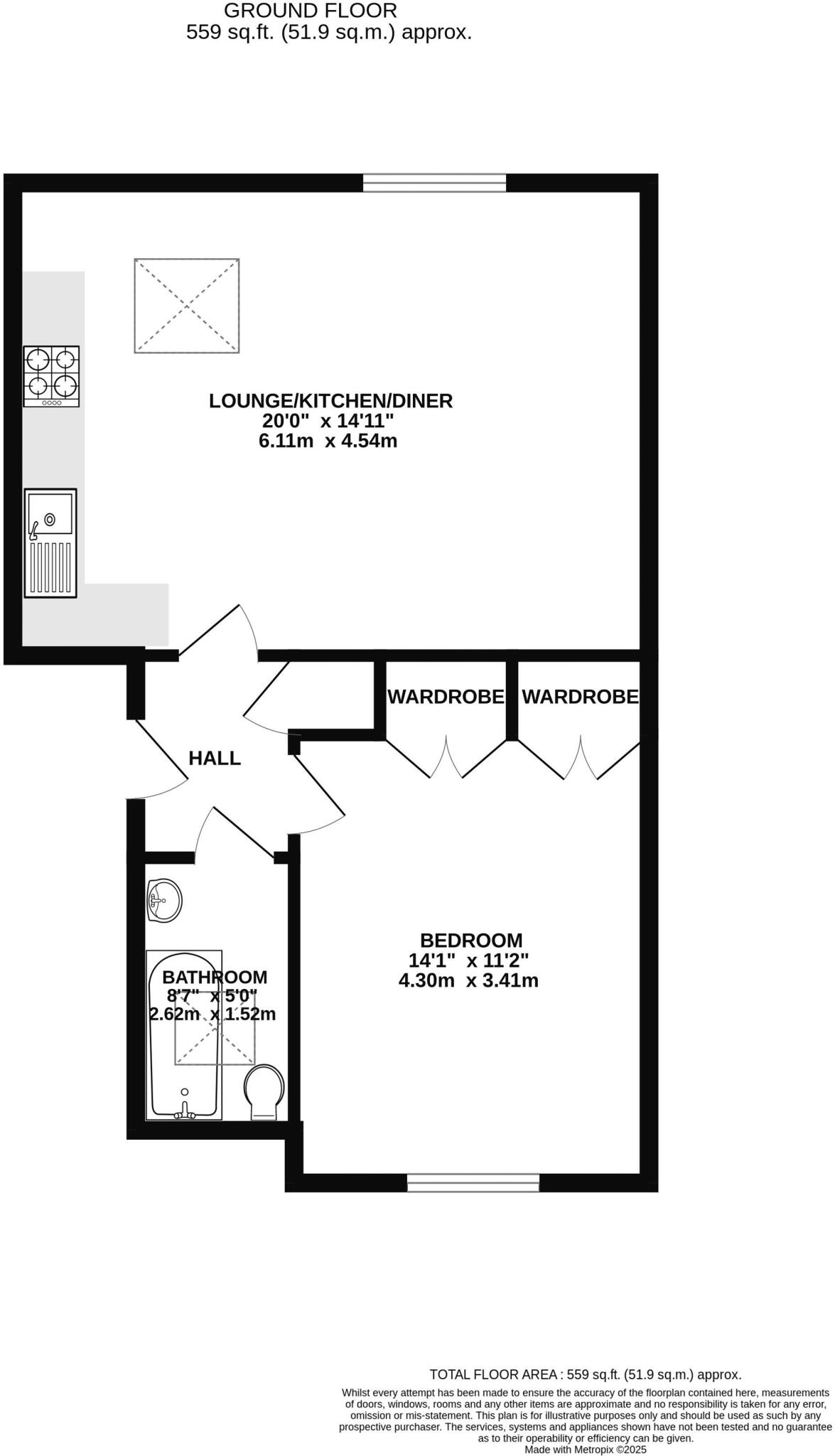
Parks Estate Agents are delighted to offer to the market this spacious and well presented top floor one-bedroom flat which is presented to a lovely standard and is sure to delight many a First Time Buyer or Investor. This property is located in a very popular spot with St George's Park just aro...
Property Oracle says ..
This one bedroom flat is situated in Oxenham Court, Bristol. The property benefits from being close to local amenities and well-regarded schools, including Whitehall Primary School (Outstanding Ofsted rating) and St Patrick’s Catholic Primary School (Outstanding Ofsted rating), both within a 0.62km radius. Several train stations are also within reasonable commuting distance, providing good transport links. The internal photos show a modern flat in good condition, with a well-maintained bathroom and kitchen. The property is a flat, therefore it does not have a garden.
Therefore, we give this property 6 / 10. *Disclaimer: This is our option and does constitute a recommendation or financial advice. Do your own research. *
- Price
- 7
- Condition
- 8
- Location
- 9
- Land
- 1
- Bedrooms
- 1
- Bathrooms
- 1
- Sqft (est)
- 559.00
- Lot (est)
- 559.00
The heatmap indicates the level of crime in the area. The color of the heatmap indicates the crime severity and recency.
Metrics Year-on-Year
- Average area value
- 590,893.00 £Increased by 22.51 %
- Est sale value
- 346,580.00 £Increased by 21.09 %
- Average area rental value
- 2,120.00 £/moIncreased by 44.51 %
- Est letting value
- 1,118.00 £/moIncreased by 100.00 %
- Est rental Yield
- 4.31 %Increased by 18.08 %
- Crime Rate
- 5.00 %Unchanged by 0.00 %
Agent Activity
Parks Estate Agents created the listing.
Nearby Schools
| Name | Type | Ofsted | Distance |
|---|---|---|---|
| The Limes Nursery School | Local Authority Nursery School | Good | 0.32 KM |
| Whitehall Primary School | Community School | Outstanding | 0.32 KM |
| The Limes Nursery School & Children'S Centre | Children's Centre | 0.35 KM | |
| Redfield Educate Together Primary Academy | Academy Sponsor Led | Good | 0.61 KM |
| St Patrick'S Catholic Primary School | Academy Converter | Outstanding | 0.62 KM |
Images
Nearby Streets
| Name | Average Price | Average Sqft | Distance |
|---|---|---|---|
| Chalks Road | £ 325,000 | 0 | 0.00 KM |
| Gordon Road | £ 380,000 | 0 | 0.00 KM |
| Ida Road | £ 250,000 | 0 | 0.00 KM |
| Barnes Street | £ 0 | 0 | 0.00 KM |
| Prospect Place | £ 0 | 0 | 0.00 KM |
Nearby Transport
| Name | NLC | TLC | Distance |
|---|---|---|---|
| Lawrence Hill | 3225 | LWH | 1.38 KM |
| Stapleton Road | 3250 | SRD | 1.55 KM |
| Bristol Temple Meads | 3231 | BRI | 3.49 KM |
| Montpelier | 3203 | MTP | 4.00 KM |
| Filton Abbey Wood | 3235 | FIT | 4.79 KM |
Nearby Listings
| Address | Price | Type | Score | Distance |
|---|---|---|---|---|
| Oxenham Court, Bristol | £ 235,000 | BUY | 8 / 10 | 0.00 KM |
| Oxenham Court, Bristol | £ 189,995 | BUY | 6 / 10 | 0.00 KM |
| Whitehall Road, Bristol, Somerset, BS5 | £ 205,000 | BUY | 6 / 10 | 0.02 KM |
| Whitehall Road, Bristol | £ 229,950 | BUY | 6 / 10 | 0.06 KM |
| Whitehall Road, Bristol, BS5 | £ 425,000 | BUY | 7 / 10 | 0.06 KM |
Nearby Properties
| Address | Price | Distance |
|---|---|---|
| 12 Oxenham Court | £ 102,500 | 0.01 KM |
| 12a Oxenham Court | £ 107,500 | 0.01 KM |
| 4 Oxenham Court | £ 150,000 | 0.01 KM |
| 10 Oxenham Court | £ 168,950 | 0.01 KM |
| 2 Oxenham Court | £ 173,000 | 0.01 KM |