Red Lion Lane, Shooters Hill
JO

Red Lion Lane, Shooters Hill

By John Payne

£ 800,000

Reviews

2 out of 5 stars

John Payne says ..

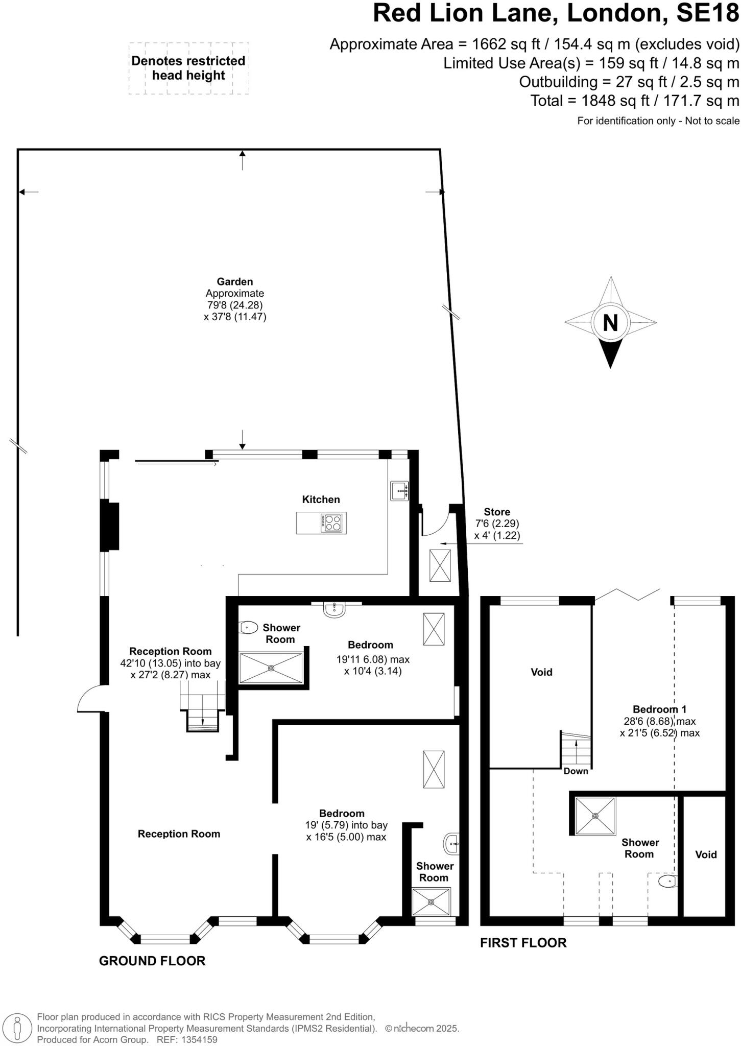
Offered to the market chain free is this truly unique opportunity. A three bedroom, three shower room detached house which has been much improved by its current vendor but is in need of final touches. The ground floor accommodation comprises a 42ft open plan kitchen/reception room. Th...

Property Oracle says ..

This detached property on Red Lion Lane, Shooters Hill, presents a unique opportunity. While boasting a substantial 4,407.13 sqft and three bathrooms and bedrooms, the property is in need of extensive renovation. The location in Greenwich offers good access to schools and amenities, but the property’s condition impacts its overall appeal. The price of £800,000 appears high given the work required, suggesting potential for negotiation. The property includes a garden, though it needs landscaping. Overall, this property is best suited for buyers looking for a project and willing to invest in significant renovations to unlock its full potential. The modern kitchen and bathrooms are a plus, but the unfinished state of other areas needs to be addressed.

Therefore, we give this property 4 / 10. *Disclaimer: This is our option and does constitute a recommendation or financial advice. Do your own research. *

Price
4
Condition
3
Location
7
Land
5
Bedrooms
3
Bathrooms
3
Sqft (est)
4,407.13

The heatmap indicates the level of crime in the area. The color of the heatmap indicates the crime severity and recency.

Metrics Year-on-Year

Average area value
515,833.00 £
Increased by 0.04 %
from 515,604.00 £
Est sale value
1,613,009.58 £
Decreased by 23.27 %
from 2,102,201.01 £
Average area rental value
2,036.00 £/mo
Increased by 4.25 %
from 1,953.00 £/mo
Est letting value
4,407.13 £/mo
Unchanged by 0.00 %
from 4,407.13 £/mo
Est rental Yield
4.74 %
Increased by 4.18 %
from 4.55 %
Crime Rate
7.00 %
Unchanged by 0.00 %
from 7.00 %

Agent Activity

  • John Payne created the listing.

Nearby Schools

NameTypeOfstedDistance
Christ Church Church Of England Primary School, Shooters HillVoluntary Aided SchoolOutstanding0.21 KM
Shooters Hill Sixth Form CollegeAcademy 16-19 ConverterGood0.32 KM
Eglinton Children'S CentreChildren's Centre0.82 KM
Ark Greenwich Free SchoolFree SchoolsGood0.85 KM
Eglinton Primary SchoolCommunity SchoolGood0.86 KM

Images

Google Maps Image Kitchen/Dining Room Bedroom One Extension External Kitchen/Dining Room Bedroom One Kitchen/Dining Room Shower Room Kitchen/Dining Room Kitchen Bedroom One Bedroom One En-Suite En-Suite Bedroom One Bedroom Three Bedroom Three Roof Bedroom Two Bedroom Two Bedroom Two Reception Room Reception Room Shower Room External

Nearby Streets

NameAverage PriceAverage SqftDistance
Village Square £ 000.00 KM
Shooters Hill £ 000.00 KM
Adj. Road £ 000.00 KM
Shooters Hill Road £ 000.00 KM
Well Hall Road £ 325,00000.00 KM

Nearby Transport

NameNLCTLCDistance
Eltham5103ELW2.00 KM
Woolwich Arsenal5152WWA2.24 KM
Woolwich Dockyard5153WWD2.25 KM
Falconwood5137FCN2.52 KM
Plumstead5208PLU3.31 KM

Nearby Listings

AddressPriceTypeScoreDistance
Red Lion Lane, Shooters Hill £ 800,000BUY4 / 100.00 KM
Red Lion Lane, London, SE18 £ 600,000BUY7 / 100.04 KM
Red Lion Lane, Shooters Hill, London, SE18 £ 485,000BUY7 / 100.06 KM
Red Lion Lane, London, SE18 £ 625,000BUY6 / 100.07 KM
Red Lion Lane, Shooters Hill, SE18 £ 450,000BUYUnknown0.07 KM

Nearby Properties

AddressPriceDistance
116a Red Lion Lane £ 565,0000.07 KM
102 Red Lion Lane £ 425,0000.07 KM
112 Red Lion Lane £ 454,0000.07 KM
84 Red Lion Lane £ 310,0000.07 KM
110 Red Lion Lane £ 140,0000.07 KM