Winkworth says ..
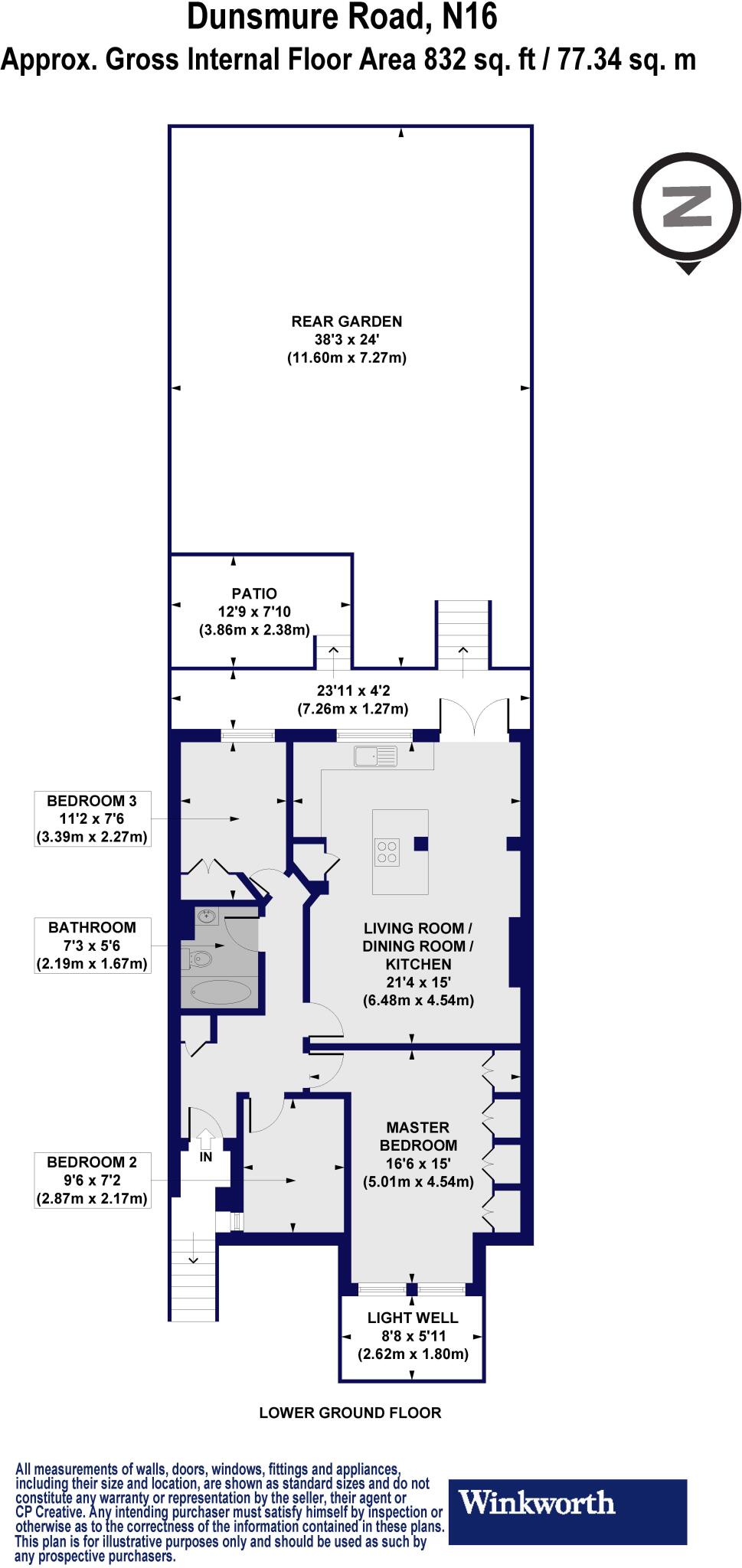
A beautifully presented three bedroom ground floor period conversion spanning 832 sq. ft. The property offers a bright and stylish interior as well as access to a large south facing garden. Features include an impressive open plan layout with the reception, kitchen and diner opening out on to the...
Property Oracle says ..
This maisonette is located on Dunsmure Road in the Stamford Hill West area of Hackney, London. The property is within close proximity to several highly-rated schools, including Holmleigh Primary School, which received an ‘Outstanding’ Ofsted rating and is just 0.03km away. The location also benefits from convenient access to the London Overground, with Stamford Hill station being 0.49km away. The property itself appears to be well-maintained and recently renovated, boasting a modern kitchen and bathroom. The images show a garden, suggesting a good amount of outdoor space. Considering the average price per sqft in the area is £353 and this property is listed at £750,000, with 832.48 sqft, the price per sqft is approximately £900. This is significantly higher than the average, suggesting the price may be on the higher end of the market. However, the property’s modern condition, desirable location, and the presence of a garden could justify the higher price point. More information on the plot size would provide a more comprehensive analysis.
Therefore, we give this property 7 / 10. *Disclaimer: This is our option and does constitute a recommendation or financial advice. Do your own research. *
- Price
- 6
- Condition
- 9
- Location
- 9
- Land
- 7
- Bedrooms
- 3
- Bathrooms
- 0
- Sqft (est)
- 832.48
The heatmap indicates the level of crime in the area. The color of the heatmap indicates the crime severity and recency.
Metrics Year-on-Year
- Average area value
- 683,165.00 £Decreased by 33.92 %
- Est sale value
- 313,844.96 £Increased by 12.20 %
- Average area rental value
- 1,373.00 £/moDecreased by 34.56 %
- Est letting value
- 0.00 £/mo
- Est rental Yield
- 2.41 %Decreased by 1.23 %
- Crime Rate
- 4.00 %Unchanged by 0.00 %
Agent Activity
Winkworth created the listing.
Nearby Schools
| Name | Type | Ofsted | Distance |
|---|---|---|---|
| Holmleigh Primary School | Community School | Outstanding | 0.03 KM |
| Hillside Children'S Centre | Children's Centre Linked Site | 0.19 KM | |
| Lubavitch Childrens Centre | Children's Centre | 0.23 KM | |
| Lubavitch House School (Senior Girls) | Academy Converter | 0.27 KM | |
| Lubavitch Girls Primary School | Academy Converter | 0.27 KM |
Images
Nearby Streets
| Name | Average Price | Average Sqft | Distance |
|---|---|---|---|
| Station Approach | £ 0 | 0 | 0.00 KM |
| Manor Road | £ 831,667 | 0 | 0.00 KM |
| Barry Avenue | £ 0 | 0 | 0.00 KM |
| Olinda Road | £ 841,665 | 0 | 0.00 KM |
| Latimer Road | £ 0 | 0 | 0.00 KM |
Nearby Transport
| Name | NLC | TLC | Distance |
|---|---|---|---|
| Stamford Hill | 6968 | SMH | 0.49 KM |
| Stoke Newington | 6934 | SKW | 0.62 KM |
| South Tottenham | 7404 | STO | 1.15 KM |
| Seven Sisters | 6931 | SVS | 1.32 KM |
| Rectory Road | 6967 | REC | 1.52 KM |
Nearby Listings
| Address | Price | Type | Score | Distance |
|---|---|---|---|---|
| Dunsmure Road, London, N16 | £ 750,000 | BUY | 7 / 10 | 0.00 KM |
| Flat C, 3 Dunsmure Road, Hackney, London, N16 5PU | £ 320,000 | BUY | 4 / 10 | 0.08 KM |
| Dunsmure Road, Hackney, N16 | £ 525,000 | BUY | 6 / 10 | 0.08 KM |
| Dunsmure Road, Hackney, N16 | £ 525,000 | BUY | 4 / 10 | 0.08 KM |
| Dunsmure Road, London N16 | £ 700,000 | BUY | 7 / 10 | 0.09 KM |
Nearby Properties
| Address | Price | Distance |
|---|---|---|
| 38 Dunsmure Road | £ 645,000 | 0.03 KM |
| 32b Dunsmure Road | £ 325,000 | 0.03 KM |
| 36a Dunsmure Road | £ 950,000 | 0.03 KM |
| 14 Dunsmure Road | £ 650,000 | 0.03 KM |
| 34 Dunsmure Road | £ 850,000 | 0.03 KM |