East Street, Titchfield Village
By Taylor Hill & Bond
£ 310,000
Taylor Hill & Bond says ..
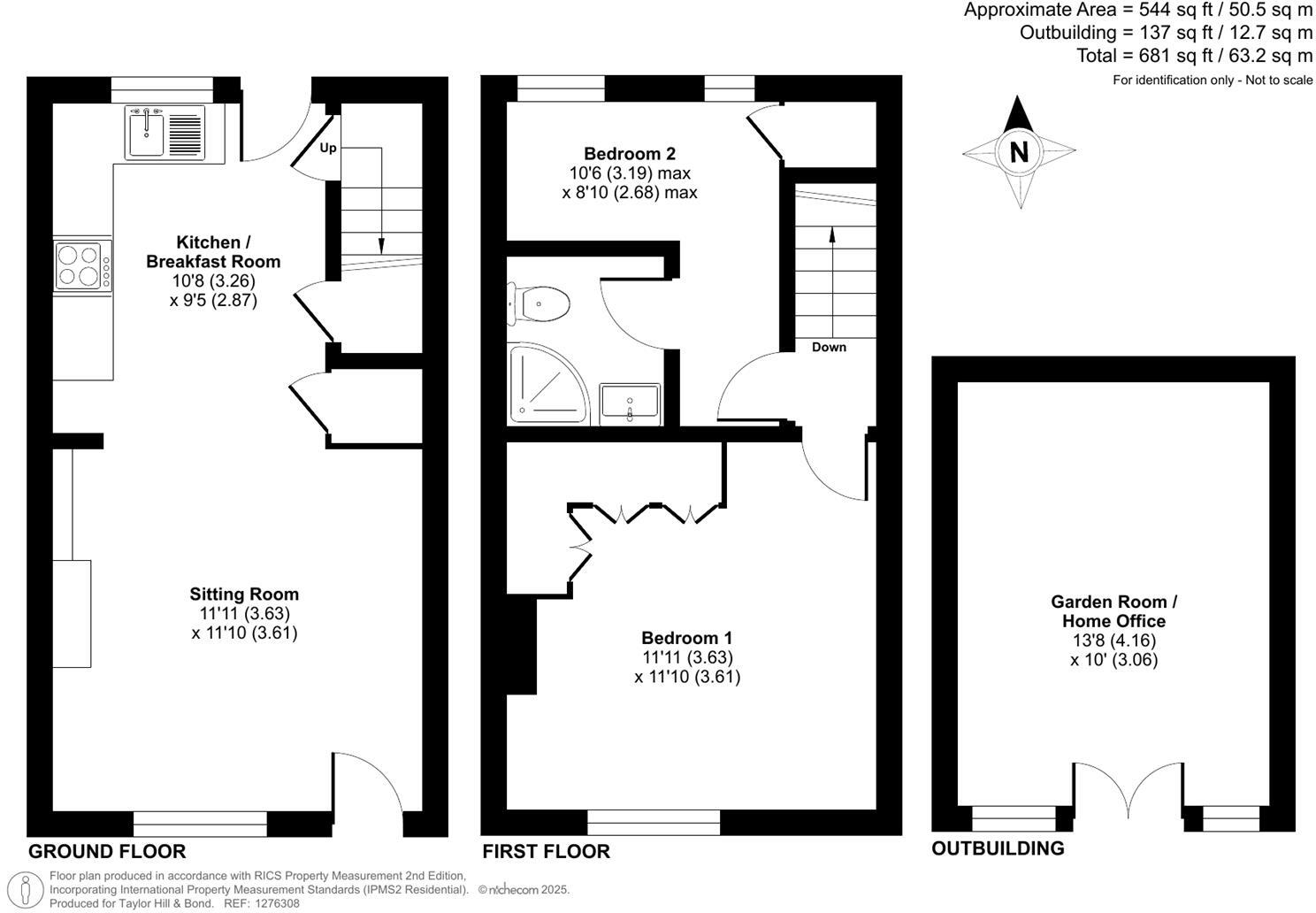
A pretty mid terraced Grade 11 Listed Cottage, offering well proportioned open plan living to the ground floor, centring on an attractive brick fireplace with library shelving to alcoves and log burner.
- Bedrooms
- 2
- Bathrooms
- 1
The heatmap indicates the level of crime in the area. The color of the heatmap indicates the crime severity and recency.
Metrics Year-on-Year
- Average area value
- 629,500.00 £Increased by 11.99 %
- Average area rental value
- 1,800.00 £/moIncreased by 14.07 %
- Est rental Yield
- 3.43 %Increased by 1.78 %
- Crime Rate
- 39.00 %Unchanged by 0.00 %
from 562,095.00 £
from 1,578.00 £/mo
from 3.37 %
from 39.00 %
Agent Activity
Taylor Hill & Bond marked this listing as sold.
Taylor Hill & Bond created the listing.
Nearby Schools
| Name | Type | Ofsted | Distance |
|---|---|---|---|
| Titchfield Primary School | Community School | Good | 0.31 KM |
| West Hill Park School | Other Independent School | 1.34 KM | |
| The Henry Cort Community College | Community School | Good | 1.98 KM |
| Heathfield Special School | Community Special School | Good | 2.11 KM |
| Ranvilles Infant School | Community School | Outstanding | 2.13 KM |
Images
Nearby Streets
| Name | Average Price | Average Sqft | Distance |
|---|---|---|---|
| The Close Bellfield | £ 0 | 0 | 0.00 KM |
| Heath Lane | £ 0 | 0 | 0.00 KM |
| Southway | £ 0 | 0 | 0.00 KM |
| Rowan Way | £ 300,000 | 0 | 0.00 KM |
| M27 | £ 950,000 | 0 | 0.00 KM |
Nearby Transport
| Name | NLC | TLC | Distance |
|---|---|---|---|
| Swanwick | 5920 | SNW | 4.53 KM |
| Fareham | 5900 | FRM | 4.59 KM |
| Botley | 5894 | BOE | 7.85 KM |
| Bursledon | 5927 | BUO | 8.72 KM |
Nearby Listings
| Address | Price | Type | Score | Distance |
|---|---|---|---|---|
| East Street, Titchfield Village | £ 310,000 | BUY | Unknown | 0.00 KM |
| East Street, Titchfield Village | £ 325,000 | BUY | 7 / 10 | 0.02 KM |
| SHAKESPEARE MEWS, TITCHFIELD | £ 215,000 | BUY | 7 / 10 | 0.03 KM |
| East Street, Titchfield, Fareham, PO14 | £ 215,000 | BUY | Unknown | 0.05 KM |
| PROTEA GARDENS, TITCHFIELD | £ 335,000 | BUY | 6 / 10 | 0.07 KM |
Nearby Properties
| Address | Price | Distance |
|---|---|---|
| 23 East Street | £ 481,000 | 0.01 KM |
| 26 East Street | £ 285,000 | 0.01 KM |
| 37 East Street | £ 575,000 | 0.01 KM |
| 28 East Street | £ 299,995 | 0.01 KM |
| 16 East Street | £ 307,500 | 0.01 KM |